Главная Проекты домов Проект двухэтажного дома из клееного бруса с большой кухней-столовой

D1018 Проект двухэтажного дома из клееного бруса с большой кухней-столовой

Сравнить проект В избранное
Проект двухэтажного дома из клееного бруса с большой кухней-столовой / 1
Проект двухэтажного дома из клееного бруса с большой кухней-столовой / 2
Проект двухэтажного дома из клееного бруса с большой кухней-столовой / 1
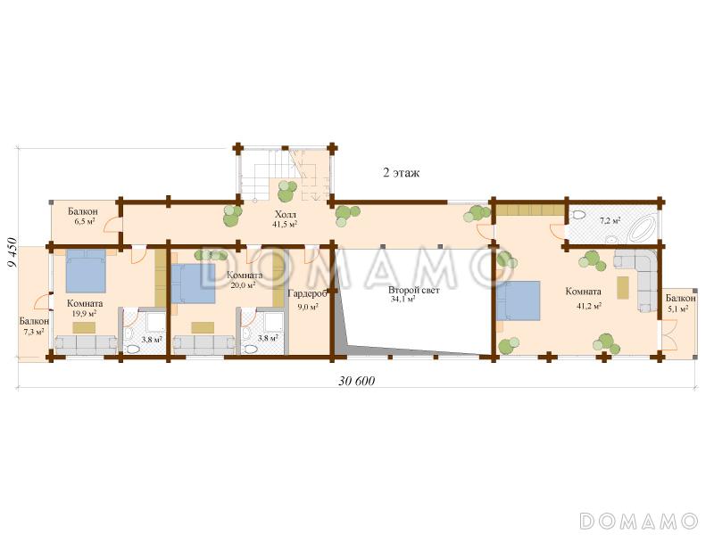
Проект двухэтажного дома из клееного бруса с большой кухней-столовой / 2
D1018
541 м²
Проект с подрядом
Артикул проекта: Финляндия
Компания: Holz House
Стоимость строительства
12 500 000 ₽
Заказать подробную смету
+7 (800) XXX-XX-XX Показать телефон
Задать вопрос по проекту
Технические характеристики
Общие
Материал стен
Клееный брус
Общая площадь
541 м²
Приведенная площадь
377.11 м²
Количество жилых комнат/спален
4
Этажи
2 этажа
Гараж
Нет гаража
Подвал / цокольный этаж
Без подвала
Длина дома
36.9 м
Ширина дома
18.4 м
Кровля
Гибкая черепица
Толщина несущих наружных стен
185 мм
Межэтажные перекрытия
По деревянным балкам
Внутренние не несущие перегородки
Каркасно-обшивные
Фундамент
Свайный
Терраса
Терраса крытая
Дополнительные
Окна
Окна до пола
,
Панорамные окна
Второй свет
Есть
Камин
Есть
Сауна/баня внутри
Нет
Площадь гостиной
48.3 м²
Площадь кухни
22.4 м²
Количество санузлов
5
Окно в ванной комнате
Есть
Бильярдная
Есть
Хозяйский санузел
Есть
Кладовая
2
Балкон / лоджия
Балкон
Планы помещений
Описание проекта

Двухэтажный дом из клееного бруса подходит для постоянного проживания семьи из 4-6 человек. Часть периметра окружена верандой, на которой есть 2 площадки для оборудования обеденной зоны. Оригинальный внешний вид фасаду придают широкие окна с раскладкой – тонкими рейками, делящими поверхность стекла на сектора.

Этот вместительный дом подходит тем, кто часто принимает гостей. На первом этаже для этого предусмотрены большая кухня-столовая, бильярдная комната, гостиная с камином и спальня.

На втором этаже размещены три просторные спальни и гардероб. Комнаты спроектированы так, что в каждой есть своя ванная.

Преимущества и особенности:

  • много спален и санузлов позволят жить в доме большому семейству,

  • веранда площадью 121.7 кв.м – это отличное место для ужинов на свежем воздухе,

  • второй свет и оригинальные окна наполнят солнцем гостиную.

Категории проекта: деревянные для постоянного проживания из клееного бруса от 500 кв.м с эркером с террасой двухэтажные со вторым светом двухэтажные деревянные с двухскатной крышей загородные с бильярдной с камином прямоугольные с балконом с панорамным остеклением в стиле эклектика двухэтажные с эркером Проекты деревянных домов с террасой Проекты двухэтажных домов из клееного бруса Проекты двухэтажных домов с террасой Проекты двухэтажных домов с верандой без гаража с террасой и камином деревянные для круглогодичного проживания особняки с 4 спальнями с панорамными окнами и террасой с балконом и террасой большие двухэтажные с камином двухэтажные с двускатной крышей двухэтажные со вторым светом двухэтажные с панорамными окнами двухэтажные с 4 спальнями двухэтажные с балконом двухэтажные с балконом и террасой двухэтажные без гаража большие в стиле эклектика большие с двухскатной крышей большие с вторым светом большие с балконом большие прямоугольные большие с камином большие с окном в ванной комнате большие с панорамными окнами большие с окнами в пол большие без гаража большие с большой кухней большие с изолированной кухней большие с террасой большие с 4 спальнями деревянные в стиле эклектика деревянные с окнами в пол деревянные с вторым светом деревянные с панорамными окнами деревянные с балконом деревянные прямоугольные деревянные с камином деревянные без гаража деревянные с подрядом деревянные без подвала деревянные с 4 спальнями деревянные с большой гостиной деревянные с большой кухней деревянные с изолированной кухней деревянные от 500 кв.м деревянные большие недорогие с панорамными окнами из клееного бруса проект с подрядом из клееного бруса для постоянного проживания из клееного бруса с окном в ванной комнате из клееного бруса с камином из клееного бруса прямоугольный из клееного бруса с балконом из клееного бруса с вторым светом из клееного бруса с окнами в пол (в гостиной) из клееного бруса с окнами в пол (на кухне) из клееного бруса с окнами в пол из клееного бруса с панорамными окнами из клееного бруса в скандинавском стиле из клееного бруса в стиле эклектика из клееного бруса с двухскатной крышей из клееного бруса со свайным фундаментом из клееного бруса с каркасно-обшивными перегородками из клееного бруса с перекрытиями по деревянным балкам из клееного бруса с кровлей из гибкой черепицы из клееного бруса с хозяйским санузлом из клееного бруса с изолированной кухней из клееного бруса с 1 эркером из клееного бруса с выходом на терассу из кухни из клееного бруса с крытой терассой из клееного бруса без подвала из клееного бруса без гаража из клееного бруса двухэтажные из клееного бруса с большой гостиной Проекты домов с подрядом Показать все категории Скрыть категории

Похожие проекты
Состав проекта
Входит в стоимость
Цена, руб. Сроки, дней
Комплект архитектурно-строительных чертежей (АС) Входит в стоимость Готов к отправке
Разрабатывается отдельно
Цена, руб. Сроки, дней
Адаптация фундамента (изменение типа фундамента) по запросу 14 рабочих дней
Дизайн интерьера (стоимость от 2200руб. за квад.метр площади) по запросу 30 рабочих дней
Внесение изменений в проект по запросу 20 рабочих дней
Фэншуй дома 20 000 ₽ 14 рабочих дней в корзину
Фэншуй участка 15 000 ₽ 14 рабочих дней в корзину
Фэншуй полная консультация дом+участок с выездом на объект 100 000 ₽ 30 рабочих дней в корзину
Опции проекта вы можете заказать в корзине при оформлении заказа
Комплектации
Отзывы покупателей
Рейтинг покупателей
0 / 5 5 5 1
На основе 1 оценок покупателей
0%
0%
0%
0%
0%
Отзывы о проекте D1018
Отзыв о проекте D1018
Чтобы оставить отзыв, пожалуйста авторизуйтесь.
Подбор строительной компании
Не знаете кому доверить строительство дома? Мы можем помочь! Подберем для вас из сотен наших партнеров несколько компаний с лучшем соотношением цена/качество под конкретно ваш запрос.
Подобрать