Главная Проекты домов Проект деревянного дома площадью до 200 кв.м из оцилиндрованного бревна

D1106 Проект деревянного дома площадью до 200 кв.м из оцилиндрованного бревна

Сравнить проект В избранное
Проект деревянного дома площадью до 200 кв.м из оцилиндрованного бревна / 1
Проект деревянного дома площадью до 200 кв.м из оцилиндрованного бревна / 1
D1106
171 м²
Домокомплект
Артикул проекта: ПД-7
Компания: Element-House
Стоимость домокомплекта
865 000 ₽
Заказать подробную смету
+7 (909) XXX-XX-XX Показать телефон
Задать вопрос по проекту
Технические характеристики
Общие
Материал стен
Бревно
Общая площадь
171 м²
Приведенная площадь
139.13 м²
Количество жилых комнат/спален
3
Этажи
1 этаж + мансарда
Гараж
Нет гаража
Подвал / цокольный этаж
Без подвала
Длина дома
11.4 м
Ширина дома
9.2 м
Облицовка внешних стен
Без облицовки
Межэтажные перекрытия
По деревянным балкам
Внутренние не несущие перегородки
Каркасно-обшивные
Терраса
Терраса крытая
Дополнительные
Сауна/баня внутри
Нет
Площадь гостиной
23.5 м²
Площадь кухни
14.5 м²
Количество санузлов
3
Котельная
Есть
Хозяйский санузел
Есть
Балкон / лоджия
Балкон
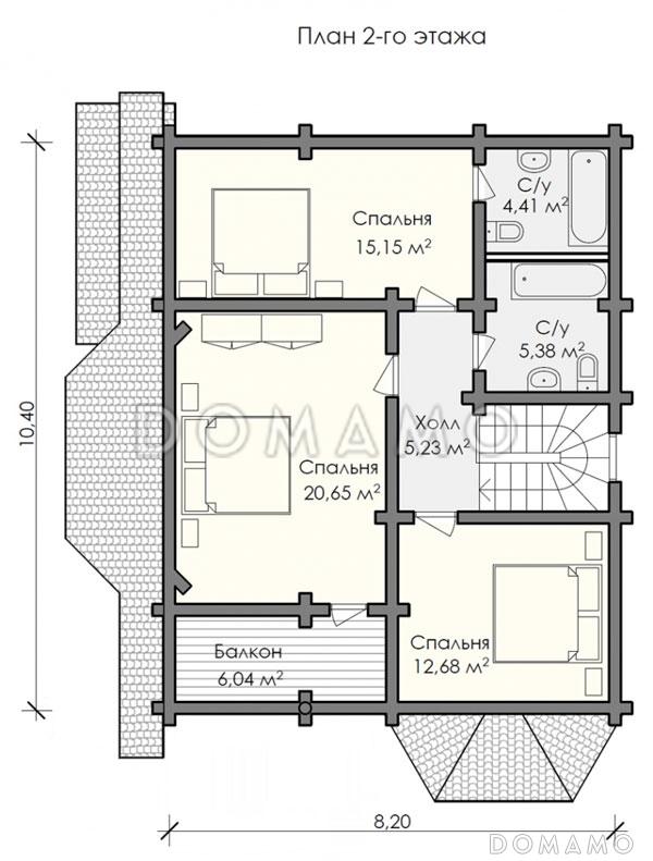
Планы помещений
Описание проекта

Проектный вариант впечатляющего особняка из цельного бруса под красной натуральной черепицей будоражит своей грациозностью, чем-то отдаленно напоминает свои прототипы в виде русских домов. Сооружение в 171 м2 с тремя входами и жилой мансарду. Нижний этаж занимает гостиная и отдельная кухня-столовая, они идут с эркером, прихожая и санузел, а на втором этаже два санузла, три спальни и балкон, вход на который расположен из хозяйской спальни. Дом вместительный и придётся в пору семье до 6 человек.

Ключевые особенности:

  • отдельный вход в техническое помещение, из него можно попасть в дом;

  • наличие балкона, позволяющего насладиться со второго этажа красотами природы;

  • крыльцо-терраса, на ней можно расставить мебель для отдыха;

  • несколько санузлов и спален позволят принимать гостей с ночевкой, обеспечивая им уют без ущерба для своего комфорта.

Категории проекта: с мансардой деревянные для постоянного проживания из бревна от 100 до 200 кв.м с эркером с террасой одноэтажные с мансардой одноэтажные с котельной с котельной одноэтажные деревянные оцилиндрованное бревно до 200 кв.м с двухскатной крышей 9х12 загородные прямоугольные с балконом в русском стиле с эркером и мансардой одноэтажные из бревна из бревна с мансардой Проекты деревянных домов с мансардой Проекты деревянных домов с террасой Проекты одноэтажных домов с эркером Проекты одноэтажных домов с террасой Типовые проекты загородных одноэтажных домов без гаража одноэтажные без гаража одноэтажные с тремя спальнями Проекты домов с тремя спальнями с мансардой и террасой полутораэтажные деревянные для круглогодичного проживания из бревна для постоянного проживания рубленные 9 на 12 с мансардой одноэтажные до 200 кв м 11x9 11 на 9 с мансардой с балконом и террасой с мансардой с котельной с мансардой с двухскатной крышей с мансардой с балконом с мансардой прямоугольные с мансардой для постоянного проживания с мансардой до 200 кв.м с балконом с террасой прямоугольные с котельной без гаража одноэтажные с мансардой из бревна одноэтажные с мансардой для постоянного проживания одноэтажные с мансардой с изолированной кухней одноэтажные с мансардой в русском стиле одноэтажные с мансардой с балконом деревянные в русском стиле деревянные с балконом деревянные прямоугольные деревянные без гаража деревянные домокомплекты деревянные без подвала деревянные с 3 спальнями деревянные с изолированной кухней деревянные 9х10 деревянные от 100 до 200 м2 в русском стиле без гаража в русском стиле с террасой в русском стиле с балконом в русском стиле прямоугольные в русском стиле для постоянного проживания в русском стиле без бани в русском стиле с котельной в русском стиле с изолированной кухней в русском стиле с двускатной крышей в русском стиле от 100 до 200 кв м из клееного бруса без гаража Показать все категории Скрыть категории

Похожие проекты
Состав проекта
Входит в стоимость
Цена, руб. Сроки, дней
Комплект архитектурно-строительных чертежей (АС) Входит в стоимость Готов к отправке
Разрабатывается отдельно
Цена, руб. Сроки, дней
Адаптация фундамента (изменение типа фундамента) по запросу 14 рабочих дней
Дизайн интерьера (стоимость от 2200руб. за квад.метр площади) по запросу 30 рабочих дней
Внесение изменений в проект по запросу 20 рабочих дней
Фэншуй дома 20 000 ₽ 14 рабочих дней в корзину
Фэншуй участка 15 000 ₽ 14 рабочих дней в корзину
Фэншуй полная консультация дом+участок с выездом на объект 100 000 ₽ 30 рабочих дней в корзину
Опции проекта вы можете заказать в корзине при оформлении заказа
Отзывы покупателей
Рейтинг покупателей
0 / 5 5 5 1
На основе 1 оценок покупателей
0%
0%
0%
0%
0%
Отзывы о проекте D1106
Отзыв о проекте D1106
Чтобы оставить отзыв, пожалуйста авторизуйтесь.
Подбор строительной компании
Не знаете кому доверить строительство дома? Мы можем помочь! Подберем для вас из сотен наших партнеров несколько компаний с лучшем соотношением цена/качество под конкретно ваш запрос.
Подобрать