Главная Проекты домов Проект большого современного дома с цокольным этажом и навесом для двух автомобилей

D1338 Проект большого современного дома с цокольным этажом и навесом для двух автомобилей

Сравнить проект В избранное
Проект большого современного дома с цокольным этажом и навесом для двух автомобилей / 1
Проект большого современного дома с цокольным этажом и навесом для двух автомобилей / 2
Проект большого современного дома с цокольным этажом и навесом для двух автомобилей / 1
Проект большого современного дома с цокольным этажом и навесом для двух автомобилей / 2
D1338
526 м²
Технические характеристики
Общие
Материал стен
Газобетон
Общая площадь
526 м²
Площадь застройки
242.8 м²
Приведенная площадь
508.656 м²
Количество жилых комнат/спален
4
Этажи
1 этаж + мансарда
Гараж
Нет гаража
Количество машин
2
Подвал / цокольный этаж
С окнами
Длина дома
22.03 м
Ширина дома
17.24 м
Высота в коньке
8.55 м
Кровля
Металлочерепица
Облицовка внешних стен
Облицовочный кирпич
Толщина несущих наружных стен
520 мм
Межэтажные перекрытия
Сборные
Фундамент
Ленточный монолитный
Терраса
Терраса открытая
Дополнительные
Окна
Окна до пола
Сауна/баня внутри
Есть
Площадь гостиной
30 м²
Площадь кухни
14.18 м²
Количество санузлов
5
Окно в ванной комнате
Есть
Котельная
Есть
Кабинет
Есть
Кладовая
1
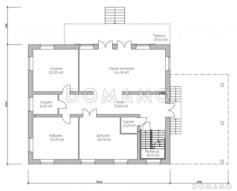
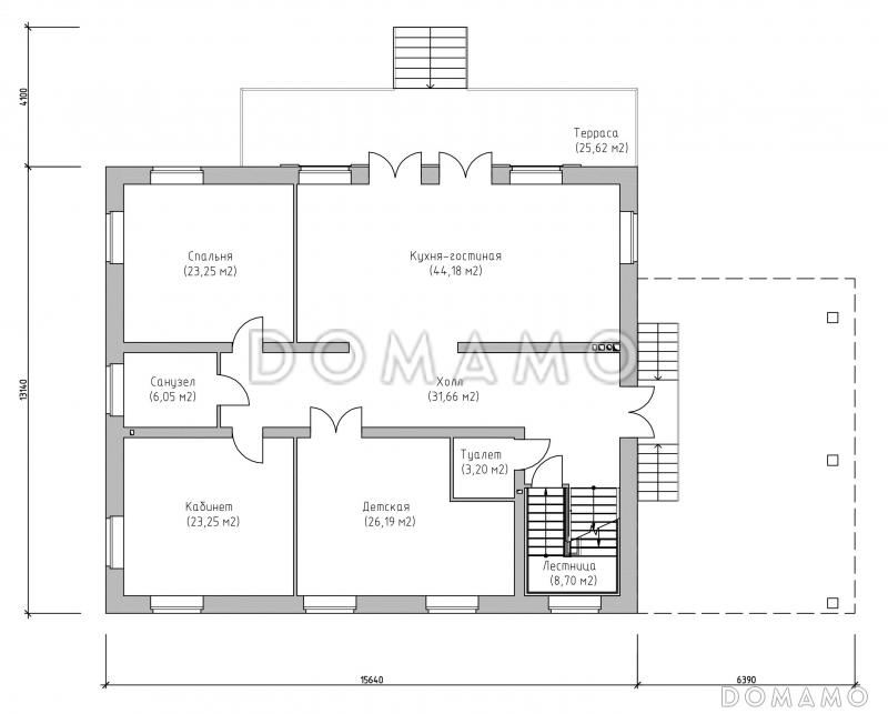
Планы помещений
Описание проекта
Компания Domamo предлагает проект большого современного дома с цокольным этажом и навесом для двух автомобилей D1338. Общая площадь - 526 м2, размер - 22.03х17.24 м. Фундамент - ленточный монолитный, кровля - металлочерепица, внешняя отделка - облицовочный кирпич. Для заказа проекта или внесения изменений свяжитесь с нами с помощью форм обратной связи на сайте или по телефону +7 (343) 357-92-70.
Категории проекта: с мансардой для постоянного проживания пенобетон шале от 500 кв.м с террасой из пеноблоков с мансардой из газобетона с цокольным этажом из газобетона в стиле шале из газобетона готовые из газобетона с мансардой с цокольным этажом одноэтажные с мансардой одноэтажные с цокольным этажом одноэтажные с котельной с котельной одноэтажные из газобетона из газосиликатных блоков с баней с цокольным этажом и мансардой загородные из керамзитобетонных блоков с сауной прямоугольные из газобетона с баней из газобетона с террасой из блоков одноэтажные из блоков из блоков с мансардой из пеноблоков с баней из пеноблоков с цокольным этажом из пеноблоков с террасой загородные из газобетона Проекты одноэтажных домов с террасой Типовые проекты загородных одноэтажных домов Проекты одноэтажных домов с баней без гаража одноэтажные без гаража облицованные кирпичом с кабинетом одноэтажных из керамзитобетонных блоков одноэтажные с 4 спальнями с мансардой и террасой полутораэтажные особняки одноэтажные шале с 4 спальнями из пеноблоков загородные большие с мансардой с баней с мансардой с котельной с мансардой шале с мансардой с окнами до пола с мансардой прямоугольные с мансардой готовые с мансардой для постоянного проживания с мансардой элитные с мансардой большие одноэтажные из газобетона с террасой одноэтажные из газобетона с мансардой одноэтажные из газобетона с 4 спальнями с подвалом из газобетона от 500 кв.м из газобетона с котельной из газобетона прямоугольные из газобетона готовые из газобетона с четырьмя спальнями из газобетона с кабинетом из газобетона большие из газобетона для постоянного проживания двухэтажные из газобетона без гаража двухэтажные из газобетона с террасой двухэтажные из газобетона с кабинетом двухэтажные из газобетона с котельной двухэтажные из газобетона большие двухэтажные из газобетона с подвалом двухэтажные из газобетона с баней двухэтажные из газобетона с 4 спальнями из газобетона с мансардой в стиле шале из газобетона с мансардой с террасой из газобетона с мансардой для постоянного проживания из газобетона с мансардой готовые из газобетона с мансардой большие из газобетона с мансардой с 4 спальнями из газобетона с мансардой с баней из газобетона с мансардой прямоугольные одноэтажные с мансардой для постоянного проживания одноэтажные с мансардой в стиле шале большие готовые большие прямоугольные большие с окном в ванной комнате большие с окнами в пол большие без гаража большие с террасой большие с баней большие с котельной большие с кабинетом большие с 4 спальнями из пеноблоков в стиле шале из пеноблоков с окнами до пола из пеноблоков прямоугольные из пеноблоков для постоянного проживания из пеноблоков готовые из пеноблоков от 500 м2 из пеноблоков большие из пеноблоков с 4 спальнями недорогие с мансардой недорогие в стиле шале недорогие без гаража недорогие с террасой недорогие для постоянного проживания недорогие с окнами до пола недорогие с баней недорогие с кабинетом недорогие с котельной недорогие прямоугольные недорогие большие из клееного бруса без гаража Показать все категории Скрыть категории

Похожие проекты
Состав проекта
Входит в стоимость
Цена, руб. Сроки, дней
Комплект архитектурно-строительных чертежей (АС) Входит в стоимость 21 рабочих день
Зеркальная версия проекта Входит в стоимость 21 рабочих день
Готово к продаже
Цена, руб. Сроки, дней
Паспорт рабочего проекта 4 000 ₽ 21 рабочих день в корзину
Дополнительная копия проекта формата А3 4 000 ₽ 21 рабочих день в корзину
Электронная копия проекта (скан распечатанной версии) 4 000 ₽ 21 рабочих день в корзину
3D модель дома 20 000 ₽ 21 рабочих день в корзину
Разрабатывается отдельно
Цена, руб. Сроки, дней
Адаптация фундамента (изменение типа фундамента) по запросу 14 рабочих дней
Дизайн интерьера (стоимость от 2200руб. за квад.метр площади) по запросу 30 рабочих дней
Внесение изменений в проект по запросу 20 рабочих дней
Разработка Генплана участка, в масштабе 1:250 7 000 ₽ 15 рабочих дней в корзину
Фэншуй дома 20 000 ₽ 14 рабочих дней в корзину
Фэншуй участка 15 000 ₽ 14 рабочих дней в корзину
Фэншуй полная консультация дом+участок с выездом на объект 100 000 ₽ 30 рабочих дней в корзину
Опции проекта вы можете заказать в корзине при оформлении заказа
Предложения строителей Свердловская область
Подбор строительной компании
Не знаете кому доверить строительство дома? Мы можем помочь! Подберем для вас из сотен наших партнеров несколько компаний с лучшем соотношением цена/качество под конкретно ваш запрос.
Подобрать
Посмотреть еще 3 компании Свернуть
Отзывы покупателей
Рейтинг покупателей
0 / 5 5 5 1
На основе 1 оценок покупателей
0%
0%
0%
0%
0%
Отзывы о проекте D1338
Отзыв о проекте D1338
Чтобы оставить отзыв, пожалуйста авторизуйтесь.
Подбор строительной компании
Не знаете кому доверить строительство дома? Мы можем помочь! Подберем для вас из сотен наших партнеров несколько компаний с лучшем соотношением цена/качество под конкретно ваш запрос.
Подобрать