Главная Проекты домов Проект двухэтажного дома с небольшой террасой

D1388 Проект двухэтажного дома с небольшой террасой

Сравнить проект В избранное
Проект двухэтажного дома с небольшой террасой / 1
Проект двухэтажного дома с небольшой террасой / 2
Проект двухэтажного дома с небольшой террасой / 3
Проект двухэтажного дома с небольшой террасой / 4
Проект двухэтажного дома с небольшой террасой / 1
Проект двухэтажного дома с небольшой террасой / 2
Проект двухэтажного дома с небольшой террасой / 3
Проект двухэтажного дома с небольшой террасой / 4
D1388
220 м²
Подготовка проекта:
Готов к отправке
Стоимость проекта
Купить проект
Задайте вопросы по проекту нашему архитектору
8 (800) 200-28-83
Время работы: пн-вс: с 9:00 до 20:00
Задать вопрос по проекту

Технические характеристики
Общие
Материал стен
Кирпич
Общая площадь
220 м²
Жилая площадь
110.6 м²
Площадь застройки
162.6 м²
Приведенная площадь
195.89 м²
Количество жилых комнат/спален
3
Этажи
1 этаж + мансарда
Гараж
Нет гаража
Подвал / цокольный этаж
Без подвала
Длина дома
14.1 м
Ширина дома
13.0 м
Кровля
Гибкая черепица
Облицовка внешних стен
Облицовочный кирпич
Толщина несущих наружных стен
510 мм
Межэтажные перекрытия
Монолитные
Внутренние не несущие перегородки
Каркасно-обшивные
,
Кирпичные
Фундамент
Ленточный заглубленный из ФБС
Терраса
Терраса крытая
Дополнительные
Сауна/баня внутри
Нет
Площадь гостиной
29.1 м²
Площадь кухни
10.2 м²
Количество санузлов
3
Окно в ванной комнате
Есть
Котельная
Есть
Хозяйский санузел
Есть
Хозяйская гардеробная
Есть
Кладовая
2
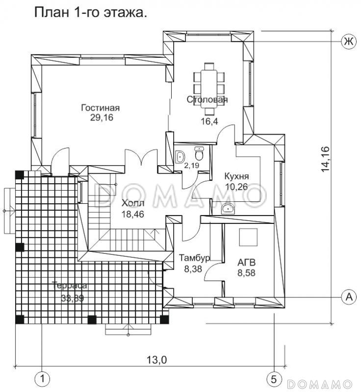
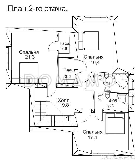
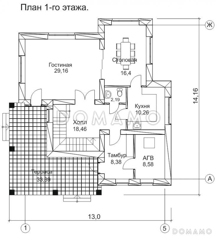
Планы помещений
Описание проекта

Компактный кирпичный дом с мансардой подойдет для загородной жизни семьи из 3-4 человек. Входная группа представляет собой угловую крытую террасу с двумя входами: в прихожую и напрямую в гостиную.

Планировка первого этажа традиционна для домов такой площади. Помимо гостиной тут выделено место для столовой, кухни, санузла и котельной. На мансарде находятся три спальни. В двух из них имеется встроенная гардеробная, в третьей — индивидуальный санузел.

Преимущества и особенности

  • все спальни не имеют смежных стен, таким образом предоставляя каждому члену семьи личное пространство и изолируя звуки из других комнат,

  • наличие гардеробных позволит не занимать пространство комнаты громоздкими шкафами,

  • терраса станет дополнительным уютным место отдыха всей семьей.

Категории проекта: с мансардой для постоянного проживания кирпич от 200 до 300 кв.м кирпичные дома с мансардой с террасой из кирпича с террасой готовые загородные из кирпича одноэтажные из кирпича одноэтажные из кирпича с мансардой одноэтажные кирпичные с котельной одноэтажные с мансардой кирпичные с котельной одноэтажные с котельной с котельной загородные с гардеробной в стиле эклектика Проекты одноэтажных домов с террасой Типовые проекты загородных одноэтажных домов без гаража одноэтажные без гаража облицованные кирпичом одноэтажные с тремя спальнями Проекты домов с тремя спальнями с мансардой и террасой полутораэтажные полутораэтажные из кирпича недорогие от 200 до 250 м сложной формы с мансардой с котельной с мансардой сложной формы с мансардой готовые с мансардой для постоянного проживания одноэтажные из кирпича с 3 спальнями готовые для постоянного проживания без гаража без подвала с изолированной кухней эклектика сложной формы одноэтажные с мансардой для постоянного проживания одноэтажные с мансардой с изолированной кухней одноэтажные с мансардой в стиле эклектика недорогие с мансардой недорогие кирпичные недорогие в стиле эклектика недорогие без гаража недорогие с террасой недорогие для постоянного проживания недорогие с изолированной кухней недорогие без бани недорогие с котельной недорогие сложной формы недорогие от 200 до 300 м2 из клееного бруса без гаража Показать все категории Скрыть категории

Похожие проекты
Состав проекта
Входит в стоимость
Цена, руб. Сроки, дней
Комплект архитектурно-строительных чертежей (АС) Входит в стоимость Готов к отправке
Разрабатывается отдельно
Цена, руб. Сроки, дней
Адаптация фундамента (изменение типа фундамента) по запросу 14 рабочих дней
Дизайн интерьера (стоимость от 2200руб. за квад.метр площади) по запросу 30 рабочих дней
Внесение изменений в проект по запросу 20 рабочих дней
Фэншуй дома 20 000 ₽ 14 рабочих дней в корзину
Фэншуй участка 15 000 ₽ 14 рабочих дней в корзину
Фэншуй полная консультация дом+участок с выездом на объект 100 000 ₽ 30 рабочих дней в корзину
Опции проекта вы можете заказать в корзине при оформлении заказа
Предложения строителей Свердловская область
Подбор строительной компании
Не знаете кому доверить строительство дома? Мы можем помочь! Подберем для вас из сотен наших партнеров несколько компаний с лучшем соотношением цена/качество под конкретно ваш запрос.
Подобрать
Посмотреть еще 2 компании Свернуть
Отзывы покупателей
Рейтинг покупателей
0 / 5 5 5 1
На основе 1 оценок покупателей
0%
0%
0%
0%
0%
Отзывы о проекте D1388
Отзыв о проекте D1388
Чтобы оставить отзыв, пожалуйста авторизуйтесь.
Подбор строительной компании
Не знаете кому доверить строительство дома? Мы можем помочь! Подберем для вас из сотен наших партнеров несколько компаний с лучшем соотношением цена/качество под конкретно ваш запрос.
Подобрать