Главная Проекты домов Проект одноэтажного дома с мансардным этажом и встроенным гаражом

D1526 Проект одноэтажного дома с мансардным этажом и встроенным гаражом

Сравнить проект В избранное
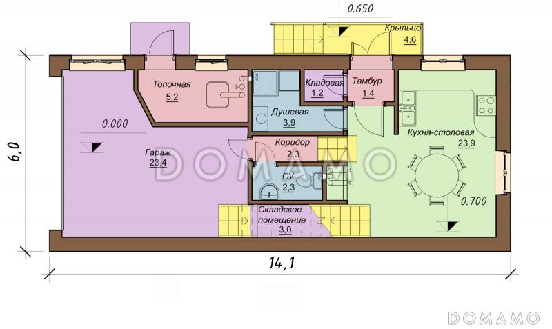
Проект одноэтажного дома с мансардным этажом и встроенным гаражом  / 1
Проект одноэтажного дома с мансардным этажом и встроенным гаражом  / 2
Проект одноэтажного дома с мансардным этажом и встроенным гаражом  / 1
Проект одноэтажного дома с мансардным этажом и встроенным гаражом  / 2
D1526
145 м²
Подготовка проекта:
Готов к отправке
Стоимость проекта
Купить проект
Задайте вопросы по проекту нашему архитектору
8 (800) 200-28-83
Время работы: пн-вс: с 9:00 до 20:00
Задать вопрос по проекту

Технические характеристики
Общие
Материал стен
Кирпич
Общая площадь
145 м²
Приведенная площадь
138.08 м²
Количество жилых комнат/спален
3
Этажи
1 этаж + мансарда
Гараж
Встроенный гараж
Количество машин
1
Подвал / цокольный этаж
Без подвала
Длина дома
14.1 м
Ширина дома
6.0 м
Высота в коньке
8.27 м
Кровля
Металлочерепица
Облицовка внешних стен
Облицовка камнем
,
Облицовочный кирпич
Фундамент
Ленточный монолитный
Терраса
Без террасы
Дополнительные
Окна
Окна до пола
,
Круглые окна
,
Окна с французским балконом
Сауна/баня внутри
Нет
Площадь гостиной
27.4 м²
Площадь кухни
23.9 м²
Количество санузлов
4
Котельная
Есть
Кладовая
2
Планы помещений
Фасады
Описание проекта
Компания Domamo предлагает проект одноэтажного дома с мансардным этажом и встроенным гаражом D1526. Общая площадь - 145 м2, размер - 14.1х6.0 м. Фундамент - ленточный монолитный, кровля - металлочерепица, внешняя отделка - облицовочный кирпич облицовка камнем. Для заказа проекта или внесения изменений свяжитесь с нами с помощью форм обратной связи на сайте или по телефону +7 (343) 357-92-70.
Категории проекта: с мансардой с гаражом с мансардой и гаражом для постоянного проживания кирпич современные для узких участков от 100 до 200 кв.м кирпичные дома с мансардой дома из кирпича с гаражом в европейском стиле готовые загородные из кирпича одноэтажные из кирпича одноэтажные из кирпича с гаражом одноэтажные из кирпича с мансардой одноэтажные кирпичные с котельной одноэтажные с гаражом одноэтажные с мансардой кирпичные площадью до 150 кв. м. кирпичные с котельной одноэтажные до 150 кв. м. одноэтажные с котельной с котельной кирпичные до 200 кв.м одноэтажные с гаражом и мансардой до 150 кв.м до 200 кв.м с двухскатной крышей загородные узкие прямоугольные со встроенным гаражом современные кирпичные Типовые проекты загородных одноэтажных домов облицованные кирпичом одноэтажные с тремя спальнями Проекты домов с тремя спальнями с гаражом под одной крышей с мансардой до 150 кв м полутораэтажные каменные одноэтажные до 200 кв м полутораэтажные из кирпича недорогие с мансардой с котельной с мансардой с двухскатной крышей с мансардой современные с мансардой с окнами до пола с мансардой прямоугольные с мансардой готовые с мансардой для постоянного проживания с мансардой до 200 кв.м с мансардой от 100 до 150 кв.м одноэтажные из кирпича с 3 спальнями готовые для постоянного проживания без террасы без подвала с изолированной кухней современные прямоугольные одноэтажные с мансардой для постоянного проживания одноэтажные с мансардой с большой кухней одноэтажные с мансардой с изолированной кухней одноэтажные с мансардой современные современные с гаражом современные с двухскатной крышей современные с окнами в пол современные без террасы современные до 150 кв. м современные от 100 до 200 кв. м до 150 кв.м для постоянного проживания до 150 кв.м с гаражом до 150 кв.м с двухскатной крышей до 150 кв.м с вальмовой крышей до 150 кв.м с окнами до пола до 150 кв.м готовые до 150 кв.м прямоугольные до 150 кв.м с котельной до 150 кв.м с изолированной кухней до 150 кв.м без бани до 150 кв.м без террасы до 150 кв.м без подвала до 150 кв.м с 3 спальнями до 150 кв.м с большой кухней недорогие с мансардой недорогие кирпичные недорогие с гаражом недорогие без террасы недорогие для постоянного проживания недорогие с двухскатной крышей недорогие с вальмовой крышей недорогие с окнами до пола недорогие с изолированной кухней недорогие без бани недорогие с котельной недорогие прямоугольные недорогие до 150 м2 недорогие от 100 до 200 м2 из клееного бруса без гаража Показать все категории Скрыть категории

Похожие проекты
Состав проекта
Входит в стоимость
Цена, руб. Сроки, дней
Комплект архитектурно-строительных чертежей (АС) Входит в стоимость Готов к отправке
Готово к продаже
Цена, руб. Сроки, дней
Паспорт рабочего проекта 5 000 ₽ Готов к отправке в корзину
Инженерные разделы: ВК + ОВ + ЭО 8 500 ₽ Готов к отправке в корзину
Разрабатывается отдельно
Цена, руб. Сроки, дней
Адаптация фундамента (изменение типа фундамента) по запросу 14 рабочих дней
Дизайн интерьера (стоимость от 2200руб. за квад.метр площади) по запросу 30 рабочих дней
Внесение изменений в проект по запросу 20 рабочих дней
Фэншуй дома 20 000 ₽ 14 рабочих дней в корзину
Фэншуй участка 15 000 ₽ 14 рабочих дней в корзину
Фэншуй полная консультация дом+участок с выездом на объект 100 000 ₽ 30 рабочих дней в корзину
Опции проекта вы можете заказать в корзине при оформлении заказа
Предложения строителей Свердловская область
Подбор строительной компании
Не знаете кому доверить строительство дома? Мы можем помочь! Подберем для вас из сотен наших партнеров несколько компаний с лучшем соотношением цена/качество под конкретно ваш запрос.
Подобрать
Посмотреть еще 2 компании Свернуть
Отзывы покупателей
Рейтинг покупателей
0 / 5 5 5 1
На основе 1 оценок покупателей
0%
0%
0%
0%
0%
Отзывы о проекте D1526
Отзыв о проекте D1526
Чтобы оставить отзыв, пожалуйста авторизуйтесь.
Подбор строительной компании
Не знаете кому доверить строительство дома? Мы можем помочь! Подберем для вас из сотен наших партнеров несколько компаний с лучшем соотношением цена/качество под конкретно ваш запрос.
Подобрать