Главная Проекты домов Проект одноэтажного коттеджа из кирпича с мансардным этажом, пятью спальнями и гаражом

D1540 Проект одноэтажного коттеджа из кирпича с мансардным этажом, пятью спальнями и гаражом

Сравнить проект В избранное
Проект одноэтажного коттеджа из кирпича с мансардным этажом, пятью спальнями и гаражом / 1
Проект одноэтажного коттеджа из кирпича с мансардным этажом, пятью спальнями и гаражом / 2
Проект одноэтажного коттеджа из кирпича с мансардным этажом, пятью спальнями и гаражом / 3
Проект одноэтажного коттеджа из кирпича с мансардным этажом, пятью спальнями и гаражом / 1
Проект одноэтажного коттеджа из кирпича с мансардным этажом, пятью спальнями и гаражом / 2
Проект одноэтажного коттеджа из кирпича с мансардным этажом, пятью спальнями и гаражом / 3
D1540
204 м²
Подготовка проекта:
33 рабочих дня
Стоимость проекта
Купить проект
Задайте вопросы по проекту нашему архитектору
8 (800) 200-28-83
Время работы: пн-вс: с 9:00 до 20:00
Задать вопрос по проекту

Технические характеристики
Общие
Материал стен
Кирпич
Общая площадь
204 м²
Площадь застройки
173.5 м²
Приведенная площадь
206.1 м²
Количество жилых комнат/спален
5
Этажи
1 этаж + мансарда
Гараж
Встроенный гараж
Количество машин
1
Подвал / цокольный этаж
Без подвала
Длина дома
9.11 м
Ширина дома
14.51 м
Высота в коньке
8.28 м
Кровля
Металлочерепица
Облицовка внешних стен
Мокрая штукатурка
,
Облицовка камнем
Толщина несущих наружных стен
380 мм
Межэтажные перекрытия
Монолитные
Внутренние не несущие перегородки
Кирпичные
Фундамент
Ленточный заглубленный из ФБС
Терраса
Терраса открытая
,
Терраса крытая
Дополнительные
Окна
Окна до пола
Мансардные окна
Есть
Камин
Есть
Сауна/баня внутри
Нет
Площадь гостиной
28.9 м²
Площадь кухни
9.1 м²
Количество санузлов
2
Окно в ванной комнате
Есть
Котельная
Есть
Кладовая
1
Балкон / лоджия
Балкон
Длина участка
20.11 м
Ширина участка
23.41 м
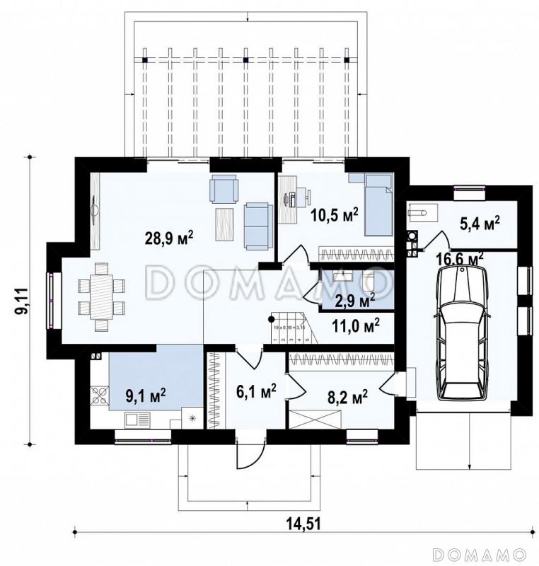
Планы помещений
Описание проекта
Компания Domamo предлагает проект одноэтажного коттеджа из кирпича с мансардным этажом, пятью спальнями и гаражом D1540. Общая площадь - 204 м2, размер - 9.11х14.51 м. Фундамент - ленточный заглубленный из фбс, кровля - металлочерепица, внешняя отделка - мокрая штукатурка облицовка камнем. Для заказа проекта или внесения изменений свяжитесь с нами с помощью форм обратной связи на сайте или по телефону +7 (343) 357-92-70.
Категории проекта: с мансардой с гаражом с мансардой и гаражом для постоянного проживания кирпич в классическом стиле от 200 до 300 кв.м кирпичные дома хай-тек классические кирпичные дома кирпичные дома с мансардой дома из кирпича с гаражом с эркером кирпичные дома с эркером с террасой из кирпича с террасой готовые загородные из кирпича одноэтажные из кирпича одноэтажные из кирпича с гаражом одноэтажные из кирпича с мансардой одноэтажные кирпичные с котельной одноэтажные с гаражом одноэтажные с мансардой кирпичные с котельной одноэтажные с котельной с котельной одноэтажные с гаражом и мансардой с двухскатной крышей загородные с камином прямоугольные с балконом со встроенным гаражом с эркером и мансардой Проекты одноэтажных домов с эркером Проекты одноэтажных домов с террасой Типовые проекты загородных одноэтажных домов с террасой и камином с гаражом под одной крышей одноэтажные с гаражом и террасой с мансардой и террасой полутораэтажные каменные с гаражом и террасой полутораэтажные из кирпича с балконом и террасой с эркером и гаражом с 5 спальнями от 200 до 250 м одноэтажные с мансардными окнами с мансардой с котельной с мансардой с камином с мансардой с двухскатной крышей с мансардой в классическом стиле с мансардой с окнами до пола с мансардой с мансардными окнами с мансардой с балконом с мансардой прямоугольные с мансардой готовые с мансардой для постоянного проживания готовые для постоянного проживания с камином без подвала с изолированной кухней классический стиль прямоугольные одноэтажные с мансардой для постоянного проживания одноэтажные с мансардой с изолированной кухней одноэтажные с мансардой классические одноэтажные с мансардой с балконом классические для постоянного проживания классические с гаражом классические с окнами в пол классические с террасой классические готовые классические с котельной классические с изолированной кухней классические без подвала классические с 2 санузлами классические с балконом классические прямоугольные классические с камином классические с двухскатной крышей из клееного бруса без гаража Показать все категории Скрыть категории

Похожие проекты
Состав проекта
Входит в стоимость
Цена, руб. Сроки, дней
Комплект архитектурно-строительных чертежей (АС) Входит в стоимость 33 рабочих дня
Готово к продаже
Цена, руб. Сроки, дней
Паспорт рабочего проекта 8 000 ₽ 5 рабочих дней в корзину
Дополнительная копия проекта формата А3 6 500 ₽ 5 рабочих дней в корзину
Электронная копия проекта (скан распечатанной версии) 4 000 ₽ 3 рабочих дня в корзину
Разрабатывается отдельно
Цена, руб. Сроки, дней
Адаптация фундамента (изменение типа фундамента) по запросу 14 рабочих дней
Дизайн интерьера (стоимость от 2200руб. за квад.метр площади) по запросу 30 рабочих дней
Внесение изменений в проект по запросу 20 рабочих дней
Инженерные разделы: ВК + ОВ + ЭО 23 340 ₽ 33 рабочих дня в корзину
Разработка Генплана участка, в масштабе 1:250 7 500 ₽ 15 рабочих дней в корзину
Фэншуй дома 20 000 ₽ 14 рабочих дней в корзину
Фэншуй участка 15 000 ₽ 14 рабочих дней в корзину
Фэншуй полная консультация дом+участок с выездом на объект 100 000 ₽ 30 рабочих дней в корзину
Опции проекта вы можете заказать в корзине при оформлении заказа
Предложения строителей Свердловская область
Подбор строительной компании
Не знаете кому доверить строительство дома? Мы можем помочь! Подберем для вас из сотен наших партнеров несколько компаний с лучшем соотношением цена/качество под конкретно ваш запрос.
Подобрать
Посмотреть еще 2 компании Свернуть
Отзывы покупателей
Рейтинг покупателей
0 / 5 5 5 1
На основе 1 оценок покупателей
0%
0%
0%
0%
0%
Отзывы о проекте D1540
Отзыв о проекте D1540
Чтобы оставить отзыв, пожалуйста авторизуйтесь.
Подбор строительной компании
Не знаете кому доверить строительство дома? Мы можем помочь! Подберем для вас из сотен наших партнеров несколько компаний с лучшем соотношением цена/качество под конкретно ваш запрос.
Подобрать