Главная Проекты домов Проект коттеджа с удобной планировкой

D157 Проект коттеджа с удобной планировкой

Сравнить проект В избранное
Проект коттеджа с удобной планировкой / 1
Проект коттеджа с удобной планировкой / 2
Проект коттеджа с удобной планировкой / 3
Проект коттеджа с удобной планировкой / 4
Проект коттеджа с удобной планировкой / 5
Проект коттеджа с удобной планировкой / 6
Проект коттеджа с удобной планировкой / 1
Проект коттеджа с удобной планировкой / 2
Проект коттеджа с удобной планировкой / 3
Проект коттеджа с удобной планировкой / 4
Проект коттеджа с удобной планировкой / 5
Проект коттеджа с удобной планировкой / 6
D157
149 м²
Технические характеристики
Общие
Материал стен
Газобетон
Общая площадь
149 м²
Жилая площадь
97.7 м²
Площадь застройки
122.1 м²
Приведенная площадь
153.03 м²
Количество жилых комнат/спален
4
Этажи
2 этажа
Гараж
Нет гаража
Подвал / цокольный этаж
Без подвала
Длина дома
12.49 м
Ширина дома
10.24 м
Высота в коньке
9.2 м
Кровля
Натуральная черепица
Облицовка внешних стен
Облицовочный кирпич
Толщина несущих наружных стен
375 мм
Межэтажные перекрытия
Сборно-монолитные
Внутренние не несущие перегородки
Газобетонные
Фундамент
Малозаглубленные ростверки
Терраса
Терраса крытая
Дополнительные
Камин
Есть
Сауна/баня внутри
Нет
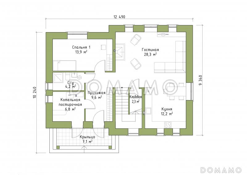
Площадь гостиной
28.3 м²
Площадь кухни
12.2 м²
Количество санузлов
3
Окно в ванной комнате
Есть
Котельная
Есть
Постирочная
Есть
Хозяйский санузел
Есть
Хозяйская гардеробная
Есть
Кладовая
2
Планы помещений
Фасады
Описание проекта

Большой дом из газобетона, рассчитанный на круглогодичное проживание семьи из 4-5 человек. Технические характеристики материала гарантируют экономный в строительстве и эксплуатации, теплый, энергоэффективный дом, а архитектурные особенности проекта — эстетичный внешний вид, соответствующим современным требованиям. В доме имеется два полноценных высоких этажа (по 3 м), 4 жилых комнаты, собственная котельная со входом с улицы и из прихожей, санузлы на каждом этаже (на втором ванна и отдельная душевая для спальни), большая светлая гостиная совмещенная с кухней-столовой, есть возможность размещения камина. Важным нюансом является создание уютной уединенной атмосферы благодаря ориентации окон жилых помещений на участок, а не в сторону соседнего дома.

Категории проекта: для постоянного проживания пенобетон современные от 100 до 200 кв.м в европейском стиле с террасой из газобетона готовые двухэтажные с котельной двухэтажные из газобетона из газосиликатных блоков двухэтажные из пеноблоков до 150 кв.м до 200 кв.м 9х12 загородные с ломаной крышей из керамзитобетонных блоков с камином с гардеробной прямоугольные 10х12 из газобетона с террасой из блоков двухэтажные из блоков из пеноблоков с террасой загородные из газобетона Проекты двухэтажных домов с террасой Проекты двухэтажных домов с верандой без гаража с террасой и камином облицованные кирпичом двухэтажные 10 на 12 двухэтажные до 150 кв м двухэтажные 200 кв м с 4 спальнями из пеноблоков загородные двухэтажные до 180 кв.м двухэтажные с камином двухэтажные с 4 спальнями двухэтажные в современном стиле двухэтажные до 150 кв.м с террасой двухэтажные без гаража из газобетона до 150 кв.м из газобетона до 200 кв.м из газобетона от 100 до 200 кв.м из газобетона современные из газобетона с котельной из газобетона прямоугольные из газобетона готовые из газобетона с камином из газобетона с четырьмя спальнями из газобетона 10х12 из газобетона для постоянного проживания двухэтажные из газобетона без гаража двухэтажные из газобетона с террасой двухэтажные из газобетона с камином двухэтажные из газобетона с прачечной двухэтажные из газобетона с котельной двухэтажные из газобетона современные двухэтажные из газобетона до 150 кв. м двухэтажные из газобетона до 200 кв. м двухэтажные из газобетона без подвала двухэтажные из газобетона с 4 спальнями современные без гаража современные с террасой современные до 150 кв. м современные от 100 до 200 кв. м европейские 10х12 до 150 кв.м для постоянного проживания до 150 кв.м без гаража до 150 кв.м готовые до 150 кв.м прямоугольные до 150 кв.м с котельной до 150 кв.м с прачечной до 150 кв.м с мастер-спальней до 150 кв.м без бани до 150 кв.м с террасой до 150 кв.м без подвала до 150 кв.м с 4 спальнями до 150 кв.м с камином из пеноблоков в современном стиле из пеноблоков прямоугольные из пеноблоков для постоянного проживания из пеноблоков готовые из пеноблоков с камином из пеноблоков 10х12 из пеноблоков до 150 м кв. из пеноблоков от 100 до 200 м2 из пеноблоков с 4 спальнями из клееного бруса без гаража Показать все категории Скрыть категории

Похожие проекты
Состав проекта
Входит в стоимость
Цена, руб. Сроки, дней
Комплект архитектурно-строительных чертежей (АС) Входит в стоимость 10 рабочих дней
Готово к продаже
Цена, руб. Сроки, дней
Дополнительная копия проекта формата А3 4 000 ₽ Готов к отправке в корзину
Электронная копия проекта (скан распечатанной версии) 4 000 ₽ 3 рабочих дня в корзину
Разрабатывается отдельно
Цена, руб. Сроки, дней
Адаптация фундамента (изменение типа фундамента) по запросу 14 рабочих дней
Дизайн интерьера (стоимость от 2200руб. за квад.метр площади) по запросу 30 рабочих дней
Внесение изменений в проект по запросу 20 рабочих дней
Инженерные разделы: ВК + ОВ + ЭО 30 000 ₽ 20 рабочих дней в корзину
Зеркалирование проекта (для которого нет зеркальной версии) 8 000 ₽ 5 рабочих дней в корзину
Разработка Генплана участка, в масштабе 1:250 7 500 ₽ 5 рабочих дней в корзину
Фэншуй дома 20 000 ₽ 14 рабочих дней в корзину
Фэншуй участка 15 000 ₽ 14 рабочих дней в корзину
Фэншуй полная консультация дом+участок с выездом на объект 100 000 ₽ 30 рабочих дней в корзину
Опции проекта вы можете заказать в корзине при оформлении заказа
Предложения строителей Свердловская область
Подбор строительной компании
Не знаете кому доверить строительство дома? Мы можем помочь! Подберем для вас из сотен наших партнеров несколько компаний с лучшем соотношением цена/качество под конкретно ваш запрос.
Подобрать
Посмотреть еще 3 компании Свернуть
Отзывы покупателей
Рейтинг покупателей
0 / 5 5 5 1
На основе 1 оценок покупателей
0%
0%
0%
0%
0%
Отзывы о проекте D157
Отзыв о проекте D157
Чтобы оставить отзыв, пожалуйста авторизуйтесь.
Подбор строительной компании
Не знаете кому доверить строительство дома? Мы можем помочь! Подберем для вас из сотен наших партнеров несколько компаний с лучшем соотношением цена/качество под конкретно ваш запрос.
Подобрать