Главная Проекты домов Проект дома из клееного бруса в стиле скандинавского конструктивизма

D1763 Проект дома из клееного бруса в стиле скандинавского конструктивизма

Сравнить проект В избранное
Проект дома из клееного бруса в стиле скандинавского конструктивизма / 1
Проект дома из клееного бруса в стиле скандинавского конструктивизма / 2
Проект дома из клееного бруса в стиле скандинавского конструктивизма / 1
Проект дома из клееного бруса в стиле скандинавского конструктивизма / 2
D1763
185 м²
Проект с подрядом
Артикул проекта: ХАГЕР
Компания: Ecohouse Group
Стоимость строительства
4 420 000 ₽
Заказать подробную смету
+7 (812) XXX-XX-XX Показать телефон
Задать вопрос по проекту
Технические характеристики
Общие
Материал стен
Клееный брус
Общая площадь
185 м²
Приведенная площадь
154.24 м²
Количество жилых комнат/спален
3
Этажи
2 этажа
Гараж
Нет гаража
Подвал / цокольный этаж
Без подвала
Длина дома
8.3 м
Ширина дома
8.2 м
Кровля
Металлочерепица
Облицовка внешних стен
Без облицовки
Толщина несущих наружных стен
160 мм
Межэтажные перекрытия
По деревянным балкам
Внутренние не несущие перегородки
Каркасно-обшивные
Терраса
Терраса открытая
Дополнительные
Окна
Окна до пола
,
Панорамные окна
Сауна/баня внутри
Есть
Площадь гостиной
20 м²
Площадь кухни
13.3 м²
Количество санузлов
3
Окно в ванной комнате
Есть
Котельная
Есть
Кабинет
Есть
Хозяйский санузел
Есть
Кладовая
1
Балкон / лоджия
Балкон
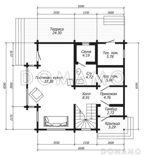
Планы помещений
Описание проекта
Компания Domamo предлагает проект дома из клееного бруса в стиле скандинавского конструктивизма D1763. Общая площадь - 185 м2, размер - 8.3х8.2 м. Фундамент - , кровля - металлочерепица, внешняя отделка - без облицовки. Для заказа проекта или внесения изменений свяжитесь с нами с помощью форм обратной связи на сайте или по телефону +7 (343) 357-92-70.
Категории проекта: деревянные для постоянного проживания из клееного бруса в английском стиле в скандинавском стиле от 100 до 200 кв.м в европейском стиле с эркером с террасой из бруса в стиле замка в финском стиле двухэтажные с котельной двухэтажные деревянные с баней 8х8 до 200 кв.м 6х10 7х8 8х9 загородные с четырехскатной крышей с сауной квадратные с балконом с панорамным остеклением двухэтажные с эркером Проекты деревянных домов с террасой Проекты деревянных домов с баней Проекты двухэтажных домов из клееного бруса Проекты двухэтажных домов с террасой Проекты двухэтажных домов с верандой без гаража с кабинетом Проекты домов с тремя спальнями двухэтажные 8 на 8 деревянные для круглогодичного проживания двухэтажные 8 на 9 двухэтажные 200 кв м с панорамными окнами и террасой двухэтажные с сауной двухэтажные от 150 до 200 кв м с балконом и террасой двухэтажные с панорамными окнами двухэтажные с 3 спальнями двухэтажные с балконом двухэтажные с балконом и террасой двухэтажные без гаража скандинавские для постоянного проживания скандинавские без гаража скандинавские с окнами в пол скандинавские с панорамными окнами скандинавские с террасой скандинавские с балконом скандинавские квадратные скандинавские от 100 до 200 м2 скандинавские с четырехскатной крышей скандинавские с котельной скандинавские с кабинетом деревянные в скандинавском стиле деревянные с окнами в пол деревянные с панорамными окнами деревянные с балконом деревянные квадратные деревянные без гаража деревянные с подрядом деревянные без подвала деревянные с 3 спальнями деревянные с баней деревянные 8х8 деревянные от 100 до 200 м2 недорогие с панорамными окнами из клееного бруса проект с подрядом из клееного бруса для постоянного проживания из клееного бруса с окном в ванной комнате из клееного бруса квадратный из клееного бруса с балконом из клееного бруса с окнами в пол (в гостиной) из клееного бруса с окнами в пол (на кухне) из клееного бруса с окнами в пол из клееного бруса с панорамными окнами из клееного бруса в скандинавском стиле из клееного бруса с четырехскатной крышей из клееного бруса с каркасно-обшивными перегородками из клееного бруса без облицовки из клееного бруса с перекрытиями по деревянным балкам из клееного бруса с кровлей из металлочерепицы из клееного бруса с хозяйским санузлом из клееного бруса с кабинетом из клееного бруса с котельной из клееного бруса с сауной/баней внутри из клееного бруса с 1 эркером из клееного бруса с открытой терассой из клееного бруса без подвала из клееного бруса без гаража из клееного бруса двухэтажные из клееного бруса от 100 до 200 м2 Проекты домов с подрядом Показать все категории Скрыть категории

Похожие проекты
Состав проекта
Входит в стоимость
Цена, руб. Сроки, дней
Комплект архитектурно-строительных чертежей (АС) Входит в стоимость Готов к отправке
Разрабатывается отдельно
Цена, руб. Сроки, дней
Адаптация фундамента (изменение типа фундамента) по запросу 14 рабочих дней
Дизайн интерьера (стоимость от 2200руб. за квад.метр площади) по запросу 30 рабочих дней
Внесение изменений в проект по запросу 20 рабочих дней
Фэншуй дома 20 000 ₽ 14 рабочих дней в корзину
Фэншуй участка 15 000 ₽ 14 рабочих дней в корзину
Фэншуй полная консультация дом+участок с выездом на объект 100 000 ₽ 30 рабочих дней в корзину
Опции проекта вы можете заказать в корзине при оформлении заказа
Комплектации
Отзывы покупателей
Рейтинг покупателей
0 / 5 5 5 1
На основе 1 оценок покупателей
0%
0%
0%
0%
0%
Отзывы о проекте D1763
Отзыв о проекте D1763
Чтобы оставить отзыв, пожалуйста авторизуйтесь.
Подбор строительной компании
Не знаете кому доверить строительство дома? Мы можем помочь! Подберем для вас из сотен наших партнеров несколько компаний с лучшем соотношением цена/качество под конкретно ваш запрос.
Подобрать