Главная Проекты домов Проект особняка в стиле Тюдор

D1789 Проект особняка в стиле Тюдор

Сравнить проект В избранное
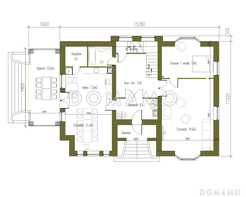
Проект особняка в стиле Тюдор / 1
Проект особняка в стиле Тюдор / 2
Проект особняка в стиле Тюдор / 3
Проект особняка в стиле Тюдор / 1
Проект особняка в стиле Тюдор / 2
Проект особняка в стиле Тюдор / 3
D1789
386 м²
Подготовка проекта:
Готов к отправке
Стоимость проекта
Купить проект
Задайте вопросы по проекту нашему архитектору
8 (800) 200-28-83
Время работы: пн-вс: с 9:00 до 20:00
Задать вопрос по проекту

Технические характеристики
Общие
Материал стен
Кирпич
Общая площадь
386 м²
Жилая площадь
214 м²
Площадь застройки
191.7 м²
Приведенная площадь
386.16 м²
Количество жилых комнат/спален
5
Этажи
2 этажа + мансарда
Гараж
Нет гаража
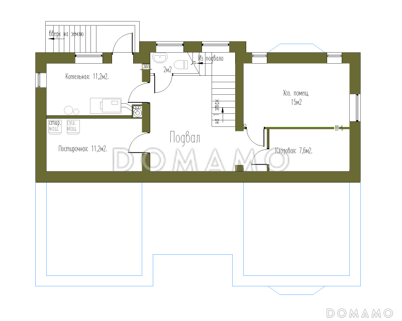
Подвал / цокольный этаж
С окнами
Длина дома
15.3 м
Ширина дома
11 м
Высота в коньке
13 м
Кровля
Натуральная черепица
Облицовка внешних стен
Облицовочный кирпич
Толщина несущих наружных стен
380 мм
Межэтажные перекрытия
Монолитные
Внутренние не несущие перегородки
Кирпичные
Фундамент
Ленточный монолитный
Терраса
Терраса открытая
,
Терраса крытая
Дополнительные
Окна
Окна до пола
Камин
Есть
Сауна/баня внутри
Нет
Площадь гостиной
34.5 м²
Площадь кухни
13.5 м²
Количество санузлов
4
Окно в ванной комнате
Есть
Котельная
Есть
Кабинет
Есть
Постирочная
Есть
Хозяйский санузел
Есть
Хозяйская гардеробная
Есть
Кладовая
4
Планы помещений
Фасады
Описание проекта
Представительский особняк выполнен в лучших традициях английских Викторианских усадеб. Нужно отметить просторную столовую при кухне. Удобный выход из столовой на большую террасу. Отдельная гостиная, не смежная с кухней. Предусмотрен большой дровяной камин, как непременный атрибут солидного английского дома.
При спальнях 2 и 3 - свои приватные санузлы. А при спальне 3 - еще и гардеробная.
Пологая лестница на 2-ой и 3-ий этажи, с выверенной высотой ступеней и шириной маршей. Лестничный холл имеет 6 симметричных окон, которые можно выполнить витражными, для сохранения духа старой усадьбы.
На 3-ем этаже - 2 нормальные жилые комнаты, а также большой холл.
Проект может быть выполнен в бесподвальном варианте.
Категории проекта: с мансардой для постоянного проживания фахверк кирпич в английском стиле от 300 до 400 кв.м кирпичные дома фахверк кирпичные дома с мансардой с эркером кирпичные дома с эркером с террасой из кирпича с террасой из бруса в стиле замка готовые в стиле средневекового замка с цокольным этажом загородные из кирпича двухэтажные из кирпича двухэтажные из кирпича с мансардой двухэтажные двухэтажные с мансардой кирпичные с цокольным этажом кирпичные с котельной с котельной с цокольным этажом и мансардой загородные с камином с гардеробной двухэтажные с цокольным этажом с эркером и мансардой двухэтажные с эркером Проекты двухэтажных домов с террасой Проекты двухэтажных домов с верандой без гаража с террасой и камином облицованные кирпичом с кабинетом с мансардой и террасой в английском стиле из кирпича п-образные с 5 спальнями двухэтажные с камином двухэтажные без гаража с мансардой с котельной с мансардой с камином с мансардой фахверк с мансардой в английском стиле с мансардой с окнами до пола с мансардой готовые с мансардой для постоянного проживания с мансардой элитные из клееного бруса без гаража Показать все категории Скрыть категории

Похожие проекты
Состав проекта
Входит в стоимость
Цена, руб. Сроки, дней
Комплект архитектурно-строительных чертежей (АС) Входит в стоимость 22 рабочих дня
Паспорт рабочего проекта Входит в стоимость 22 рабочих дня
Готово к продаже
Цена, руб. Сроки, дней
Дополнительная копия проекта формата А3 4 000 ₽ Готов к отправке в корзину
Электронная копия проекта (скан распечатанной версии) 4 000 ₽ 3 рабочих дня в корзину
Разрабатывается отдельно
Цена, руб. Сроки, дней
Адаптация фундамента (изменение типа фундамента) по запросу 14 рабочих дней
Дизайн интерьера (стоимость от 2200руб. за квад.метр площади) по запросу 30 рабочих дней
Внесение изменений в проект по запросу 20 рабочих дней
Зеркалирование проекта (для которого нет зеркальной версии) 8 000 ₽ 5 рабочих дней в корзину
Разработка Генплана участка, в масштабе 1:250 7 500 ₽ 5 рабочих дней в корзину
Фэншуй дома 20 000 ₽ 14 рабочих дней в корзину
Фэншуй участка 15 000 ₽ 14 рабочих дней в корзину
Фэншуй полная консультация дом+участок с выездом на объект 100 000 ₽ 30 рабочих дней в корзину
Опции проекта вы можете заказать в корзине при оформлении заказа
Предложения строителей Свердловская область
Подбор строительной компании
Не знаете кому доверить строительство дома? Мы можем помочь! Подберем для вас из сотен наших партнеров несколько компаний с лучшем соотношением цена/качество под конкретно ваш запрос.
Подобрать
Посмотреть еще 2 компании Свернуть
Отзывы покупателей
Рейтинг покупателей
0 / 5 5 5 1
На основе 1 оценок покупателей
0%
0%
0%
0%
0%
Отзывы о проекте D1789
Отзыв о проекте D1789
Чтобы оставить отзыв, пожалуйста авторизуйтесь.
Подбор строительной компании
Не знаете кому доверить строительство дома? Мы можем помочь! Подберем для вас из сотен наших партнеров несколько компаний с лучшем соотношением цена/качество под конкретно ваш запрос.
Подобрать