Главная Проекты домов Проект дома с санузлом и просторным балконом на втором этаже

D1858 Проект дома с санузлом и просторным балконом на втором этаже

Сравнить проект В избранное
Проект дома с санузлом и просторным балконом на втором этаже / 1
Проект дома с санузлом и просторным балконом на втором этаже / 1
D1858
171 м²
Домокомплект
Артикул проекта: ПД-19
Компания: Element-House
Стоимость домокомплекта
1 087 000 ₽
Заказать подробную смету
+7 (909) XXX-XX-XX Показать телефон
Задать вопрос по проекту
Технические характеристики
Общие
Материал стен
Бревно
Общая площадь
171 м²
Приведенная площадь
177.72 м²
Количество жилых комнат/спален
4
Этажи
1 этаж + мансарда
Гараж
Нет гаража
Подвал / цокольный этаж
Без подвала
Длина дома
16.1 м
Ширина дома
10.0 м
Облицовка внешних стен
Без облицовки
Межэтажные перекрытия
По деревянным балкам
Внутренние не несущие перегородки
Каркасно-обшивные
Терраса
Терраса крытая
Дополнительные
Второй свет
Есть
Сауна/баня внутри
Нет
Площадь гостиной
26.7 м²
Площадь кухни
25.8 м²
Количество санузлов
2
Окно в ванной комнате
Есть
Котельная
Есть
Кладовая
1
Балкон / лоджия
Балкон
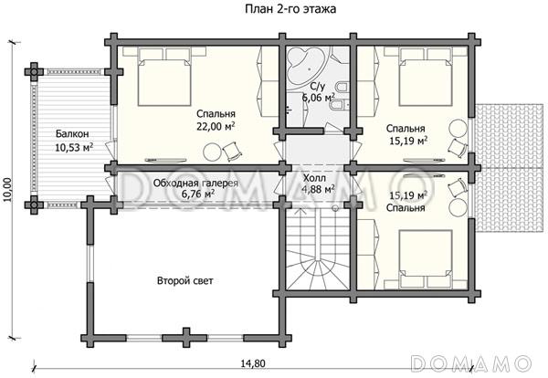
Планы помещений
Описание проекта
Компания Domamo предлагает проект дома с санузлом и просторным балконом на втором этаже D1858. Общая площадь - 171 м2, размер - 16.1х10.0 м. Фундамент - , кровля - , внешняя отделка - без облицовки. Для заказа проекта или внесения изменений свяжитесь с нами с помощью форм обратной связи на сайте или по телефону +7 (343) 357-92-70.
Категории проекта: с мансардой деревянные для постоянного проживания из бревна от 100 до 200 кв.м с террасой одноэтажные с мансардой одноэтажные с котельной с котельной со вторым светом одноэтажные деревянные оцилиндрованное бревно до 200 кв.м с двухскатной крышей загородные прямоугольные с балконом в русском стиле одноэтажные из бревна из бревна с мансардой Проекты деревянных домов с мансардой Проекты деревянных домов с террасой Проекты одноэтажных домов с террасой Типовые проекты загородных одноэтажных домов без гаража одноэтажные без гаража одноэтажные с 4 спальнями с мансардой и террасой полутораэтажные деревянные для круглогодичного проживания из бревна для постоянного проживания рубленные с 4 спальнями одноэтажные до 200 кв м с балконом и террасой с мансардой с котельной с мансардой с двухскатной крышей с мансардой со вторым светом с мансардой с балконом с мансардой прямоугольные с мансардой для постоянного проживания с мансардой до 200 кв.м со вторым светом с балконом с террасой со вторым светом прямоугольные с котельной без гаража одноэтажные с мансардой из бревна одноэтажные с мансардой для постоянного проживания одноэтажные с мансардой со вторым светом одноэтажные с мансардой с большой кухней одноэтажные с мансардой в русском стиле одноэтажные с мансардой с балконом деревянные в русском стиле деревянные с вторым светом деревянные с балконом деревянные прямоугольные деревянные без гаража деревянные домокомплекты деревянные без подвала деревянные с 4 спальнями деревянные с большой кухней деревянные от 100 до 200 м2 в русском стиле без гаража в русском стиле с террасой в русском стиле с балконом в русском стиле прямоугольные в русском стиле для постоянного проживания в русском стиле без бани в русском стиле с котельной в русском стиле с двускатной крышей в русском стиле от 100 до 200 кв м из клееного бруса без гаража Показать все категории Скрыть категории

Похожие проекты
Состав проекта
Входит в стоимость
Цена, руб. Сроки, дней
Комплект архитектурно-строительных чертежей (АС) Входит в стоимость Готов к отправке
Разрабатывается отдельно
Цена, руб. Сроки, дней
Адаптация фундамента (изменение типа фундамента) по запросу 14 рабочих дней
Дизайн интерьера (стоимость от 2200руб. за квад.метр площади) по запросу 30 рабочих дней
Внесение изменений в проект по запросу 20 рабочих дней
Фэншуй дома 20 000 ₽ 14 рабочих дней в корзину
Фэншуй участка 15 000 ₽ 14 рабочих дней в корзину
Фэншуй полная консультация дом+участок с выездом на объект 100 000 ₽ 30 рабочих дней в корзину
Опции проекта вы можете заказать в корзине при оформлении заказа
Отзывы покупателей
Рейтинг покупателей
0 / 5 5 5 1
На основе 1 оценок покупателей
0%
0%
0%
0%
0%
Отзывы о проекте D1858
Отзыв о проекте D1858
Чтобы оставить отзыв, пожалуйста авторизуйтесь.
Подбор строительной компании
Не знаете кому доверить строительство дома? Мы можем помочь! Подберем для вас из сотен наших партнеров несколько компаний с лучшем соотношением цена/качество под конкретно ваш запрос.
Подобрать