Главная Проекты домов Проект коттеджа с оригинальной планировкой и гаражом на 2 а/м

D205 Проект коттеджа с оригинальной планировкой и гаражом на 2 а/м

Сравнить проект В избранное
Проект коттеджа с оригинальной планировкой и гаражом на 2 а/м / 1
Проект коттеджа с оригинальной планировкой и гаражом на 2 а/м / 2
Проект коттеджа с оригинальной планировкой и гаражом на 2 а/м / 3
Проект коттеджа с оригинальной планировкой и гаражом на 2 а/м / 4
Проект коттеджа с оригинальной планировкой и гаражом на 2 а/м / 5
Проект коттеджа с оригинальной планировкой и гаражом на 2 а/м / 6
Проект коттеджа с оригинальной планировкой и гаражом на 2 а/м / 1
Проект коттеджа с оригинальной планировкой и гаражом на 2 а/м / 2
Проект коттеджа с оригинальной планировкой и гаражом на 2 а/м / 3
Проект коттеджа с оригинальной планировкой и гаражом на 2 а/м / 4
Проект коттеджа с оригинальной планировкой и гаражом на 2 а/м / 5
Проект коттеджа с оригинальной планировкой и гаражом на 2 а/м / 6
D205
629/717 м²
Технические характеристики
Общие
Материал стен
Кирпич
Общая площадь
629/717 м²
Жилая площадь
367 м²
Площадь застройки
398 м²
Приведенная площадь
766.76 м²
Количество жилых комнат/спален
5
Этажи
2 этажа + мансарда
Гараж
Встроенный гараж
Количество машин
2
Подвал / цокольный этаж
С окнами
Погреб
Есть
Длина дома
24 м
Ширина дома
17.64 м
Кровля
Гибкая черепица
Облицовка внешних стен
Мокрая штукатурка
Толщина несущих наружных стен
640 мм
Межэтажные перекрытия
Сборные
Внутренние не несущие перегородки
Кирпичные
Фундамент
Ленточный заглубленный из ФБС
Терраса
Терраса крытая
Дополнительные
Окна
Панорамные окна
,
Круглые окна
Второй свет
Есть
Камин
Есть
Сауна/баня внутри
Есть
Купель
Есть
Площадь гостиной
30.4 м²
Площадь кухни
14.2 м²
Количество санузлов
5
Окно в ванной комнате
Есть
Котельная
Есть
Кабинет
Есть
Постирочная
Есть
Хозяйский санузел
Есть
Кладовая
4
Зимний сад
Есть
Балкон / лоджия
Балкон
Планы помещений
Фасады
Описание проекта

Оригинальный особняк для роскошной жизни за городом. Здание построено из кирпича, имеет асимметричную форму, несколько стен сделаны закругленными. Два этажа дополнены подвалом и мансардой.

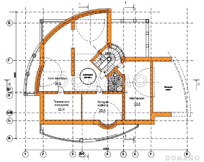
Главный вход ведет в вестибюль площадью 23,8 кв.м, плавно переходящий в гардероб. По центру этажа расположен холл с парадной лестницей. С одной стороны от него находятся кухня-столовая и гостиная. Позади лестницы — зимний сад с выходом на террасу и холл с переходом в кинозал. С другой стороны от холла предусмотрена комната для обслуживающего персонала, а также санузел и проход в гараж и кладовую. В плане второго этажа можно выделить несколько зон. Во-первых, это спальня хозяев дома с малой гостиной и балконами. Во-вторых, имеется детская спальня с учебно-игровой комнатой. Из спален родителей и детей можно пройти в общую ванную с сауной. Также, на этаже предусмотрены кабинет и гостевая спальня с санузлом. Еще одна комната для гостей расположена на мансарде.

Преимущества и особенности:

  • в подвале спроектированы несколько подсобных помещений, а также котельная и погреб,

  • изящно оформленные террасы, разнотипные окна и закругленные стены сделают дом украшением любого большого участка.


Категории проекта: с мансардой с гаражом с мансардой и гаражом для постоянного проживания кирпич современные от 500 кв.м кирпичные дома с мансардой дома из кирпича с гаражом в европейском стиле с террасой из кирпича с террасой готовые с цокольным этажом загородные из кирпича двухэтажные из кирпича двухэтажные кирпичные с гаражом двухэтажные из кирпича с мансардой двухэтажные двухэтажные с гаражом двухэтажные с мансардой кирпичные с цокольным этажом кирпичные с котельной с котельной со вторым светом с баней с цокольным этажом и мансардой загородные с четырехскатной крышей с мансардной крышей с баней и гаражом с камином с сауной с балконом со встроенным гаражом с зимним садом с панорамным остеклением кирпичные с баней двухэтажные с цокольным этажом современные кирпичные Проекты двухэтажных домов с террасой Проекты двухэтажных домов с верандой с террасой и камином с кабинетом с гаражом под одной крышей с гаражом на 2 машины с мансардой и террасой особняки с гаражом и террасой двухэтажные с террасой и гаражом с панорамными окнами и террасой двухэтажные с сауной с цокольным этажом и гаражом с балконом и террасой с 5 спальнями большие сложной формы двухэтажные с камином двухэтажные со вторым светом двухэтажные с панорамными окнами двухэтажные с балконом двухэтажные с балконом и террасой двухэтажные в современном стиле с мансардой с баней с мансардой с котельной с мансардой с зимним садом с мансардой с камином с мансардой с четырехскатной крышей с мансардой современные с мансардой с панорамными окнами с мансардой со вторым светом с мансардой с балконом с мансардой сложной формы с мансардой готовые с мансардой для постоянного проживания с мансардой элитные с мансардой большие современные с гаражом современные с панорамными окнами современные с террасой современные большие современные со вторым светом современные с подвалом большие готовые большие с четырехскатной крышей большие с вторым светом большие с балконом большие сложной формы большие с камином большие с погребом большие с окном в ванной комнате большие с панорамными окнами большие с гаражом большие с гаражом на 2 машины большие с изолированной кухней большие с террасой большие с баней большие с прачечной большие с котельной большие с кабинетом большие с зимним садом недорогие с панорамными окнами из клееного бруса без гаража Показать все категории Скрыть категории

Похожие проекты
Состав проекта
Входит в стоимость
Цена, руб. Сроки, дней
Комплект архитектурно-строительных чертежей (АС) Входит в стоимость Готов к отправке
Разрабатывается отдельно
Цена, руб. Сроки, дней
Адаптация фундамента (изменение типа фундамента) по запросу 14 рабочих дней
Дизайн интерьера (стоимость от 2200руб. за квад.метр площади) по запросу 30 рабочих дней
Внесение изменений в проект по запросу 20 рабочих дней
Фэншуй дома 20 000 ₽ 14 рабочих дней в корзину
Фэншуй участка 15 000 ₽ 14 рабочих дней в корзину
Фэншуй полная консультация дом+участок с выездом на объект 100 000 ₽ 30 рабочих дней в корзину
Опции проекта вы можете заказать в корзине при оформлении заказа
Предложения строителей Выбрать регион
Минимальная
26 836 600 ₽
Стандарт
32 970 680 ₽
Под чистовую отделку
42 938 560 ₽
Показать подробные комплектации
Минимальная
61 264 124 ₽
Стандарт
72 075 440 ₽
Под чистовую отделку
93 698 072 ₽
Показать подробные комплектации
Минимальная
28 216 767 ₽
Стандарт
41 443 378 ₽
Под чистовую отделку
65 251 275 ₽
Показать подробные комплектации
Минимальная
30 724 073 ₽
Стандарт
35 278 627 ₽
Под чистовую отделку
45 171 365 ₽
Показать подробные комплектации
Минимальная
12 460 409 ₽
Стандарт
15 430 255 ₽
Под чистовую отделку
18 572 207 ₽
Показать подробные комплектации
Подбор строительной компании
Не знаете кому доверить строительство дома? Мы можем помочь! Подберем для вас из сотен наших партнеров несколько компаний с лучшем соотношением цена/качество под конкретно ваш запрос.
Подобрать
Посмотреть еще 20 компаний Свернуть
Отзывы покупателей
Рейтинг покупателей
0 / 5 5 5 1
На основе 1 оценок покупателей
0%
0%
0%
0%
0%
Отзывы о проекте D205
Отзыв о проекте D205
Чтобы оставить отзыв, пожалуйста авторизуйтесь.
Подбор строительной компании
Не знаете кому доверить строительство дома? Мы можем помочь! Подберем для вас из сотен наших партнеров несколько компаний с лучшем соотношением цена/качество под конкретно ваш запрос.
Подобрать