D2145 Норд

Сравнить проект В избранное
Норд / 1
Норд / 2
Норд / 3
Норд / 4
Норд / 1
Норд / 2
Норд / 3
Норд / 4
D2145
181 м²
Проект с подрядом
Компания: Оптима Синергидом
Стоимость строительства
не указана
Заказать подробную смету
+7 (812) XXX-XX-XX Показать телефон
Задать вопрос по проекту
Технические характеристики
Общие
Материал стен
Газобетон
Общая площадь
181 м²
Приведенная площадь
160.86 м²
Количество жилых комнат/спален
4
Этажи
2 этажа
Гараж
Нет гаража
Количество машин
1
Подвал / цокольный этаж
Без подвала
Длина дома
10.6 м
Ширина дома
8 м
Высота в коньке
7.14 м
Кровля
Гибкая черепица
Облицовка внешних стен
Деревянная вагонка
,
Мокрая штукатурка
,
Облицовка камнем
Толщина несущих наружных стен
300 мм
Межэтажные перекрытия
Монолитные
Внутренние не несущие перегородки
Газобетонные
Фундамент
Монолитная ж/бетонная плита
Терраса
Терраса открытая
Дополнительные
Окна
Окна до пола
Камин
Есть
Площадь гостиной
26.4 м²
Площадь кухни
7.6 м²
Количество санузлов
2
Котельная
Есть
Хозяйская гардеробная
Есть
Кладовая
3
Балкон / лоджия
Балкон
Планы помещений
Фасады
Описание проекта

Проект "Норд" - новый, современный дом, с функциональными и рациональными планировками. Проект выполнен в строгом и лаконичном стиле, оптимально совмещая в себе компактность объемно-планировочных решений и отточенность архитектурных деталей.

Сдержанная цветовая гамма фасадов сочетается со сложной формой окон, составляя единый ансамбль.

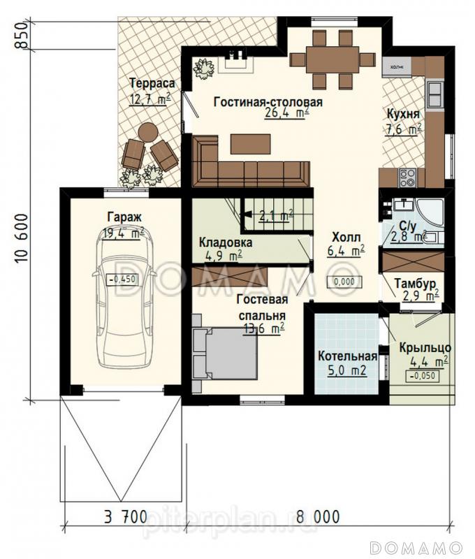
На первом этаже гостиная с кухней-столовой и выходом на террасу, гостевая спальня и гараж, а на втором этаже - три спальни и с/у.

Дом за счет своей формы может быть расположен на участке очень разнообразно - в зависимости от инсоляции и других особенностей места.

Категории проекта: для постоянного проживания пенобетон для узких участков дачные дома от 100 до 200 кв.м 8х11 с террасой из газобетона двухэтажные с котельной двухэтажные из газобетона из газосиликатных блоков двухэтажные из пеноблоков дачные из пеноблоков дачные с верандой до 200 кв.м загородные с четырехскатной крышей из керамзитобетонных блоков с камином с гардеробной узкие прямоугольные с балконом из газобетона с террасой из блоков двухэтажные из блоков из пеноблоков с террасой загородные из газобетона Проекты двухэтажных домов с террасой Проекты двухэтажных домов с верандой без гаража дачные с террасой с террасой и камином дачные с камином каменные двухэтажные 200 кв м с 4 спальнями двухэтажные от 150 до 200 кв м с балконом и террасой из пеноблоков загородные двухэтажные с камином двухэтажные с 4 спальнями двухэтажные с балконом двухэтажные с балконом и террасой двухэтажные дачные двухэтажные без гаража из газобетона до 200 кв.м из газобетона от 100 до 200 кв.м из газобетона с четырехскатной крышей из газобетона с балконом из газобетона с котельной из газобетона прямоугольные из газобетона с подрядом из газобетона с камином из газобетона с четырьмя спальнями из газобетона дачные из газобетона для постоянного проживания двухэтажные из газобетона без гаража двухэтажные из газобетона с террасой двухэтажные из газобетона с камином двухэтажные из газобетона с котельной двухэтажные из газобетона с четырехскатной крышей двухэтажные из газобетона до 200 кв. м двухэтажные из газобетона без подвала двухэтажные из газобетона с 4 спальнями из пеноблоков с четырехскатной крышей из пеноблоков с окнами до пола из пеноблоков прямоугольные из пеноблоков с балконом из пеноблоков для постоянного проживания из пеноблоков с подрядом из пеноблоков с камином из пеноблоков 8х11 из пеноблоков от 100 до 200 м2 из пеноблоков с 4 спальнями из клееного бруса без гаража Проекты домов с подрядом Показать все категории Скрыть категории

Похожие проекты
Состав проекта
Входит в стоимость
Цена, руб. Сроки, дней
Комплект архитектурно-строительных чертежей (АС) Входит в стоимость Готов к отправке
Разрабатывается отдельно
Цена, руб. Сроки, дней
Адаптация фундамента (изменение типа фундамента) по запросу 14 рабочих дней
Дизайн интерьера (стоимость от 2200руб. за квад.метр площади) по запросу 30 рабочих дней
Внесение изменений в проект по запросу 20 рабочих дней
Фэншуй дома 20 000 ₽ 14 рабочих дней в корзину
Фэншуй участка 15 000 ₽ 14 рабочих дней в корзину
Фэншуй полная консультация дом+участок с выездом на объект 100 000 ₽ 30 рабочих дней в корзину
Опции проекта вы можете заказать в корзине при оформлении заказа
Комплектации
Отзывы покупателей
Рейтинг покупателей
0 / 5 5 5 1
На основе 1 оценок покупателей
0%
0%
0%
0%
0%
Отзывы о проекте D2145
Отзыв о проекте D2145
Чтобы оставить отзыв, пожалуйста авторизуйтесь.
Подбор строительной компании
Не знаете кому доверить строительство дома? Мы можем помочь! Подберем для вас из сотен наших партнеров несколько компаний с лучшем соотношением цена/качество под конкретно ваш запрос.
Подобрать