Главная Проекты домов Проект дома из клееного бруса с мансардным окном

D2196 Проект дома из клееного бруса с мансардным окном

Сравнить проект В избранное
Проект дома из клееного бруса с мансардным окном / 1
Проект дома из клееного бруса с мансардным окном / 2
Проект дома из клееного бруса с мансардным окном / 3
Проект дома из клееного бруса с мансардным окном / 1
Проект дома из клееного бруса с мансардным окном / 2
Проект дома из клееного бруса с мансардным окном / 3
D2196
217 м²
Домокомплект
Артикул проекта: Рапсодия
Компания: ГК "Приозерский лесокомбинат"
Стоимость домокомплекта
2 817 000 ₽
Заказать подробную смету
+7 (921) XXX-XX-XX Показать телефон
Задать вопрос по проекту
Технические характеристики
Общие
Материал стен
Клееный брус
Общая площадь
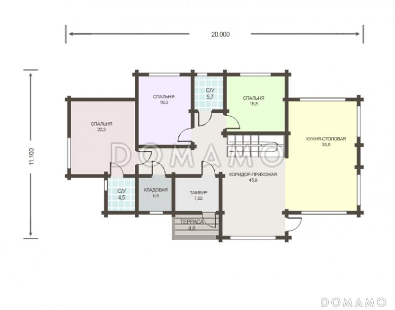
217 м²
Приведенная площадь
195.6 м²
Количество жилых комнат/спален
4
Этажи
1 этаж + мансарда
Гараж
Нет гаража
Подвал / цокольный этаж
Без подвала
Длина дома
20.0 м
Ширина дома
11.1 м
Облицовка внешних стен
Без облицовки
Толщина несущих наружных стен
166 мм
Межэтажные перекрытия
По деревянным балкам
Внутренние не несущие перегородки
Каркасно-обшивные
Терраса
Без террасы
Дополнительные
Окна
Окна до пола
,
Панорамные окна
Мансардные окна
Есть
Сауна/баня внутри
Нет
Площадь гостиной
30 м²
Площадь кухни
6.8 м²
Количество санузлов
3
Окно в ванной комнате
Есть
Хозяйский санузел
Есть
Кладовая
1
Планы помещений
Описание проекта
Компания Domamo предлагает проект дома из клееного бруса с мансардным окном D2196. Общая площадь - 217 м2, размер - 20.0х11.1 м. Фундамент - , кровля - , внешняя отделка - без облицовки. Для заказа проекта или внесения изменений свяжитесь с нами с помощью форм обратной связи на сайте или по телефону +7 (343) 357-92-70.
Категории проекта: с мансардой деревянные для постоянного проживания из клееного бруса от 200 до 300 кв.м одноэтажные с мансардой одноэтажные деревянные с двухскатной крышей загородные с панорамным остеклением в стиле эклектика Проекты деревянных домов с мансардой Проекты домов из клееного бруса с мансардой Проекты одноэтажных домов из клееного бруса Типовые проекты загородных одноэтажных домов без гаража одноэтажные без гаража одноэтажные с 4 спальнями полутораэтажные деревянные для круглогодичного проживания с 4 спальнями от 200 до 250 м сложной формы одноэтажные с мансардными окнами с мансардой с двухскатной крышей с мансардой с панорамными окнами с мансардой с окнами до пола с мансардой с мансардными окнами с мансардой сложной формы с мансардой для постоянного проживания одноэтажные с мансардой из клееного бруса одноэтажные с мансардой для постоянного проживания одноэтажные с мансардой с панорамными окнами одноэтажные с мансардой в стиле эклектика деревянные в стиле эклектика деревянные с окнами в пол деревянные с панорамными окнами деревянные без гаража деревянные домокомплекты деревянные без подвала деревянные с 4 спальнями деревянные с большой гостиной деревянные от 200 до 300 м2 недорогие с панорамными окнами из клееного бруса домокомплект из клееного бруса для постоянного проживания из клееного бруса с окном в ванной комнате из клееного бруса сложной формы из клееного бруса с мансардными окнами из клееного бруса с окнами в пол из клееного бруса с панорамными окнами из клееного бруса в скандинавском стиле из клееного бруса в стиле эклектика из клееного бруса с двухскатной крышей из клееного бруса с каркасно-обшивными перегородками из клееного бруса без облицовки из клееного бруса с перекрытиями по деревянным балкам из клееного бруса с хозяйским санузлом из клееного бруса без терассы из клееного бруса без подвала из клееного бруса без гаража одноэтажные из клееного бруса с мансардой из клееного бруса от 200 до 300 м2 из клееного бруса с большой гостиной Показать все категории Скрыть категории

Похожие проекты
Состав проекта
Входит в стоимость
Цена, руб. Сроки, дней
Комплект архитектурно-строительных чертежей (АС) Входит в стоимость Готов к отправке
Разрабатывается отдельно
Цена, руб. Сроки, дней
Адаптация фундамента (изменение типа фундамента) по запросу 14 рабочих дней
Дизайн интерьера (стоимость от 2200руб. за квад.метр площади) по запросу 30 рабочих дней
Внесение изменений в проект по запросу 20 рабочих дней
Фэншуй дома 20 000 ₽ 14 рабочих дней в корзину
Фэншуй участка 15 000 ₽ 14 рабочих дней в корзину
Фэншуй полная консультация дом+участок с выездом на объект 100 000 ₽ 30 рабочих дней в корзину
Опции проекта вы можете заказать в корзине при оформлении заказа
Отзывы покупателей
Рейтинг покупателей
0 / 5 5 5 1
На основе 1 оценок покупателей
0%
0%
0%
0%
0%
Отзывы о проекте D2196
Отзыв о проекте D2196
Чтобы оставить отзыв, пожалуйста авторизуйтесь.
Подбор строительной компании
Не знаете кому доверить строительство дома? Мы можем помочь! Подберем для вас из сотен наших партнеров несколько компаний с лучшем соотношением цена/качество под конкретно ваш запрос.
Подобрать