Главная Проекты домов Проект дома с широким и удобным холлом на втором этаже

D2247 Проект дома с широким и удобным холлом на втором этаже

Сравнить проект В избранное
Проект дома с широким и удобным холлом на втором этаже / 1
Проект дома с широким и удобным холлом на втором этаже / 1
D2247
124 м²
Домокомплект
Артикул проекта: ПД-6
Компания: Element-House
Стоимость домокомплекта
615 000 ₽
Заказать подробную смету
+7 (909) XXX-XX-XX Показать телефон
Задать вопрос по проекту
Технические характеристики
Общие
Материал стен
Бревно
Общая площадь
124 м²
Приведенная площадь
101.39 м²
Количество жилых комнат/спален
2
Этажи
1 этаж + мансарда
Гараж
Нет гаража
Подвал / цокольный этаж
Без подвала
Длина дома
8.7 м
Ширина дома
8.4 м
Облицовка внешних стен
Без облицовки
Межэтажные перекрытия
По деревянным балкам
Внутренние не несущие перегородки
Каркасно-обшивные
Терраса
Терраса крытая
Дополнительные
Камин
Есть
Сауна/баня внутри
Нет
Площадь гостиной
21.3 м²
Площадь кухни
12.4 м²
Количество санузлов
2
Окно в ванной комнате
Есть
Котельная
Есть
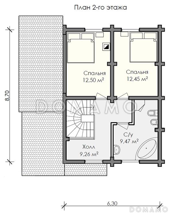
Планы помещений
Описание проекта
Компания Domamo предлагает проект дома с широким и удобным холлом на втором этаже D2247. Общая площадь - 124 м2, размер - 8.7х8.4 м. Фундамент - , кровля - , внешняя отделка - без облицовки. Для заказа проекта или внесения изменений свяжитесь с нами с помощью форм обратной связи на сайте или по телефону +7 (343) 357-92-70.
Категории проекта: с мансардой деревянные для постоянного проживания из бревна от 100 до 200 кв.м с террасой одноэтажные с мансардой одноэтажные до 150 кв. м. одноэтажные с котельной с котельной одноэтажные деревянные оцилиндрованное бревно до 150 кв.м до 200 кв.м с двухскатной крышей 6х10 8х9 загородные с камином прямоугольные в русском стиле одноэтажные из бревна из бревна с мансардой Проекты деревянных домов с мансардой Проекты деревянных домов с террасой Проекты одноэтажных домов с террасой Типовые проекты загородных одноэтажных домов без гаража одноэтажные без гаража с террасой и камином с мансардой до 150 кв м с мансардой и террасой полутораэтажные деревянные для круглогодичного проживания одноэтажные с 2 спальнями из бревна для постоянного проживания с мансардой 9 на 8 рубленные одноэтажные до 200 кв м до 140 кв м до 130 кв м с мансардой с котельной с мансардой с камином с мансардой с двухскатной крышей с мансардой прямоугольные с мансардой для постоянного проживания с мансардой до 200 кв.м с мансардой от 100 до 150 кв.м с террасой с камином прямоугольные с котельной до 150 кв.м. без гаража одноэтажные с мансардой из бревна одноэтажные с мансардой для постоянного проживания одноэтажные с мансардой в русском стиле до 150 кв.м для постоянного проживания до 150 кв.м без гаража до 150 кв.м с двухскатной крышей до 150 кв.м русские до 150 кв.м домокомплекты до 150 кв.м прямоугольные до 150 кв.м с котельной до 150 кв.м без бани до 150 кв.м с террасой до 150 кв.м без подвала до 150 кв.м с 2 спальнями до 150 кв.м с камином деревянные в русском стиле деревянные прямоугольные деревянные с камином деревянные без гаража деревянные домокомплекты деревянные без подвала деревянные с 2 спальнями деревянные 8х9 деревянные до 150 кв.м деревянные от 100 до 200 м2 в русском стиле без гаража в русском стиле с террасой в русском стиле прямоугольные в русском стиле для постоянного проживания в русском стиле для с камином в русском стиле без бани в русском стиле с котельной в русском стиле с двускатной крышей в русском стиле от 100 до 200 кв м из клееного бруса без гаража Показать все категории Скрыть категории

Похожие проекты
Состав проекта
Входит в стоимость
Цена, руб. Сроки, дней
Комплект архитектурно-строительных чертежей (АС) Входит в стоимость Готов к отправке
Разрабатывается отдельно
Цена, руб. Сроки, дней
Адаптация фундамента (изменение типа фундамента) по запросу 14 рабочих дней
Дизайн интерьера (стоимость от 2200руб. за квад.метр площади) по запросу 30 рабочих дней
Внесение изменений в проект по запросу 20 рабочих дней
Фэншуй дома 20 000 ₽ 14 рабочих дней в корзину
Фэншуй участка 15 000 ₽ 14 рабочих дней в корзину
Фэншуй полная консультация дом+участок с выездом на объект 100 000 ₽ 30 рабочих дней в корзину
Опции проекта вы можете заказать в корзине при оформлении заказа
Отзывы покупателей
Рейтинг покупателей
0 / 5 5 5 1
На основе 1 оценок покупателей
0%
0%
0%
0%
0%
Отзывы о проекте D2247
Отзыв о проекте D2247
Чтобы оставить отзыв, пожалуйста авторизуйтесь.
Подбор строительной компании
Не знаете кому доверить строительство дома? Мы можем помочь! Подберем для вас из сотен наших партнеров несколько компаний с лучшем соотношением цена/качество под конкретно ваш запрос.
Подобрать