Главная Проекты домов Проект одноэтажного дома с просторной кухней-гостиной и террасой

D2285 Проект одноэтажного дома с просторной кухней-гостиной и террасой

Сравнить проект В избранное
Проект одноэтажного дома с просторной кухней-гостиной и террасой / 1
Проект одноэтажного дома с просторной кухней-гостиной и террасой / 2
Проект одноэтажного дома с просторной кухней-гостиной и террасой / 3
Проект одноэтажного дома с просторной кухней-гостиной и террасой / 1
Проект одноэтажного дома с просторной кухней-гостиной и террасой / 2
Проект одноэтажного дома с просторной кухней-гостиной и террасой / 3
D2285
154 м²
Технические характеристики
Общие
Материал стен
Газобетон
Общая площадь
154 м²
Жилая площадь
97.1 м²
Площадь застройки
264.4 м²
Приведенная площадь
138.25 м²
Количество жилых комнат/спален
3
Этажи
1 этаж
Гараж
Нет гаража
Количество машин
нет
Подвал / цокольный этаж
Без подвала
Длина дома
17.3 м
Ширина дома
11.2 м
Высота в коньке
6.1 м
Кровля
Металлочерепица
Облицовка внешних стен
Облицовочный кирпич
Толщина несущих наружных стен
375 мм
Межэтажные перекрытия
По деревянным балкам
Внутренние не несущие перегородки
Газобетонные
Фундамент
Свайный
Терраса
Терраса крытая
Дополнительные
Камин
Есть
Сауна/баня внутри
Нет
Площадь гостиной
47.6 м²
Площадь кухни
6 м²
Количество санузлов
1
Котельная
Есть
Кабинет
Есть
Постирочная
Есть
Хозяйская гардеробная
Есть
Кладовая
3
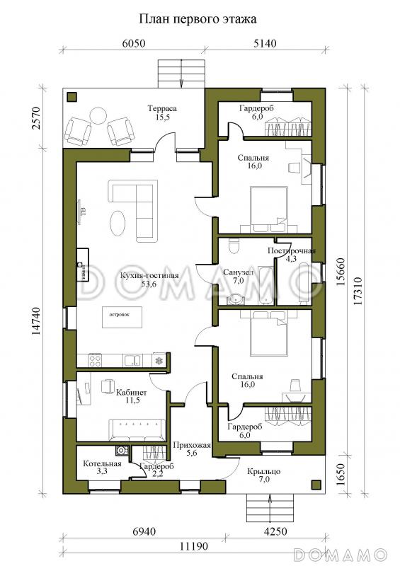
Планы помещений
Фасады
Описание проекта
Компания Domamo предлагает проект одноэтажного дома с просторной кухней-гостиной и террасой D2285. Общая площадь - 154 м2, размер - 17.3х11.2 м. Фундамент - свайный, кровля - металлочерепица, внешняя отделка - облицовочный кирпич. Для заказа проекта или внесения изменений свяжитесь с нами с помощью форм обратной связи на сайте или по телефону +7 (343) 357-92-70.
Категории проекта: для постоянного проживания пенобетон современные от 100 до 200 кв.м в европейском стиле с террасой из газобетона одноэтажные из пеноблоков готовые одноэтажные одноэтажные с котельной с котельной одноэтажные из газобетона из газосиликатных блоков до 200 кв.м загородные из керамзитобетонных блоков с камином с гардеробной прямоугольные из газобетона с террасой из блоков одноэтажные из блоков из пеноблоков с террасой загородные из газобетона Проекты одноэтажных домов с террасой Типовые проекты загородных одноэтажных домов без гаража одноэтажные без гаража с террасой и камином облицованные кирпичом с кабинетом одноэтажные с тремя спальнями Проекты домов с тремя спальнями одноэтажных из керамзитобетонных блоков одноэтажные до 200 кв м недорогие из пеноблоков загородные одноэтажные современные одноэтажные прямоугольные одноэтажные с камином одноэтажные с кабинетом одноэтажные с большой гостиной одноэтажные до 180 м2 одноэтажные из газобетона с террасой одноэтажные из газобетона с мансардой одноэтажные из газобетона с 3 спальнями современные прямоугольные с большой гостиной с камином готовые проекты для постоянного проживания с котельной с прачечной с гардеробной из газобетона до 200 кв.м из газобетона от 100 до 200 кв.м из газобетона современные из газобетона с котельной из газобетона прямоугольные из газобетона готовые из газобетона с камином из газобетона с тремя спальнями из газобетона с кабинетом из газобетона для постоянного проживания современные без гаража современные с террасой современные от 100 до 200 кв. м из пеноблоков в современном стиле из пеноблоков с вальмовой крышей из пеноблоков прямоугольные из пеноблоков для постоянного проживания из пеноблоков недорогие из пеноблоков готовые из пеноблоков с камином из пеноблоков от 100 до 200 м2 из пеноблоков с 3 спальнями из пеноблоков с большой гостиной недорогие без гаража недорогие с террасой недорогие для постоянного проживания недорогие с вальмовой крышей недорогие с большой гостиной недорогие без бани недорогие с кабинетом недорогие с котельной недорогие с камином недорогие прямоугольные недорогие от 100 до 200 м2 из клееного бруса без гаража Показать все категории Скрыть категории

Похожие проекты
Состав проекта
Готово к продаже
Цена, руб. Сроки, дней
Комплект архитектурно-строительных чертежей (АС) 27 000 ₽ 10 рабочих дней в корзину
Паспорт рабочего проекта 4 000 ₽ 3 рабочих дня в корзину
Дополнительная копия проекта формата А3 4 000 ₽ Готов к отправке в корзину
Электронная копия проекта (скан распечатанной версии) 4 000 ₽ 3 рабочих дня в корзину
Разрабатывается отдельно
Цена, руб. Сроки, дней
Адаптация фундамента (изменение типа фундамента) по запросу 14 рабочих дней
Дизайн интерьера (стоимость от 2200руб. за квад.метр площади) по запросу 30 рабочих дней
Внесение изменений в проект по запросу 20 рабочих дней
Разработка Генплана участка, в масштабе 1:250 7 500 ₽ 5 рабочих дней в корзину
Фэншуй дома 20 000 ₽ 14 рабочих дней в корзину
Фэншуй участка 15 000 ₽ 14 рабочих дней в корзину
Фэншуй полная консультация дом+участок с выездом на объект 100 000 ₽ 30 рабочих дней в корзину
Опции проекта вы можете заказать в корзине при оформлении заказа
Предложения строителей Свердловская область
Подбор строительной компании
Не знаете кому доверить строительство дома? Мы можем помочь! Подберем для вас из сотен наших партнеров несколько компаний с лучшем соотношением цена/качество под конкретно ваш запрос.
Подобрать
Посмотреть еще 3 компании Свернуть
Отзывы покупателей
Рейтинг покупателей
0 / 5 5 5 1
На основе 1 оценок покупателей
0%
0%
0%
0%
0%
Отзывы о проекте D2285
Отзыв о проекте D2285
Чтобы оставить отзыв, пожалуйста авторизуйтесь.
Подбор строительной компании
Не знаете кому доверить строительство дома? Мы можем помочь! Подберем для вас из сотен наших партнеров несколько компаний с лучшем соотношением цена/качество под конкретно ваш запрос.
Подобрать