Главная Проекты домов Проект дома из пеноблоков с цокольным этажом

D2515 Проект дома из пеноблоков с цокольным этажом

Сравнить проект В избранное
Проект дома из пеноблоков с цокольным этажом / 1
Проект дома из пеноблоков с цокольным этажом / 1
D2515
371 м²
Технические характеристики
Общие
Материал стен
Газобетон
Общая площадь
371 м²
Жилая площадь
172 м²
Приведенная площадь
413.92 м²
Количество жилых комнат/спален
7
Этажи
1 этаж + мансарда
Гараж
Пристроенный гараж
Количество машин
1
Подвал / цокольный этаж
С окнами
Длина дома
16.7 м
Ширина дома
13.2 м
Кровля
Металлочерепица
Облицовка внешних стен
Мокрая штукатурка
,
Облицовочный кирпич
Толщина несущих наружных стен
375 мм
Межэтажные перекрытия
Сборные
Внутренние не несущие перегородки
Газобетонные
,
Каркасно-обшивные
Фундамент
Ленточный заглубленный из ФБС
Терраса
Терраса крытая
Дополнительные
Окна
Круглые окна
Камин
Есть
Сауна/баня внутри
Есть
Площадь гостиной
53.1 м²
Площадь кухни
23.8 м²
Количество санузлов
4
Котельная
Есть
Кабинет
Есть
Постирочная
Есть
Спортзал / детский / игровой зал
Есть
Бильярдная
Есть
Кладовая
1
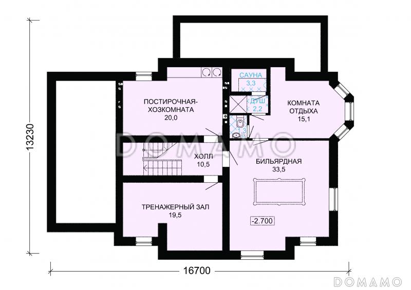
Планы помещений
Фасады
Описание проекта
Компания Domamo предлагает проект дома из пеноблоков с цокольным этажом D2515. Общая площадь - 371 м2, размер - 16.7х13.2 м. Фундамент - ленточный заглубленный из фбс, кровля - металлочерепица, внешняя отделка - облицовочный кирпич мокрая штукатурка. Для заказа проекта или внесения изменений свяжитесь с нами с помощью форм обратной связи на сайте или по телефону +7 (343) 357-92-70.
Категории проекта: с мансардой с гаражом с мансардой и гаражом для постоянного проживания пенобетон от 300 до 400 кв.м с эркером с террасой из пеноблоков с мансардой из газобетона с мансардой и гаражом из газобетона с мансардой и эркером из газобетона с цокольным этажом из газобетона с цокольным этажом и гаражом из газобетона с эркером и цоколем из газобетона с эркером из газобетона готовые из газобетона с мансардой из газобетона с гаражом с цокольным этажом одноэтажные с гаражом одноэтажные с мансардой одноэтажные с цокольным этажом одноэтажные с котельной с котельной одноэтажные из газобетона из газосиликатных блоков из пеноблоков с гаражом с баней одноэтажные с гаражом и мансардой с цокольным этажом и мансардой с двухскатной крышей загородные из керамзитобетонных блоков с баней и гаражом с бильярдной с камином с сауной прямоугольные в стиле эклектика из газобетона с баней из газобетона с террасой с эркером и мансардой из блоков одноэтажные из блоков из блоков с гаражом из блоков с мансардой из блоков с эркером из пеноблоков с баней Проекты домов из пеноблоков с эркером из пеноблоков с цокольным этажом из пеноблоков с террасой загородные из газобетона Проекты одноэтажных домов с эркером Проекты одноэтажных домов с террасой Типовые проекты загородных одноэтажных домов Проекты одноэтажных домов с баней на две семьи с террасой и камином облицованные кирпичом с кабинетом с гаражом под одной крышей одноэтажных из керамзитобетонных блоков одноэтажные с гаражом и террасой с мансардой и террасой полутораэтажные с гаражом и террасой из пеноблоков загородные с эркером и гаражом с мансардой с баней с мансардой с котельной с мансардой с камином с мансардой с двухскатной крышей с мансардой прямоугольные с мансардой готовые с мансардой для постоянного проживания с мансардой элитные одноэтажные из газобетона с гаражом одноэтажные из газобетона с террасой одноэтажные из газобетона с мансардой с подвалом из газобетона от 300 до 400 кв.м из газобетона с двухскатной крышей из газобетона с котельной из газобетона прямоугольные из газобетона готовые из газобетона с камином из газобетона с большой кухней из газобетона с кабинетом из газобетона с изолированной кухней из газобетона большие из газобетона для постоянного проживания двухэтажные из газобетона с гаражом двухэтажные из газобетона с террасой двухэтажные из газобетона с камином двухэтажные из газобетона с прачечной двухэтажные из газобетона с кабинетом двухэтажные из газобетона с котельной двухэтажные из газобетона с двухскатной крышей двухэтажные из газобетона большие двухэтажные из газобетона с подвалом двухэтажные из газобетона с изолированной кухней двухэтажные из газобетона с баней двухэтажные из газобетона с эркером двухэтажные из газобетона с большой гостиной из газобетона с мансардой в стиле эклектика из газобетона с мансардой с террасой из газобетона с мансардой с камином из газобетона с мансардой для постоянного проживания из газобетона с мансардой готовые из газобетона с мансардой с двухскатной крышей из газобетона с мансардой большие из газобетона с мансардой с большой кухней из газобетона с мансардой с большой гостиной из газобетона с мансардой с баней из газобетона с мансардой с изолированной кухней из газобетона с мансардой прямоугольные из газобетона с мансардой с прачечной одноэтажные с мансардой для постоянного проживания одноэтажные с мансардой с большой кухней одноэтажные с мансардой с изолированной кухней одноэтажные с мансардой в стиле эклектика из пеноблоков в стиле эклектика из пеноблоков с двухскатной крышей из пеноблоков прямоугольные из пеноблоков для постоянного проживания из пеноблоков готовые из пеноблоков с камином из пеноблоков от 300 до 400 м2 из пеноблоков большие из пеноблоков с большой гостиной из пеноблоков с большой кухней из пеноблоков с изолированной кухней из клееного бруса без гаража Показать все категории Скрыть категории

Похожие проекты
Состав проекта
Входит в стоимость
Цена, руб. Сроки, дней
Комплект архитектурно-строительных чертежей (АС) Входит в стоимость 3 рабочих дня
Готово к продаже
Цена, руб. Сроки, дней
Зеркальная версия проекта Входит в стоимость 3 рабочих дня
Паспорт рабочего проекта 5 000 ₽ 3 рабочих дня в корзину
Инженерные разделы: ВК + ОВ + ЭО 25 000 ₽ 3 рабочих дня в корзину
Дополнительная копия проекта формата А3 3 000 ₽ 3 рабочих дня в корзину
Две дополнительные копии проекта формата А3 + 1 паспорт рабочего проекта 10 100 ₽ 3 рабочих дня в корзину
Электронная копия проекта (скан распечатанной версии) 4 000 ₽ 3 рабочих дня в корзину
Разрабатывается отдельно
Цена, руб. Сроки, дней
Адаптация фундамента (изменение типа фундамента) по запросу 14 рабочих дней
Дизайн интерьера (стоимость от 2200руб. за квад.метр площади) по запросу 30 рабочих дней
Внесение изменений в проект по запросу 20 рабочих дней
Фэншуй дома 20 000 ₽ 14 рабочих дней в корзину
Фэншуй участка 15 000 ₽ 14 рабочих дней в корзину
Фэншуй полная консультация дом+участок с выездом на объект 100 000 ₽ 30 рабочих дней в корзину
Опции проекта вы можете заказать в корзине при оформлении заказа
Предложения строителей Свердловская область
Подбор строительной компании
Не знаете кому доверить строительство дома? Мы можем помочь! Подберем для вас из сотен наших партнеров несколько компаний с лучшем соотношением цена/качество под конкретно ваш запрос.
Подобрать
Посмотреть еще 3 компании Свернуть
Отзывы покупателей
Рейтинг покупателей
0 / 5 5 5 1
На основе 1 оценок покупателей
0%
0%
0%
0%
0%
Отзывы о проекте D2515
Отзыв о проекте D2515
Чтобы оставить отзыв, пожалуйста авторизуйтесь.
Подбор строительной компании
Не знаете кому доверить строительство дома? Мы можем помочь! Подберем для вас из сотен наших партнеров несколько компаний с лучшем соотношением цена/качество под конкретно ваш запрос.
Подобрать