Главная Проекты домов Проект дома из кирпича с зимним садом на втором этаже

D273 Проект дома из кирпича с зимним садом на втором этаже

Сравнить проект В избранное
Проект дома из кирпича с зимним садом на втором этаже / 1
Проект дома из кирпича с зимним садом на втором этаже / 2
Проект дома из кирпича с зимним садом на втором этаже / 1
Проект дома из кирпича с зимним садом на втором этаже / 2
D273
460 м²
Подготовка проекта:
Готов к отправке
Стоимость проекта
Купить проект
Задайте вопросы по проекту нашему архитектору
8 (800) 200-28-83
Время работы: пн-вс: с 9:00 до 20:00
Задать вопрос по проекту

Технические характеристики
Общие
Материал стен
Кирпич
Общая площадь
460 м²
Жилая площадь
205.4 м²
Площадь застройки
212.2 м²
Приведенная площадь
433.99 м²
Количество жилых комнат/спален
8
Этажи
2 этажа + мансарда
Гараж
Пристроенный гараж
Количество машин
1
Подвал / цокольный этаж
С окнами
Длина дома
16.4 м
Ширина дома
15.4 м
Кровля
Гибкая черепица
Облицовка внешних стен
Мокрая штукатурка
,
Облицовочный кирпич
Толщина несущих наружных стен
510 мм
Межэтажные перекрытия
Сборные
Внутренние не несущие перегородки
Каркасно-обшивные
,
Кирпичные
Фундамент
Ленточный заглубленный из ФБС
Терраса
Терраса крытая
Дополнительные
Окна
Панорамные окна
Сауна/баня внутри
Есть
Бассейн
Есть
Площадь гостиной
34.1 м²
Площадь кухни
11.5 м²
Количество санузлов
7
Окно в ванной комнате
Есть
Котельная
Есть
Кабинет
Есть
Хозяйский санузел
Есть
Хозяйская гардеробная
Есть
Кладовая
4
Зимний сад
Есть
Балкон / лоджия
Балкон
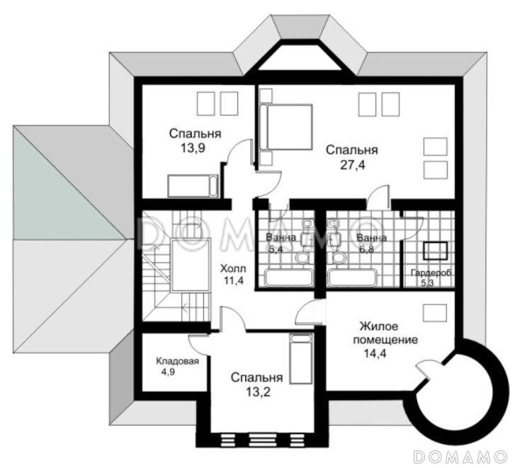
Планы помещений
Описание проекта

Оригинальный особняк с круглой башней занимает 4 этажа и предназначен для большой семьи из нескольких поколений. Дом в замковом стиле украшает башня с конической крышей, колонны крыльца и пилястры на фасаде.

Планировка предполагает полноценное функциональное использование всех четырех уровней. В подвале располагается зона для релакса: бассейн, сауна, комната отдыха. Отдельный вход ведет в котельную. Просторный вестибюль первого этажа ведет в гостиную и в столовую с эркером. На втором этаже архитектор запланировал три спальни, кабинет и зимний сад. На втором этаже — еще 4 комнаты.

Преимущества и особенности:

  • башня в этом проекте вписана в основной объем прилегающих к ней комнат на всех этажах, образуя в них уютные полукруглые пространства,

  • застекленный зимний сад дополнит стандартную комнату отдыха панорамным видом,

  • в спальне на мансардном этаже предусмотрены две ванные и гардеробная.

Категории проекта: с мансардой с гаражом с мансардой и гаражом для постоянного проживания кирпич от 400 до 500 кв.м кирпичные дома с мансардой дома из кирпича с гаражом с эркером кирпичные дома с эркером с террасой из кирпича с террасой готовые с цокольным этажом загородные из кирпича двухэтажные из кирпича двухэтажные кирпичные с гаражом двухэтажные из кирпича с мансардой двухэтажные двухэтажные с гаражом двухэтажные с мансардой кирпичные с цокольным этажом кирпичные с котельной с котельной с баней с цокольным этажом и мансардой с бассейном загородные с баней и гаражом с баней и бассейном с сауной с гардеробной квадратные с балконом с зимним садом с панорамным остеклением в стиле эклектика кирпичные с баней кирпичные с бассейном двухэтажные с цокольным этажом с эркером и мансардой двухэтажные с эркером Проекты двухэтажных домов с террасой Проекты двухэтажных домов с верандой на две семьи облицованные кирпичом с кабинетом с гаражом под одной крышей с мансардой и террасой с гаражом и террасой двухэтажные с террасой и гаражом с панорамными окнами и террасой двухэтажные с сауной с балконом и террасой с бассейном и гаражом с эркером и гаражом большие двухэтажные с панорамными окнами двухэтажные с балконом двухэтажные с балконом и террасой двухэтажные с бассейном с мансардой с баней с мансардой с котельной с мансардой с зимним садом с мансардой с бассейном с мансардой с панорамными окнами с мансардой с балконом с мансардой квадратные с мансардой готовые с мансардой для постоянного проживания с мансардой элитные с мансардой большие большие готовые большие в стиле эклектика большие с балконом большие с бассейном большие с окном в ванной комнате большие с панорамными окнами большие с гаражом большие с изолированной кухней большие с террасой большие с баней большие с котельной большие с кабинетом большие с мастер-спальней большие с зимним садом недорогие с панорамными окнами из клееного бруса без гаража Показать все категории Скрыть категории

Похожие проекты
Состав проекта
Входит в стоимость
Цена, руб. Сроки, дней
Комплект архитектурно-строительных чертежей (АС) Входит в стоимость 7 рабочих дней
Готово к продаже
Цена, руб. Сроки, дней
Паспорт рабочего проекта 2 500 ₽ Готов к отправке в корзину
Разрабатывается отдельно
Цена, руб. Сроки, дней
Адаптация фундамента (изменение типа фундамента) по запросу 14 рабочих дней
Дизайн интерьера (стоимость от 2200руб. за квад.метр площади) по запросу 30 рабочих дней
Внесение изменений в проект по запросу 20 рабочих дней
Фэншуй дома 20 000 ₽ 14 рабочих дней в корзину
Фэншуй участка 15 000 ₽ 14 рабочих дней в корзину
Фэншуй полная консультация дом+участок с выездом на объект 100 000 ₽ 30 рабочих дней в корзину
Опции проекта вы можете заказать в корзине при оформлении заказа
Предложения строителей Свердловская область
Подбор строительной компании
Не знаете кому доверить строительство дома? Мы можем помочь! Подберем для вас из сотен наших партнеров несколько компаний с лучшем соотношением цена/качество под конкретно ваш запрос.
Подобрать
Посмотреть еще 2 компании Свернуть
Отзывы покупателей
Рейтинг покупателей
0 / 5 5 5 1
На основе 1 оценок покупателей
0%
0%
0%
0%
0%
Отзывы о проекте D273
Отзыв о проекте D273
Чтобы оставить отзыв, пожалуйста авторизуйтесь.
Подбор строительной компании
Не знаете кому доверить строительство дома? Мы можем помочь! Подберем для вас из сотен наших партнеров несколько компаний с лучшем соотношением цена/качество под конкретно ваш запрос.
Подобрать