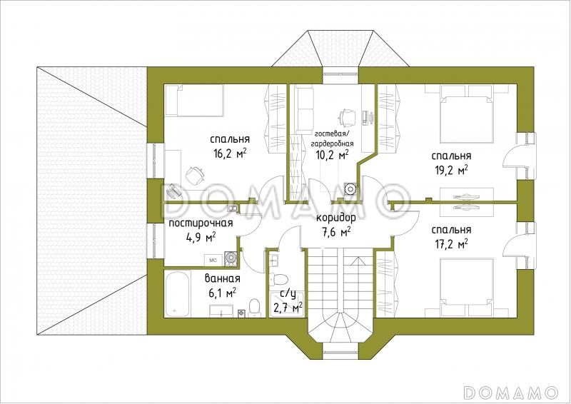
Просторный двухэтажный кирпичный коттедж, рассчитанный на круглогодичное комфортное проживание большой семьи. Имеет пять полноценных жилых комнат, совмещённое пространство гостиной и столовой, которые можно объединить с кухней, зонировать стеллажом или барной стойкой, или разделить на отдельные помещения перегородкой. Предусмотрена возможность установки камина. Большие окна гостиной-столовой с двухсторонним светом обеспечивают полный обзор участка. Также на первом этаже расположены кабинет, прихожая, санузел и кладовая. Для помещения котельной предусмотрен отдельный вход с террасы и из тамбура. На втором этаж расположены три спальни, гостевая/гардеробная, санузел, ванная комната и постирочная. Последние можно объединить в одно помещение.
| Минимальная | 7 132 800 ₽ |
| Стандарт | 10 699 200 ₽ |
| Под чистовую отделку | 11 947 440 ₽ |
| Показать подробные комплектации | |