Главная Проекты домов Проект классического коттеджа из кирпича с подвалом и террасой

D283 Проект классического коттеджа из кирпича с подвалом и террасой

Сравнить проект В избранное
Проект классического коттеджа из кирпича с подвалом и террасой / 1
Проект классического коттеджа из кирпича с подвалом и террасой / 2
Проект классического коттеджа из кирпича с подвалом и террасой / 3
Проект классического коттеджа из кирпича с подвалом и террасой / 4
Проект классического коттеджа из кирпича с подвалом и террасой / 1
Проект классического коттеджа из кирпича с подвалом и террасой / 2
Проект классического коттеджа из кирпича с подвалом и террасой / 3
Проект классического коттеджа из кирпича с подвалом и террасой / 4
D283
286 м²
Подготовка проекта:
Готов к отправке
Стоимость проекта
Купить проект
Задайте вопросы по проекту нашему архитектору
8 (800) 200-28-83
Время работы: пн-вс: с 9:00 до 20:00
Задать вопрос по проекту

Технические характеристики
Общие
Материал стен
Кирпич
Общая площадь
286 м²
Жилая площадь
98.8 м²
Площадь застройки
134.7 м²
Приведенная площадь
280.32 м²
Количество жилых комнат/спален
5
Этажи
2 этажа + мансарда
Гараж
Нет гаража
Подвал / цокольный этаж
С окнами
Длина дома
10.0 м
Ширина дома
10.0 м
Кровля
Натуральная черепица
Облицовка внешних стен
Облицовочный кирпич
Толщина несущих наружных стен
380 мм
Межэтажные перекрытия
Сборные
Внутренние не несущие перегородки
Кирпичные
Фундамент
Монолитная ж/бетонная плита
Терраса
Терраса крытая
Дополнительные
Мансардные окна
Есть
Камин
Есть
Сауна/баня внутри
Нет
Площадь гостиной
30.0 м²
Площадь кухни
42.9 м²
Количество санузлов
3
Окно в ванной комнате
Есть
Котельная
Есть
Кабинет
Есть
Хозяйская гардеробная
Есть
Кладовая
1
Балкон / лоджия
Балкон
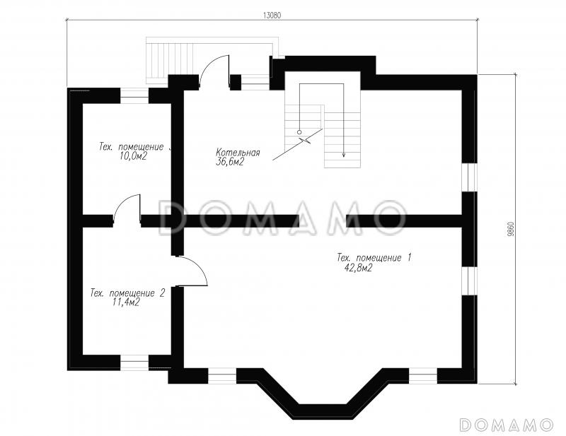
Планы помещений
Описание проекта

Классический дом с двумя полноценными этажами, большим подвалом и уютной мансардой, выполненный в популярном размере 10×10 м. Подвал вмещает в себя все функциональные помещения, освобождая пространство первого этажа, большую часть которого занимает просторная с двухсторонним естественным светом кухня-гостиная с эркером. Также имеется кабинет (опционально гостевая спальня) и вместительный санузел. Второй этаж вмещает три спальни, одна из которых имеет свой гардероб. Две спальни имеют выход на лоджию. Проектом предусмотрено два санузла на втором этаже, один из которых можно оборудовать как полноценную ванную комнату. Крытая терраса и просторная мансарда (35 кв. м.) прекрасно подойдут для создания полноценных зон отдыха.

Категории проекта: с мансардой для постоянного проживания кирпич в классическом стиле от 200 до 300 кв.м 10х10 кирпичные дома хай-тек классические кирпичные дома кирпичные дома с мансардой с эркером кирпичные дома с эркером с террасой из кирпича с террасой дома в немецком стиле готовые с цокольным этажом загородные из кирпича двухэтажные из кирпича двухэтажные из кирпича с мансардой двухэтажные двухэтажные с мансардой кирпичные с цокольным этажом кирпичные с котельной с котельной архитектурные с цокольным этажом и мансардой 10 на 10 с мансардой 6х10 9х10 9х12 загородные с четырехскатной крышей с мансардной крышей с камином с гардеробной эконом класса квадратные с балконом 10х12 двухэтажные с цокольным этажом с эркером и мансардой двухэтажные с эркером кирпичные 10х10 Проекты двухэтажных домов с террасой Проекты двухэтажных домов с верандой без гаража с террасой и камином облицованные кирпичом с кабинетом с мансардой и террасой двухэтажные 10 на 12 9 на 12 с мансардой 10x12 с мансардой недорогие с балконом и террасой с 5 спальнями двухэтажные 10 x 10 двухэтажные с камином двухэтажные с балконом двухэтажные с балконом и террасой двухэтажные в классическом стиле двухэтажные эконом класса двухэтажные без гаража с мансардой с котельной с мансардой с камином с мансардой с четырехскатной крышей с мансардой в классическом стиле с мансардой с мансардными окнами с мансардой с балконом с мансардой квадратные с мансардой готовые с мансардой для постоянного проживания классические для постоянного проживания классические без гаража классические с террасой классические готовые классические недорогие классические с котельной классические с большой кухней классические с подвалом классические с балконом классические квадратные классические с камином классические с четырехскатной крышей классические с мансардной крышей классические с кабинетом недорогие с мансардой недорогие кирпичные недорогие без гаража недорогие с террасой недорогие для постоянного проживания недорогие с четырехскатной крышей недорогие с мансардной крышей недорогие без бани недорогие с кабинетом недорогие с котельной недорогие с мансардными окнами недорогие с балконом недорогие с камином недорогие квадратные недорогие 10х10 недорогие от 200 до 300 м2 из клееного бруса без гаража Показать все категории Скрыть категории

Похожие проекты
Состав проекта
Входит в стоимость
Цена, руб. Сроки, дней
Комплект архитектурно-строительных чертежей (АС) Входит в стоимость Готов к отправке
Готово к продаже
Цена, руб. Сроки, дней
Паспорт рабочего проекта 5 000 ₽ 3 рабочих дня в корзину
Дополнительная копия проекта формата А3 4 000 ₽ Готов к отправке в корзину
Электронная копия проекта (скан распечатанной версии) 4 000 ₽ 3 рабочих дня в корзину
Разрабатывается отдельно
Цена, руб. Сроки, дней
Адаптация фундамента (изменение типа фундамента) по запросу 14 рабочих дней
Дизайн интерьера (стоимость от 2200руб. за квад.метр площади) по запросу 30 рабочих дней
Внесение изменений в проект по запросу 20 рабочих дней
Инженерные разделы: ВК + ОВ + ЭО 40 000 ₽ 20 рабочих дней в корзину
Зеркалирование проекта (для которого нет зеркальной версии) 8 000 ₽ 5 рабочих дней в корзину
Разработка Генплана участка, в масштабе 1:250 7 500 ₽ 5 рабочих дней в корзину
Фэншуй дома 20 000 ₽ 14 рабочих дней в корзину
Фэншуй участка 15 000 ₽ 14 рабочих дней в корзину
Фэншуй полная консультация дом+участок с выездом на объект 100 000 ₽ 30 рабочих дней в корзину
Опции проекта вы можете заказать в корзине при оформлении заказа
Предложения строителей Свердловская область
Подбор строительной компании
Не знаете кому доверить строительство дома? Мы можем помочь! Подберем для вас из сотен наших партнеров несколько компаний с лучшем соотношением цена/качество под конкретно ваш запрос.
Подобрать
Посмотреть еще 2 компании Свернуть
Отзывы покупателей
Рейтинг покупателей
0 / 5 5 5 1
На основе 1 оценок покупателей
0%
0%
0%
0%
0%
Отзывы о проекте D283
Отзыв о проекте D283
Чтобы оставить отзыв, пожалуйста авторизуйтесь.
Подбор строительной компании
Не знаете кому доверить строительство дома? Мы можем помочь! Подберем для вас из сотен наших партнеров несколько компаний с лучшем соотношением цена/качество под конкретно ваш запрос.
Подобрать