Главная Проекты домов Проект квадратного коттеджа с башенкой

D290 Проект квадратного коттеджа с башенкой

Сравнить проект В избранное
Проект квадратного коттеджа с башенкой / 1
Проект квадратного коттеджа с башенкой / 2
Проект квадратного коттеджа с башенкой / 3
Проект квадратного коттеджа с башенкой / 4
Проект квадратного коттеджа с башенкой / 5
Проект квадратного коттеджа с башенкой / 1
Проект квадратного коттеджа с башенкой / 2
Проект квадратного коттеджа с башенкой / 3
Проект квадратного коттеджа с башенкой / 4
Проект квадратного коттеджа с башенкой / 5
D290
290 м²
Технические характеристики
Общие
Материал стен
Газобетон
,
Каркас
Общая площадь
290 м²
Жилая площадь
135.0 м²
Площадь застройки
147.0 м²
Приведенная площадь
277.22 м²
Количество жилых комнат/спален
5
Этажи
2 этажа + мансарда
Гараж
Встроенный гараж
Количество машин
2
Подвал / цокольный этаж
Без подвала
Длина дома
11.3 м
Ширина дома
11.3 м
Высота в коньке
13.7 м
Кровля
Металлочерепица
Облицовка внешних стен
Облицовочный кирпич
Толщина несущих наружных стен
400 мм
Межэтажные перекрытия
Монолитные
Внутренние не несущие перегородки
Каркасно-обшивные
Фундамент
Монолитная ж/бетонная плита
Терраса
Терраса крытая
Дополнительные
Окна
Панорамные окна
,
Окна с французским балконом
Камин
Есть
Сауна/баня внутри
Есть
Площадь гостиной
38 м²
Площадь кухни
17.8 м²
Количество санузлов
1
Окно в ванной комнате
Есть
Котельная
Есть
Кабинет
Есть
Постирочная
Есть
Планы помещений
Описание проекта

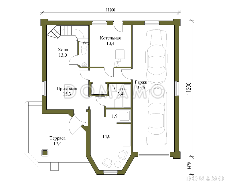
Большой каркасный дом с основанием (первым этажом) из газобетона с двумя полными этажами и жилой мансардой, где расположено три спальни, кабинет и ванная комната. Первый этаж полностью отдан под функциональные помещения — банный комплекс с сауной, гараж, котельная и прихожая. Длина гаража позволяет разместить два автомобиля. Отличным дополнением является большая терраса — место для летнего семейного отдыха. Второй этаж практически полностью отдан под общесемейные помещения — зонированую кухню и гостиную. Здесь также расположена просторная детская комната.

Категории проекта: с мансардой с гаражом с мансардой и гаражом для постоянного проживания пенобетон каркасные от 200 до 300 кв.м с террасой из бруса в стиле замка из пеноблоков с мансардой из газобетона с мансардой и гаражом каркасные дома с мансардой из газобетона готовые из газобетона с мансардой из газобетона с гаражом в стиле средневекового замка двухэтажные двухэтажные с гаражом двухэтажные с мансардой с котельной двухэтажные из газобетона из газосиликатных блоков двухэтажные из пеноблоков из пеноблоков с гаражом с баней 9х12 загородные с четырехскатной крышей с мансардной крышей из керамзитобетонных блоков 11х11 с баней и гаражом с камином с сауной квадратные со встроенным гаражом 10х12 с панорамным остеклением из газобетона с баней из газобетона с террасой из блоков двухэтажные из блоков из блоков с гаражом из блоков с мансардой из пеноблоков с баней из пеноблоков с террасой загородные из газобетона Проекты деревянных домов с гаражом Проекты двухэтажных каркасных домов Проекты каркасных домов с баней Проекты каркасных домов с террасой Проекты двухэтажных домов с террасой Проекты двухэтажных домов с верандой с террасой и камином облицованные кирпичом с кабинетом с гаражом под одной крышей каркасные для постоянного проживания с гаражом на 2 машины с мансардой и террасой двухэтажные 11 на 11 двухэтажные 10 на 12 11 на 11 с мансардой с гаражом и террасой двухэтажные с террасой и гаражом с панорамными окнами и террасой двухэтажные с сауной 9 на 12 с мансардой каркасные с гаражом 10x12 с мансардой недорогие из пеноблоков загородные с 5 спальнями двухэтажные с камином двухэтажные с панорамными окнами с мансардой с баней с мансардой с котельной с мансардой с камином с мансардой с четырехскатной крышей с мансардой с панорамными окнами с мансардой квадратные с мансардой готовые с мансардой для постоянного проживания готовые с камином с изолированной кухней с котельной с большой гостиной из газобетона от 200 до 300 кв.м из газобетона с четырехскатной крышей из газобетона с панорамными окнами из газобетона с котельной из газобетона квадратные из газобетона готовые из газобетона с камином из газобетона с большой кухней из газобетона с кабинетом из газобетона с изолированной кухней из газобетона 11х11 из газобетона для постоянного проживания двухэтажные из газобетона с четырехскатной крышей из газобетона с мансардой с террасой из газобетона с мансардой с камином из газобетона с мансардой для постоянного проживания из газобетона с мансардой готовые из газобетона с мансардой с четырехскатной крышей из газобетона с мансардой с большой кухней из газобетона с мансардой с баней из газобетона с мансардой с изолированной кухней из газобетона с мансардой с панорамными окнами из газобетона с мансардой квадратные из газобетона с мансардой с прачечной из газобетона с мансардой и гаражом на 2 машины из пеноблоков с четырехскатной крышей из пеноблоков с мансардной крышей из пеноблоков с панорамными окнами из пеноблоков квадратные из пеноблоков для постоянного проживания из пеноблоков недорогие из пеноблоков готовые из пеноблоков с камином из пеноблоков 11х11 из пеноблоков от 200 до 300 м2 из пеноблоков с большой кухней из пеноблоков с изолированной кухней недорогие с мансардой недорогие с гаражом недорогие с террасой недорогие для постоянного проживания недорогие с четырехскатной крышей недорогие с мансардной крышей недорогие с панорамными окнами недорогие с изолированной кухней недорогие с баней недорогие с кабинетом недорогие с котельной недорогие с камином недорогие квадратные недорогие от 200 до 300 м2 из клееного бруса без гаража Показать все категории Скрыть категории

Похожие проекты
Состав проекта
Входит в стоимость
Цена, руб. Сроки, дней
Комплект архитектурно-строительных чертежей (АС) Входит в стоимость Готов к отправке
Готово к продаже
Цена, руб. Сроки, дней
Паспорт рабочего проекта 5 000 ₽ 3 рабочих дня в корзину
Дополнительная копия проекта формата А3 4 000 ₽ Готов к отправке в корзину
Электронная копия проекта (скан распечатанной версии) 4 000 ₽ 3 рабочих дня в корзину
Разрабатывается отдельно
Цена, руб. Сроки, дней
Адаптация фундамента (изменение типа фундамента) по запросу 14 рабочих дней
Дизайн интерьера (стоимость от 2200руб. за квад.метр площади) по запросу 30 рабочих дней
Внесение изменений в проект по запросу 20 рабочих дней
Инженерные разделы: ВК + ОВ + ЭО 40 000 ₽ 20 рабочих дней в корзину
Зеркалирование проекта (для которого нет зеркальной версии) 8 000 ₽ 5 рабочих дней в корзину
Разработка Генплана участка, в масштабе 1:250 7 500 ₽ 5 рабочих дней в корзину
Фэншуй дома 20 000 ₽ 14 рабочих дней в корзину
Фэншуй участка 15 000 ₽ 14 рабочих дней в корзину
Фэншуй полная консультация дом+участок с выездом на объект 100 000 ₽ 30 рабочих дней в корзину
Опции проекта вы можете заказать в корзине при оформлении заказа
Предложения строителей Свердловская область
Подбор строительной компании
Не знаете кому доверить строительство дома? Мы можем помочь! Подберем для вас из сотен наших партнеров несколько компаний с лучшем соотношением цена/качество под конкретно ваш запрос.
Подобрать
Посмотреть еще 3 компании Свернуть
Отзывы покупателей
Рейтинг покупателей
0 / 5 5 5 1
На основе 1 оценок покупателей
0%
0%
0%
0%
0%
Отзывы о проекте D290
Отзыв о проекте D290
Чтобы оставить отзыв, пожалуйста авторизуйтесь.
Подбор строительной компании
Не знаете кому доверить строительство дома? Мы можем помочь! Подберем для вас из сотен наших партнеров несколько компаний с лучшем соотношением цена/качество под конкретно ваш запрос.
Подобрать