Главная Проекты домов Проект одноэтажного дома с камином внутри и барбекю на террасе под крышей

D3307 Проект одноэтажного дома с камином внутри и барбекю на террасе под крышей

Сравнить проект В избранное
Проект одноэтажного дома с камином внутри и барбекю на террасе под крышей / 1
Проект одноэтажного дома с камином внутри и барбекю на террасе под крышей / 2
Проект одноэтажного дома с камином внутри и барбекю на террасе под крышей / 3
Проект одноэтажного дома с камином внутри и барбекю на террасе под крышей / 4
Проект одноэтажного дома с камином внутри и барбекю на террасе под крышей / 5
Проект одноэтажного дома с камином внутри и барбекю на террасе под крышей / 1
Проект одноэтажного дома с камином внутри и барбекю на террасе под крышей / 2
Проект одноэтажного дома с камином внутри и барбекю на террасе под крышей / 3
Проект одноэтажного дома с камином внутри и барбекю на террасе под крышей / 4
Проект одноэтажного дома с камином внутри и барбекю на террасе под крышей / 5
D3307
133 м²
Технические характеристики
Общие
Материал стен
Газобетон
Общая площадь
133 м²
Жилая площадь
81.3 м²
Площадь застройки
152 м²
Приведенная площадь
109.65 м²
Количество жилых комнат/спален
3
Этажи
1 этаж
Гараж
Нет гаража
Количество машин
нет
Подвал / цокольный этаж
Без подвала
Длина дома
13.8 м
Ширина дома
12.4 м
Кровля
Металлочерепица
Облицовка внешних стен
Мокрая штукатурка
Толщина несущих наружных стен
375 мм
Межэтажные перекрытия
По деревянным балкам
Внутренние не несущие перегородки
Газобетонные
Фундамент
Утепленная шведская плита (УШП)
Терраса
Терраса крытая
Дополнительные
Окна
Окна до пола
Камин
Есть
Сауна/баня внутри
Нет
Площадь гостиной
29.7 м²
Площадь кухни
6 м²
Количество санузлов
2
Окно в ванной комнате
Есть
Котельная
Есть
Хозяйский санузел
Есть
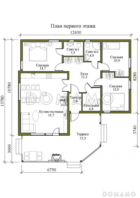
Планы помещений
Описание проекта
Компания Domamo предлагает проект одноэтажного дома с камином внутри и барбекю на террасе под крышей D3307. Общая площадь - 133 м2, размер - 13.8х12.4 м. Фундамент - утепленная шведская плита (ушп), кровля - металлочерепица, внешняя отделка - мокрая штукатурка. Для заказа проекта или внесения изменений свяжитесь с нами с помощью форм обратной связи на сайте или по телефону +7 (343) 357-92-70.
Категории проекта: для постоянного проживания пенобетон современные дачные дома гостевые от 100 до 200 кв.м в европейском стиле с террасой из газобетона в немецком стиле из газобетона одноэтажные из пеноблоков готовые одноэтажные одноэтажные до 150 кв. м. одноэтажные с котельной с котельной одноэтажные из газобетона из газосиликатных блоков дачные из пеноблоков дачные с верандой до 150 кв.м до 200 кв.м с двухскатной крышей загородные из керамзитобетонных блоков с камином с барбекю из газобетона с террасой из блоков одноэтажные из блоков из пеноблоков с террасой загородные из газобетона Проекты одноэтажных домов с террасой дачные одноэтажные Типовые проекты загородных одноэтажных домов без гаража одноэтажные без гаража дачные с террасой с террасой и камином дачные с камином одноэтажные с тремя спальнями Проекты домов с тремя спальнями одноэтажных из керамзитобетонных блоков одноэтажные до 200 кв м до 140 кв м из пеноблоков загородные сложной формы одноэтажные современные одноэтажные с двухскатной крышей одноэтажные с окнами в пол одноэтажные с камином одноэтажные с барбекю на террасе одноэтажные гостевые одноэтажные европейские одноэтажные с 2 санузлами одноэтажные до 180 м2 одноэтажные из газобетона с террасой одноэтажные из газобетона до 150 кв. м одноэтажные из газобетона с мансардой одноэтажные из газобетона с 3 спальнями европейские современные окна в пол двухскатная крыша сложной формы с камином с зоной барбекю готовые проекты для постоянного проживания гостевые дачные с котельной из газобетона до 150 кв.м из газобетона до 200 кв.м из газобетона от 100 до 200 кв.м из газобетона с двухскатной крышей из газобетона в европейском стиле из газобетона современные из газобетона с котельной из газобетона готовые из газобетона с камином из газобетона с тремя спальнями из газобетона дачные из газобетона гостевые из газобетона для постоянного проживания современные без гаража современные с двухскатной крышей современные с окнами в пол современные с террасой современные до 150 кв. м современные от 100 до 200 кв. м европейские для постоянного проживания европейские дачные европейские гостевые европейские готовые европейские без подвала европейские с террасой европейские с 2 санузлами европейские с котельной европейские с окнами в пол европейские с двухскатной крышей европейские с камином европейские до 150 м2 европейские 100-200 м2 до 150 кв.м для постоянного проживания до 150 кв.м гостевые до 150 кв.м дачные до 150 кв.м без гаража до 150 кв.м с двухскатной крышей до 150 кв.м с окнами до пола до 150 кв.м готовые до 150 кв.м с котельной до 150 кв.м без бани до 150 кв.м с террасой до 150 кв.м без подвала до 150 кв.м с 3 спальнями до 150 кв.м с камином из пеноблоков в современном стиле из пеноблоков в европейском стиле из пеноблоков с двухскатной крышей из пеноблоков с окнами до пола из пеноблоков нестандартные из пеноблоков для постоянного проживания из пеноблоков гостевые из пеноблоков готовые из пеноблоков с камином из пеноблоков до 150 м кв. из пеноблоков от 100 до 200 м2 из пеноблоков с 3 спальнями недорогие гостевые из клееного бруса без гаража Показать все категории Скрыть категории

Похожие проекты
Состав проекта
Входит в стоимость
Цена, руб. Сроки, дней
Комплект архитектурно-строительных чертежей (АС) Входит в стоимость Готов к отправке
Готово к продаже
Цена, руб. Сроки, дней
Паспорт рабочего проекта 5 000 ₽ 3 рабочих дня в корзину
Дополнительная копия проекта формата А3 4 000 ₽ Готов к отправке в корзину
Электронная копия проекта (скан распечатанной версии) 4 000 ₽ 3 рабочих дня в корзину
Разрабатывается отдельно
Цена, руб. Сроки, дней
Адаптация фундамента (изменение типа фундамента) по запросу 14 рабочих дней
Дизайн интерьера (стоимость от 2200руб. за квад.метр площади) по запросу 30 рабочих дней
Внесение изменений в проект по запросу 20 рабочих дней
Инженерные разделы: ВК + ОВ + ЭО 40 000 ₽ 20 рабочих дней в корзину
Зеркалирование проекта (для которого нет зеркальной версии) 8 000 ₽ 5 рабочих дней в корзину
Разработка Генплана участка, в масштабе 1:250 7 500 ₽ 5 рабочих дней в корзину
Фэншуй дома 20 000 ₽ 14 рабочих дней в корзину
Фэншуй участка 15 000 ₽ 14 рабочих дней в корзину
Фэншуй полная консультация дом+участок с выездом на объект 100 000 ₽ 30 рабочих дней в корзину
Опции проекта вы можете заказать в корзине при оформлении заказа
Предложения строителей Свердловская область
Подбор строительной компании
Не знаете кому доверить строительство дома? Мы можем помочь! Подберем для вас из сотен наших партнеров несколько компаний с лучшем соотношением цена/качество под конкретно ваш запрос.
Подобрать
Посмотреть еще 3 компании Свернуть
Отзывы покупателей
Рейтинг покупателей
0 / 5 5 5 1
На основе 1 оценок покупателей
0%
0%
0%
0%
0%
Отзывы о проекте D3307
Отзыв о проекте D3307
Чтобы оставить отзыв, пожалуйста авторизуйтесь.
Подбор строительной компании
Не знаете кому доверить строительство дома? Мы можем помочь! Подберем для вас из сотен наших партнеров несколько компаний с лучшем соотношением цена/качество под конкретно ваш запрос.
Подобрать