Главная Проекты домов Проект двухэтажного дома с эркером и цокольным этажом, с винтовой лестницей

D342 Проект двухэтажного дома с эркером и цокольным этажом, с винтовой лестницей

Сравнить проект В избранное
Технические характеристики
Общие
Материал стен
Газобетон
Общая площадь
371 м²
Площадь застройки
135.3 м²
Приведенная площадь
365.526 м²
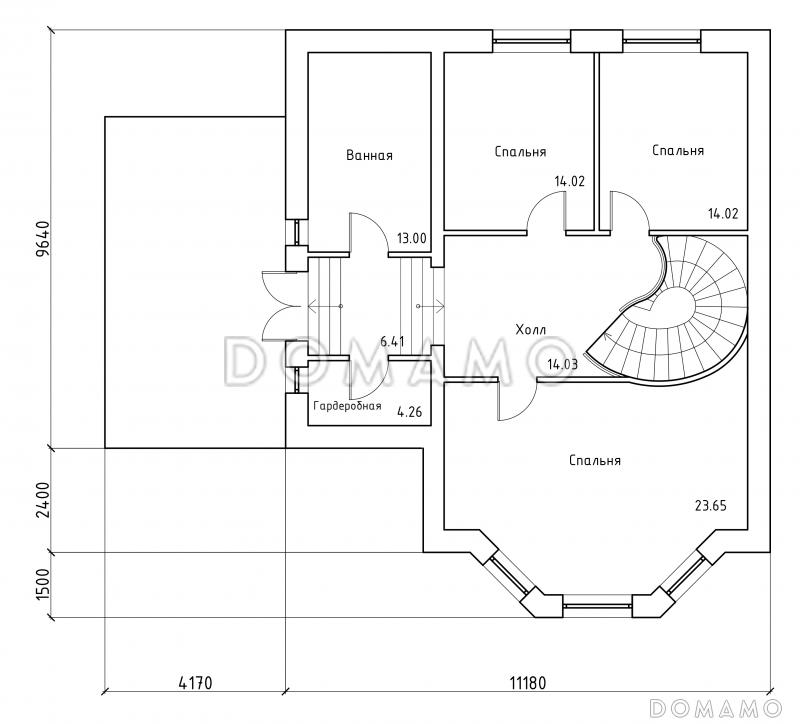
Количество жилых комнат/спален
4
Этажи
2 этажа
Гараж
Нет гаража
Подвал / цокольный этаж
С окнами
Длина дома
16.54 м
Ширина дома
15.34 м
Высота в коньке
6.5 м
Кровля
Металлочерепица
Облицовка внешних стен
Облицовочный кирпич
Толщина несущих наружных стен
520 мм
Межэтажные перекрытия
Сборные
Внутренние не несущие перегородки
Газобетонные
Фундамент
Ленточный монолитный
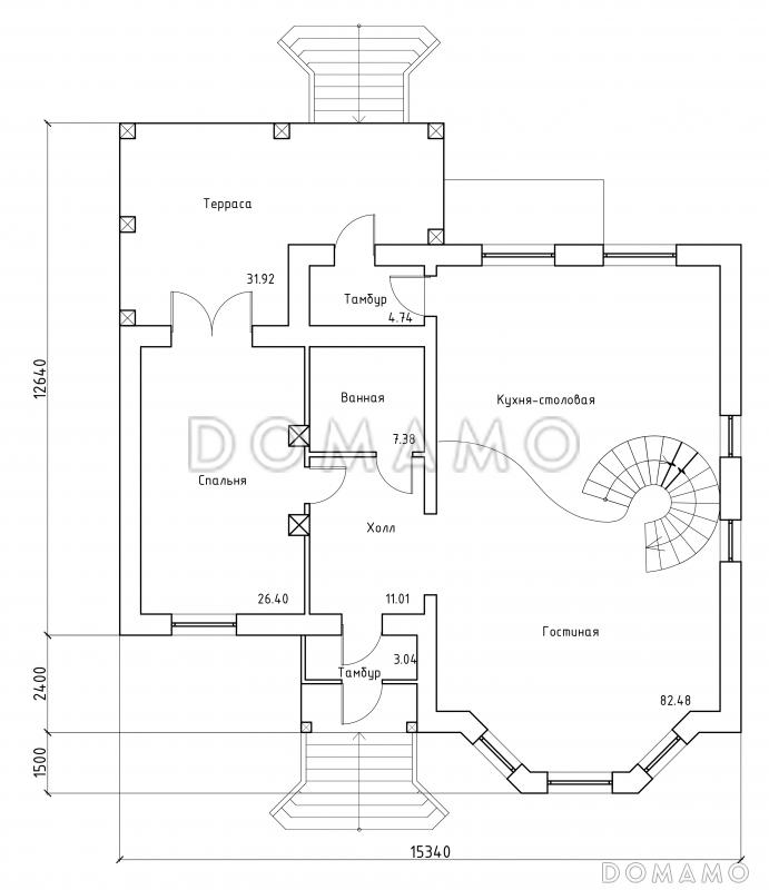
Терраса
Терраса крытая
Дополнительные
Окна
Окна до пола
,
Панорамные окна
Сауна/баня внутри
Нет
Площадь гостиной
42.48 м²
Площадь кухни
40 м²
Количество санузлов
3
Котельная
Есть
Постирочная
Есть
Кладовая
3
Планы помещений
Описание проекта
Компания Domamo предлагает проект двухэтажного дома с эркером и цокольным этажом, с винтовой лестницей D342. Общая площадь - 371 м2, размер - 16.54х15.34 м. Фундамент - ленточный монолитный, кровля - металлочерепица, внешняя отделка - облицовочный кирпич. Для заказа проекта или внесения изменений свяжитесь с нами с помощью форм обратной связи на сайте или по телефону +7 (343) 357-92-70.
Категории проекта: для постоянного проживания пенобетон от 300 до 400 кв.м в европейском стиле с эркером с террасой из газобетона с цокольным этажом из газобетона с эркером и цоколем из газобетона с эркером из газобетона в немецком стиле из газобетона готовые с цокольным этажом двухэтажные с котельной двухэтажные из газобетона из газосиликатных блоков двухэтажные из пеноблоков загородные из керамзитобетонных блоков прямоугольные с панорамным остеклением из газобетона с террасой двухэтажные с цокольным этажом двухэтажные с эркером из блоков двухэтажные из блоков из блоков с эркером Проекты домов из пеноблоков с эркером из пеноблоков с цокольным этажом из пеноблоков с террасой загородные из газобетона Проекты двухэтажных домов с террасой Проекты двухэтажных домов с верандой без гаража облицованные кирпичом с 4 спальнями с панорамными окнами и террасой из пеноблоков загородные двухэтажные с панорамными окнами двухэтажные с 4 спальнями двухэтажные без гаража из газобетона от 300 до 400 кв.м из газобетона в европейском стиле из газобетона с панорамными окнами из газобетона с котельной из газобетона прямоугольные из газобетона готовые из газобетона с большой кухней из газобетона с четырьмя спальнями из газобетона большие из газобетона для постоянного проживания двухэтажные из газобетона без гаража двухэтажные из газобетона с террасой двухэтажные из газобетона с прачечной двухэтажные из газобетона с котельной двухэтажные из газобетона в европейском стиле двухэтажные из газобетона с вальмовой крышей двухэтажные из газобетона большие двухэтажные из газобетона с подвалом двухэтажные из газобетона с эркером двухэтажные из газобетона с 4 спальнями двухэтажные из газобетона с большой гостиной европейские для постоянного проживания европейские готовые европейские с подвалом европейские с террасой европейские с котельной европейские с прачечной европейские с кладовой европейские прямоугольные европейские с панорамными окнами европейские с окнами в пол европейские с вальмовой крышей европейские 300-400 м2 из пеноблоков в европейском стиле из пеноблоков с вальмовой крышей из пеноблоков с окнами до пола из пеноблоков с панорамными окнами из пеноблоков прямоугольные из пеноблоков для постоянного проживания из пеноблоков готовые из пеноблоков от 300 до 400 м2 из пеноблоков большие из пеноблоков с 4 спальнями из пеноблоков с большой гостиной из пеноблоков с большой кухней недорогие двухэтажные недорогие без гаража недорогие с террасой недорогие для постоянного проживания недорогие с вальмовой крышей недорогие с окнами до пола недорогие с панорамными окнами недорогие с большой гостиной недорогие без бани недорогие с котельной недорогие прямоугольные недорогие от 300 до 400 м2 из клееного бруса без гаража Показать все категории Скрыть категории

Похожие проекты
Состав проекта
Входит в стоимость
Цена, руб. Сроки, дней
Комплект архитектурно-строительных чертежей (АС) Входит в стоимость 23 рабочих дня
Зеркальная версия проекта Входит в стоимость 23 рабочих дня
Готово к продаже
Цена, руб. Сроки, дней
Паспорт рабочего проекта 4 000 ₽ 23 рабочих дня в корзину
Дополнительная копия проекта формата А3 4 000 ₽ 23 рабочих дня в корзину
Электронная копия проекта (скан распечатанной версии) 4 000 ₽ 23 рабочих дня в корзину
3D модель дома 20 000 ₽ 23 рабочих дня в корзину
Разрабатывается отдельно
Цена, руб. Сроки, дней
Адаптация фундамента (изменение типа фундамента) по запросу 14 рабочих дней
Дизайн интерьера (стоимость от 2200руб. за квад.метр площади) по запросу 30 рабочих дней
Внесение изменений в проект по запросу 20 рабочих дней
Разработка Генплана участка, в масштабе 1:250 7 000 ₽ 23 рабочих дня в корзину
Фэншуй дома 20 000 ₽ 14 рабочих дней в корзину
Фэншуй участка 15 000 ₽ 14 рабочих дней в корзину
Фэншуй полная консультация дом+участок с выездом на объект 100 000 ₽ 30 рабочих дней в корзину
Опции проекта вы можете заказать в корзине при оформлении заказа
Предложения строителей Выбрать регион
Минимальная
12 428 020 ₽
Стандарт
15 352 259 ₽
Под чистовую отделку
20 104 150 ₽
Показать подробные комплектации
Минимальная
29 827 247 ₽
Стандарт
35 090 880 ₽
Под чистовую отделку
45 618 144 ₽
Показать подробные комплектации
Минимальная
13 937 658 ₽
Стандарт
20 681 687 ₽
Под чистовую отделку
32 820 938 ₽
Показать подробные комплектации
Минимальная
11 514 194 ₽
Стандарт
13 817 033 ₽
Под чистовую отделку
15 461 919 ₽
Показать подробные комплектации
Минимальная
11 797 846 ₽
Стандарт
17 315 156 ₽
Под чистовую отделку
18 525 060 ₽
Показать подробные комплектации
Минимальная
9 211 356 ₽
Стандарт
10 527 264 ₽
Под чистовую отделку
13 817 033 ₽
Показать подробные комплектации
Подбор строительной компании
Не знаете кому доверить строительство дома? Мы можем помочь! Подберем для вас из сотен наших партнеров несколько компаний с лучшем соотношением цена/качество под конкретно ваш запрос.
Подобрать
Посмотреть еще 32 компании Свернуть
Отзывы покупателей
Рейтинг покупателей
0 / 5 5 5 1
На основе 1 оценок покупателей
0%
0%
0%
0%
0%
Отзывы о проекте D342
Отзыв о проекте D342
Чтобы оставить отзыв, пожалуйста авторизуйтесь.
Подбор строительной компании
Не знаете кому доверить строительство дома? Мы можем помочь! Подберем для вас из сотен наших партнеров несколько компаний с лучшем соотношением цена/качество под конкретно ваш запрос.
Подобрать