Главная Проекты домов Проект одноэтажного загородного дома с тремя спальнями и большой гостиной с окнами в пол

D3599 Проект одноэтажного загородного дома с тремя спальнями и большой гостиной с окнами в пол

Сравнить проект В избранное
Технические характеристики
Общие
Материал стен
Газобетон
Общая площадь
181 м²
Жилая площадь
90.09 м²
Площадь застройки
208 м²
Приведенная площадь
152.86 м²
Количество жилых комнат/спален
3
Этажи
1 этаж
Гараж
Нет гаража
Подвал / цокольный этаж
Без подвала
Длина дома
15.5 м
Ширина дома
9.88 м
Кровля
Металлочерепица
Облицовка внешних стен
Мокрая штукатурка
,
Сайдинг
Толщина несущих наружных стен
375 мм
Межэтажные перекрытия
Монолитные
Фундамент
Монолитная ж/бетонная плита
Терраса
Терраса крытая
Дополнительные
Окна
Окна до пола
Камин
Есть
Сауна/баня внутри
Нет
Площадь гостиной
40.97 м²
Площадь кухни
14.76 м²
Количество санузлов
2
Окно в ванной комнате
Есть
Котельная
Есть
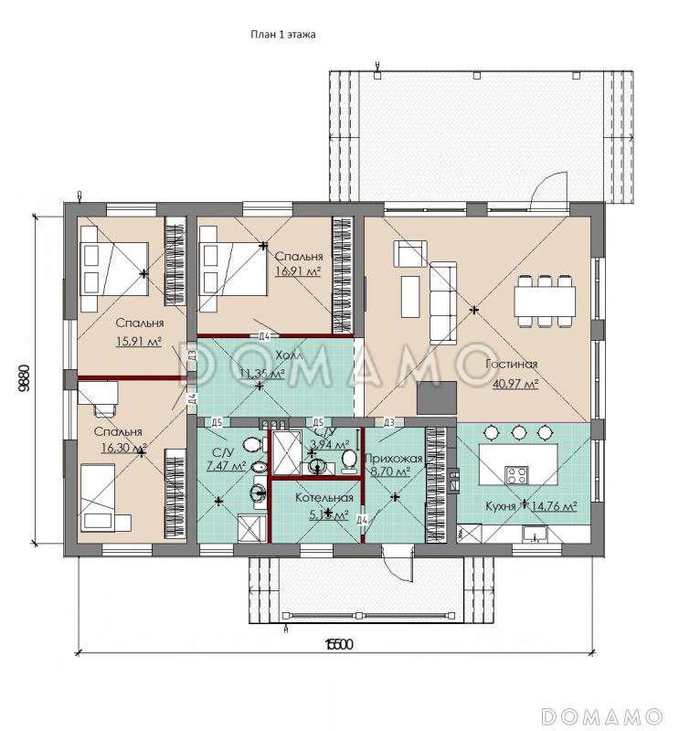
Планы помещений
Фасады
Описание проекта
Компания Domamo предлагает проект одноэтажного загородного дома с тремя спальнями и большой гостиной с окнами в пол D3599. Общая площадь - 181 м2, размер - 15.5х9.88 м. Фундамент - монолитная ж/бетонная плита, кровля - металлочерепица, внешняя отделка - сайдинг мокрая штукатурка. Для заказа проекта или внесения изменений свяжитесь с нами с помощью форм обратной связи на сайте или по телефону +7 (343) 357-92-70.
Категории проекта: для постоянного проживания пенобетон современные от 100 до 200 кв.м в европейском стиле с террасой из газобетона одноэтажные из пеноблоков готовые одноэтажные одноэтажные с котельной с котельной одноэтажные из газобетона из газосиликатных блоков до 200 кв.м с двухскатной крышей загородные из керамзитобетонных блоков с камином прямоугольные из газобетона с террасой из блоков одноэтажные из блоков из пеноблоков с террасой загородные из газобетона Проекты одноэтажных домов с террасой Типовые проекты загородных одноэтажных домов без гаража одноэтажные без гаража с террасой и камином одноэтажные с тремя спальнями Проекты домов с тремя спальнями одноэтажных из керамзитобетонных блоков одноэтажные до 200 кв м недорогие из пеноблоков загородные одноэтажные современные одноэтажные с двухскатной крышей одноэтажные прямоугольные одноэтажные с окнами в пол одноэтажные с камином одноэтажные с 2 санузлами одноэтажные с большой гостиной одноэтажные до 180 м2 одноэтажные из газобетона с террасой одноэтажные из газобетона с мансардой одноэтажные из газобетона с 3 спальнями современные окна в пол двухскатная крыша прямоугольные с большой гостиной с камином готовые проекты для постоянного проживания с котельной из газобетона до 200 кв.м из газобетона от 100 до 200 кв.м из газобетона с двухскатной крышей из газобетона современные из газобетона с котельной из газобетона прямоугольные из газобетона готовые из газобетона с камином из газобетона с тремя спальнями из газобетона для постоянного проживания современные без гаража современные с двухскатной крышей современные с окнами в пол современные с террасой современные от 100 до 200 кв. м из пеноблоков в современном стиле из пеноблоков с двухскатной крышей из пеноблоков с окнами до пола из пеноблоков прямоугольные из пеноблоков для постоянного проживания из пеноблоков недорогие из пеноблоков готовые из пеноблоков с камином из пеноблоков от 100 до 200 м2 из пеноблоков с 3 спальнями из пеноблоков с большой гостиной недорогие без гаража недорогие с террасой недорогие для постоянного проживания недорогие с двухскатной крышей недорогие с окнами до пола недорогие с большой гостиной недорогие без бани недорогие с котельной недорогие с камином недорогие прямоугольные недорогие от 100 до 200 м2 из клееного бруса без гаража Показать все категории Скрыть категории

Похожие проекты
Состав проекта
Входит в стоимость
Цена, руб. Сроки, дней
Комплект архитектурно-строительных чертежей (АС) Входит в стоимость Готов к отправке
Разрабатывается отдельно
Цена, руб. Сроки, дней
Адаптация фундамента (изменение типа фундамента) по запросу 14 рабочих дней
Дизайн интерьера (стоимость от 2200руб. за квад.метр площади) по запросу 30 рабочих дней
Внесение изменений в проект по запросу 20 рабочих дней
Фэншуй дома 20 000 ₽ 14 рабочих дней в корзину
Фэншуй участка 15 000 ₽ 14 рабочих дней в корзину
Фэншуй полная консультация дом+участок с выездом на объект 100 000 ₽ 30 рабочих дней в корзину
Опции проекта вы можете заказать в корзине при оформлении заказа
Предложения строителей Выбрать регион
Минимальная
5 197 240 ₽
Стандарт
6 420 120 ₽
Под чистовую отделку
8 407 300 ₽
Показать подробные комплектации
Минимальная
15 591 720 ₽
Стандарт
18 343 200 ₽
Под чистовую отделку
23 846 160 ₽
Показать подробные комплектации
Минимальная
7 629 242 ₽
Стандарт
11 320 811 ₽
Под чистовую отделку
17 965 635 ₽
Показать подробные комплектации
Минимальная
5 350 100 ₽
Стандарт
6 420 120 ₽
Под чистовую отделку
7 184 420 ₽
Показать подробные комплектации
Минимальная
4 933 709 ₽
Стандарт
7 240 978 ₽
Под чистовую отделку
7 746 944 ₽
Показать подробные комплектации
Минимальная
4 922 092 ₽
Стандарт
5 625 248 ₽
Под чистовую отделку
7 383 138 ₽
Показать подробные комплектации
Подбор строительной компании
Не знаете кому доверить строительство дома? Мы можем помочь! Подберем для вас из сотен наших партнеров несколько компаний с лучшем соотношением цена/качество под конкретно ваш запрос.
Подобрать
Посмотреть еще 32 компании Свернуть
Отзывы покупателей
Рейтинг покупателей
0 / 5 5 5 1
На основе 1 оценок покупателей
0%
0%
0%
0%
0%
Отзывы о проекте D3599
Отзыв о проекте D3599
Чтобы оставить отзыв, пожалуйста авторизуйтесь.
Подбор строительной компании
Не знаете кому доверить строительство дома? Мы можем помочь! Подберем для вас из сотен наших партнеров несколько компаний с лучшем соотношением цена/качество под конкретно ваш запрос.
Подобрать