Главная Проекты домов Проект мансардного дома из газобетона с кабинетом, тремя спальнями и балконом

D4152 Проект мансардного дома из газобетона с кабинетом, тремя спальнями и балконом

Сравнить проект В избранное
Проект мансардного дома из газобетона с кабинетом, тремя спальнями и балконом / 1
Проект мансардного дома из газобетона с кабинетом, тремя спальнями и балконом / 2
Проект мансардного дома из газобетона с кабинетом, тремя спальнями и балконом / 3
Проект мансардного дома из газобетона с кабинетом, тремя спальнями и балконом / 1
Проект мансардного дома из газобетона с кабинетом, тремя спальнями и балконом / 2
Проект мансардного дома из газобетона с кабинетом, тремя спальнями и балконом / 3
D4152
125 м²
Технические характеристики
Общие
Материал стен
Газобетон
Общая площадь
125 м²
Площадь застройки
102 м²
Приведенная площадь
127.014 м²
Количество жилых комнат/спален
4
Этажи
1 этаж + мансарда
Гараж
Нет гаража
Подвал / цокольный этаж
Без подвала
Длина дома
10.86 м
Ширина дома
9.91 м
Высота в коньке
7.63 м
Кровля
Металлочерепица
Облицовка внешних стен
Деревянная вагонка
,
Мокрая штукатурка
,
Облицовка камнем
Толщина несущих наружных стен
380 мм
Межэтажные перекрытия
Монолитные
Внутренние не несущие перегородки
Газобетонные
Фундамент
Ленточный заглубленный из ФБС
Терраса
Терраса открытая
Дополнительные
Окна
Окна до пола
Мансардные окна
Есть
Камин
Есть
Площадь гостиной
24.6 м²
Площадь кухни
11.9 м²
Количество санузлов
2
Окно в ванной комнате
Есть
Кабинет
Есть
Постирочная
Есть
Кладовая
4
Балкон / лоджия
Балкон
Длина участка
16.48 м
Ширина участка
16.78 м
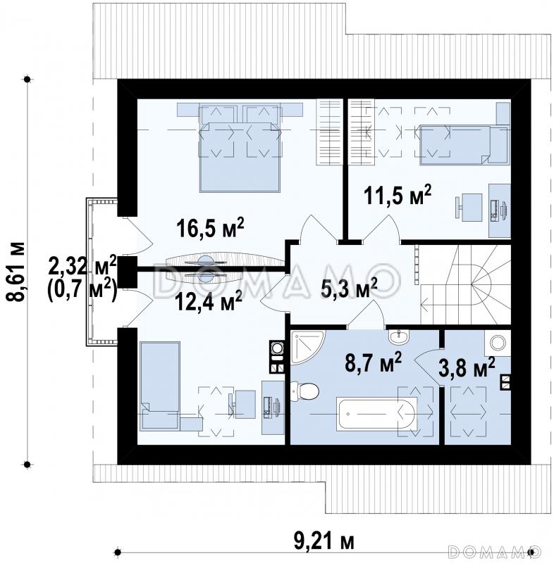
Планы помещений
Фасады
Описание проекта
Компания Domamo предлагает проект мансардного дома из газобетона с кабинетом, тремя спальнями и балконом D4152. Общая площадь - 125 м2, размер - 10.86х9.91 м. Фундамент - ленточный заглубленный из фбс, кровля - металлочерепица, внешняя отделка - деревянная вагонка мокрая штукатурка облицовка камнем. Для заказа проекта или внесения изменений свяжитесь с нами с помощью форм обратной связи на сайте или по телефону +7 (343) 357-92-70.
Категории проекта: с мансардой для постоянного проживания пенобетон в классическом стиле от 100 до 200 кв.м с террасой из пеноблоков с мансардой из газобетона готовые из газобетона с мансардой одноэтажные с мансардой одноэтажные до 150 кв. м. одноэтажные из газобетона из газосиликатных блоков до 150 кв.м до 200 кв.м с двухскатной крышей 9х12 загородные из керамзитобетонных блоков с камином квадратные с балконом 10х12 из газобетона с террасой из блоков одноэтажные из блоков из блоков с мансардой из пеноблоков с террасой загородные из газобетона Проекты одноэтажных домов с террасой Типовые проекты загородных одноэтажных домов без гаража одноэтажные без гаража с террасой и камином с кабинетом одноэтажных из керамзитобетонных блоков одноэтажные с 4 спальнями с мансардой до 150 кв м с мансардой и террасой полутораэтажные каменные с 4 спальнями 9 на 12 с мансардой одноэтажные до 200 кв м до 140 кв м 10x12 с мансардой до 130 кв м с балконом и террасой из пеноблоков загородные одноэтажные с мансардными окнами с мансардой с камином с мансардой с двухскатной крышей с мансардой в классическом стиле с мансардой с окнами до пола с мансардой с мансардными окнами с мансардой с балконом с мансардой квадратные с мансардой готовые с мансардой для постоянного проживания с мансардой до 200 кв.м с мансардой от 100 до 150 кв.м одноэтажные из газобетона с террасой одноэтажные из газобетона до 150 кв. м одноэтажные из газобетона с мансардой одноэтажные из газобетона с 4 спальнями из газобетона до 150 кв.м из газобетона до 200 кв.м из газобетона от 100 до 200 кв.м из газобетона с двухскатной крышей из газобетона в классическом стиле из газобетона с балконом из газобетона квадратные из газобетона готовые из газобетона с камином из газобетона с четырьмя спальнями из газобетона с кабинетом из газобетона для постоянного проживания двухэтажные из газобетона без гаража двухэтажные из газобетона с террасой двухэтажные из газобетона с камином двухэтажные из газобетона с прачечной двухэтажные из газобетона с кабинетом двухэтажные из газобетона классические двухэтажные из газобетона с двухскатной крышей двухэтажные из газобетона до 150 кв. м двухэтажные из газобетона до 200 кв. м двухэтажные из газобетона без подвала двухэтажные из газобетона с 4 спальнями из газобетона с мансардой в классическом стиле из газобетона с мансардой с балконом из газобетона с мансардой с террасой из газобетона с мансардой с камином из газобетона с мансардой для постоянного проживания из газобетона с мансардой готовые из газобетона с мансардой с двухскатной крышей из газобетона с мансардой с 4 спальнями из газобетона с мансардой квадратные из газобетона с мансардой с прачечной одноэтажные с мансардой для постоянного проживания одноэтажные с мансардой классические одноэтажные с мансардой с балконом классические для постоянного проживания классические без гаража классические с 4 спальнями классические с окнами в пол классические с террасой классические готовые классические без подвала классические с 2 санузлами классические с прачечной классические с балконом классические квадратные классические с камином классические с двухскатной крышей классические с кабинетом до 150 кв.м для постоянного проживания до 150 кв.м без гаража до 150 кв.м с двухскатной крышей до 150 кв.м с окнами до пола до 150 кв.м классические до 150 кв.м готовые до 150 кв.м с мансардными окнами до 150 кв.м с балконом до 150 кв.м квадратные до 150 кв.м с кабинетом до 150 кв.м с прачечной до 150 кв.м с террасой до 150 кв.м без подвала до 150 кв.м с 4 спальнями до 150 кв.м с камином из пеноблоков в классическом стиле из пеноблоков с двухскатной крышей из пеноблоков с окнами до пола из пеноблоков квадратные из пеноблоков с балконом из пеноблоков для постоянного проживания из пеноблоков готовые из пеноблоков с камином из пеноблоков до 150 м кв. из пеноблоков от 100 до 200 м2 из пеноблоков с 4 спальнями из клееного бруса без гаража Показать все категории Скрыть категории

Похожие проекты
Состав проекта
Входит в стоимость
Цена, руб. Сроки, дней
Комплект архитектурно-строительных чертежей (АС) Входит в стоимость Готов к отправке
Готово к продаже
Цена, руб. Сроки, дней
Паспорт рабочего проекта 8 000 ₽ 5 рабочих дней в корзину
Инженерные разделы: ВК + ОВ + ЭО 26 000 ₽ Готов к отправке в корзину
Дополнительная копия проекта формата А3 6 500 ₽ 5 рабочих дней в корзину
Электронная копия проекта (скан распечатанной версии) 4 000 ₽ 3 рабочих дня в корзину
Разрабатывается отдельно
Цена, руб. Сроки, дней
Адаптация фундамента (изменение типа фундамента) по запросу 14 рабочих дней
Дизайн интерьера (стоимость от 2200руб. за квад.метр площади) по запросу 30 рабочих дней
Внесение изменений в проект по запросу 20 рабочих дней
Разработка Генплана участка, в масштабе 1:250 7 500 ₽ 15 рабочих дней в корзину
Фэншуй дома 20 000 ₽ 14 рабочих дней в корзину
Фэншуй участка 15 000 ₽ 14 рабочих дней в корзину
Фэншуй полная консультация дом+участок с выездом на объект 100 000 ₽ 30 рабочих дней в корзину
Опции проекта вы можете заказать в корзине при оформлении заказа
Предложения строителей Свердловская область
Подбор строительной компании
Не знаете кому доверить строительство дома? Мы можем помочь! Подберем для вас из сотен наших партнеров несколько компаний с лучшем соотношением цена/качество под конкретно ваш запрос.
Подобрать
Посмотреть еще 3 компании Свернуть
Отзывы покупателей
Рейтинг покупателей
0 / 5 5 5 1
На основе 1 оценок покупателей
0%
0%
0%
0%
0%
Отзывы о проекте D4152
Отзыв о проекте D4152
Чтобы оставить отзыв, пожалуйста авторизуйтесь.
Подбор строительной компании
Не знаете кому доверить строительство дома? Мы можем помочь! Подберем для вас из сотен наших партнеров несколько компаний с лучшем соотношением цена/качество под конкретно ваш запрос.
Подобрать