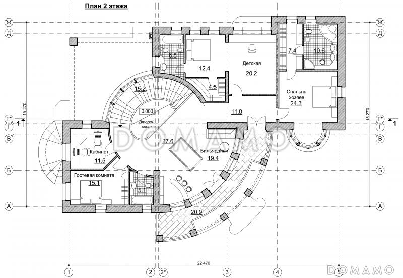
Двухэтажный 9-комнатный жилой дом имеет Г-образную в плане форму с крупным центральный коммуникационным узлом. Вокруг входа в здание формируются все основные помещения. Главный вход находится в центре полукруглой колоннады, частично перекрытой балконами второго этажа. Центральный вход ведет в центрический в плане двухсветный холл с широкой полукруглой лестницей, связывающей первый, второй и цокольный этажи. По правую сторону холла расположены все основные постоянно используемые помещения : кухня, столовая, гостиная - на первом этаже, спальня родителей и детская с рабочей комнатой - на втором. По левую сторону от центрального холла расположены помещения кабинета, двух гостевых комнат и компьютерный зал. В цокольном этаже находится помещение котельной.
Структура дома позволяет развитие обоих крыльев. Например, к правому можно пристроить бассейн, к левому - гараж. В архитектуре здания использованы элементы неоклассицизма 30-х годов ХХ века: это полукруглая колоннада, остекленная цилиндрическая шахта лестницы, изящная обзорная башенка и др.
В отделке фасадов предполагается использование белой, светло-серой и светло-терракотовой штукатурки и рваного камня (доломита или песчаника). Кровля - металлочерепица серо-синего цвета.
| Минимальная | 20 960 640 ₽ |
| Стандарт | 31 440 960 ₽ |
| Под чистовую отделку | 35 109 072 ₽ |
| Показать подробные комплектации | |