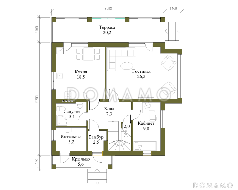
В доме - два полноценных этажа, высотой по 2,8м каждый. Между гостиной и кухней - ненесущая перегородка. Такое расположение стен позволяет делить кухню и гостиную согласно предпочтениям хозяев. Из кухни есть выход на просторную террасу. Терраса накрыта кровлей.
Предполагается, что при крыльце, выходящем на уличный фасад, терраса будет обращена в сад. Такая компоновка особенно удачна для узких участков, выходящих узкой частью на улицу.
В холле 2 этажа - устроена небольшая гардеробная зона. Все три спальни 2 этажа имеют хорошую площадь (14, 18 и 19м2).
Котельная подходит для всех котлов. В т.ч. и для напольных.
В коттедже современного стиля оборудована удобная пологая лестница для безопасного подъёма.
| Минимальная | 5 152 700 ₽ |
| Стандарт | 7 577 500 ₽ |
| Под чистовую отделку | 8 335 250 ₽ |
| Показать подробные комплектации | |
| Минимальная | 4 546 500 ₽ |
| Стандарт | 6 062 000 ₽ |
| Под чистовую отделку | 7 577 500 ₽ |
| Показать подробные комплектации | |