Главная Проекты домов Проект загородного дома с подвалом, кладовой, гостиной с камином, тремя спальнями на втором этаже

D4483 Проект загородного дома с подвалом, кладовой, гостиной с камином, тремя спальнями на втором этаже

Сравнить проект В избранное
Технические характеристики
Общие
Материал стен
Газобетон
Общая площадь
191 м²
Жилая площадь
70.49 м²
Площадь застройки
113.25 м²
Приведенная площадь
188.45 м²
Количество жилых комнат/спален
3
Этажи
2 этажа
Гараж
Нет гаража
Подвал / цокольный этаж
Без окон
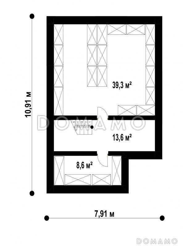
Длина дома
10.91 м
Ширина дома
7.91 м
Кровля
Металлочерепица
Облицовка внешних стен
Деревянная вагонка
,
Мокрая штукатурка
Толщина несущих наружных стен
375 мм
Межэтажные перекрытия
Монолитные
Фундамент
Ленточный монолитный
Терраса
Терраса открытая
Дополнительные
Окна
Окна до пола
Камин
Есть
Сауна/баня внутри
Нет
Площадь гостиной
25 м²
Площадь кухни
11.7 м²
Количество санузлов
3
Окно в ванной комнате
Есть
Котельная
Есть
Хозяйский санузел
Есть
Кладовая
3
Дом для узких участков
Есть
Длина участка
20.91 м
Ширина участка
15.91 м
Планы помещений
Описание проекта
Компания Domamo предлагает проект загородного дома с подвалом, кладовой, гостиной с камином, тремя спальнями на втором этаже D4483. Общая площадь - 191 м2, размер - 10.91х7.91 м. Фундамент - ленточный монолитный, кровля - металлочерепица, внешняя отделка - деревянная вагонка мокрая штукатурка. Для заказа проекта или внесения изменений свяжитесь с нами с помощью форм обратной связи на сайте или по телефону +7 (343) 357-92-70.
Категории проекта: для постоянного проживания пенобетон современные для узких участков от 100 до 200 кв.м 8х11 в европейском стиле с террасой из газобетона с цокольным этажом из газобетона готовые с цокольным этажом двухэтажные с подвалом с котельной двухэтажные из газобетона из газосиликатных блоков двухэтажные из пеноблоков до 200 кв.м загородные с четырехскатной крышей из керамзитобетонных блоков с камином узкие прямоугольные из газобетона с террасой из блоков двухэтажные из блоков из пеноблоков с террасой загородные из газобетона Проекты двухэтажных домов с террасой Проекты двухэтажных домов с верандой Проекты двухэтажных домов с подвалом без гаража с террасой и камином Проекты домов с тремя спальнями двухэтажные 200 кв м двухэтажные от 150 до 200 кв м узкие двухэтажные из пеноблоков загородные двухэтажные с камином двухэтажные с 3 спальнями двухэтажные в современном стиле двухэтажные без гаража из газобетона до 200 кв.м из газобетона от 100 до 200 кв.м из газобетона с четырехскатной крышей из газобетона современные из газобетона с котельной из газобетона прямоугольные из газобетона готовые из газобетона с камином из газобетона с тремя спальнями из газобетона для узких участков из газобетона узкие из газобетона для постоянного проживания двухэтажные из газобетона без гаража двухэтажные из газобетона с террасой двухэтажные из газобетона с камином двухэтажные из газобетона с котельной двухэтажные из газобетона современные двухэтажные из газобетона с четырехскатной крышей двухэтажные из газобетона для узких участков двухэтажные из газобетона до 200 кв. м двухэтажные из газобетона с подвалом двухэтажные из газобетона с 3 спальнями современные без гаража современные с окнами в пол современные с террасой современные узкие современные 8х11 современные от 100 до 200 кв. м современные с подвалом европейские 8х11 из пеноблоков в современном стиле из пеноблоков с четырехскатной крышей из пеноблоков с окнами до пола из пеноблоков прямоугольные из пеноблоков для постоянного проживания из пеноблоков для узких участков из пеноблоков готовые из пеноблоков с камином из пеноблоков 8х11 из пеноблоков от 100 до 200 м2 из пеноблоков узкие из пеноблоков с 3 спальнями из клееного бруса без гаража Показать все категории Скрыть категории

Похожие проекты
Состав проекта
Входит в стоимость
Цена, руб. Сроки, дней
Комплект архитектурно-строительных чертежей (АС) Входит в стоимость Готов к отправке
Готово к продаже
Цена, руб. Сроки, дней
Паспорт рабочего проекта 8 000 ₽ 5 рабочих дней в корзину
Инженерные разделы: ВК + ОВ + ЭО 13 075 ₽ Готов к отправке в корзину
Дополнительная копия проекта формата А3 6 500 ₽ 5 рабочих дней в корзину
Электронная копия проекта (скан распечатанной версии) 4 000 ₽ 3 рабочих дня в корзину
Разрабатывается отдельно
Цена, руб. Сроки, дней
Адаптация фундамента (изменение типа фундамента) по запросу 14 рабочих дней
Дизайн интерьера (стоимость от 2200руб. за квад.метр площади) по запросу 30 рабочих дней
Внесение изменений в проект по запросу 20 рабочих дней
Разработка Генплана участка, в масштабе 1:250 7 500 ₽ 15 рабочих дней в корзину
Фэншуй дома 20 000 ₽ 14 рабочих дней в корзину
Фэншуй участка 15 000 ₽ 14 рабочих дней в корзину
Фэншуй полная консультация дом+участок с выездом на объект 100 000 ₽ 30 рабочих дней в корзину
Опции проекта вы можете заказать в корзине при оформлении заказа
Варианты проекта Сравнить все варианты
Избранные проекты
Избранные строители
Предложения строителей Выбрать регион
Минимальная
6 407 300 ₽
Стандарт
7 914 899 ₽
Под чистовую отделку
10 364 750 ₽
Показать подробные комплектации
Минимальная
16 018 249 ₽
Стандарт
18 845 000 ₽
Под чистовую отделку
24 498 500 ₽
Показать подробные комплектации
Минимальная
8 529 247 ₽
Стандарт
12 656 302 ₽
Под чистовую отделку
20 085 001 ₽
Показать подробные комплектации
Минимальная
6 595 750 ₽
Стандарт
7 914 899 ₽
Под чистовую отделку
8 857 150 ₽
Показать подробные комплектации
Минимальная
6 082 412 ₽
Стандарт
8 926 876 ₽
Под чистовую отделку
9 550 646 ₽
Показать подробные комплектации
Минимальная
5 540 430 ₽
Стандарт
6 331 920 ₽
Под чистовую отделку
8 310 644 ₽
Показать подробные комплектации
Подбор строительной компании
Не знаете кому доверить строительство дома? Мы можем помочь! Подберем для вас из сотен наших партнеров несколько компаний с лучшем соотношением цена/качество под конкретно ваш запрос.
Подобрать
Посмотреть еще 32 компании Свернуть
Отзывы покупателей
Рейтинг покупателей
0 / 5 5 5 1
На основе 1 оценок покупателей
0%
0%
0%
0%
0%
Отзывы о проекте D4483
Отзыв о проекте D4483
Чтобы оставить отзыв, пожалуйста авторизуйтесь.
Подбор строительной компании
Не знаете кому доверить строительство дома? Мы можем помочь! Подберем для вас из сотен наших партнеров несколько компаний с лучшем соотношением цена/качество под конкретно ваш запрос.
Подобрать