Главная Проекты домов Проект просторного двухэтажного дома из газобетона с четырьмя комнатами, гаражом и террасами на обоих уровнях

D4693 Проект просторного двухэтажного дома из газобетона с четырьмя комнатами, гаражом и террасами на обоих уровнях

Сравнить проект В избранное
Проект просторного двухэтажного дома из газобетона с четырьмя комнатами, гаражом и террасами на обоих уровнях / 1
Проект просторного двухэтажного дома из газобетона с четырьмя комнатами, гаражом и террасами на обоих уровнях / 2
Проект просторного двухэтажного дома из газобетона с четырьмя комнатами, гаражом и террасами на обоих уровнях / 3
Проект просторного двухэтажного дома из газобетона с четырьмя комнатами, гаражом и террасами на обоих уровнях / 4
Проект просторного двухэтажного дома из газобетона с четырьмя комнатами, гаражом и террасами на обоих уровнях / 5
Проект просторного двухэтажного дома из газобетона с четырьмя комнатами, гаражом и террасами на обоих уровнях / 1
Проект просторного двухэтажного дома из газобетона с четырьмя комнатами, гаражом и террасами на обоих уровнях / 2
Проект просторного двухэтажного дома из газобетона с четырьмя комнатами, гаражом и террасами на обоих уровнях / 3
Проект просторного двухэтажного дома из газобетона с четырьмя комнатами, гаражом и террасами на обоих уровнях / 4
Проект просторного двухэтажного дома из газобетона с четырьмя комнатами, гаражом и террасами на обоих уровнях / 5
D4693
305 м²
Технические характеристики
Общие
Материал стен
Газобетон
Общая площадь
305 м²
Площадь застройки
258.2 м²
Приведенная площадь
308.03 м²
Количество жилых комнат/спален
4
Этажи
2 этажа
Гараж
Встроенный гараж
Количество машин
2
Подвал / цокольный этаж
Без подвала
Длина дома
11.26 м
Ширина дома
21.71 м
Высота в коньке
9.3 м
Кровля
Металлочерепица
Облицовка внешних стен
Мокрая штукатурка
Толщина несущих наружных стен
380 мм
Межэтажные перекрытия
Монолитные
Внутренние не несущие перегородки
Газобетонные
Фундамент
Ленточный заглубленный из ФБС
Терраса
Терраса открытая
,
Терраса крытая
Дополнительные
Окна
Окна до пола
,
Панорамные окна
,
Окна с французским балконом
Площадь гостиной
42.2 м²
Площадь кухни
19 м²
Количество санузлов
2
Окно в ванной комнате
Есть
Котельная
Есть
Кабинет
Есть
Хозяйская гардеробная
Есть
Кладовая
2
Длина участка
21.26 м
Ширина участка
29.71 м
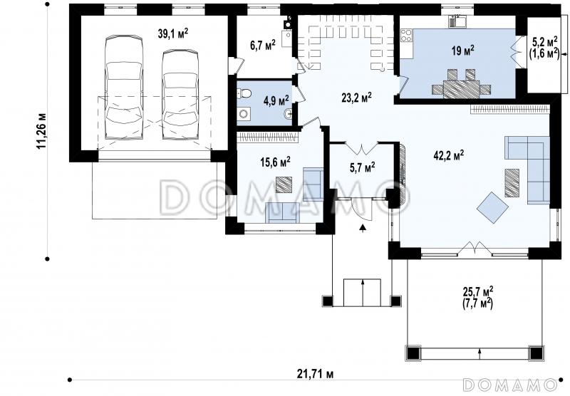
Планы помещений
Описание проекта
Компания Domamo предлагает проект просторного двухэтажного дома из газобетона с четырьмя комнатами, гаражом и террасами на обоих уровнях D4693. Общая площадь - 305 м2, размер - 11.26х21.71 м. Фундамент - ленточный заглубленный из фбс, кровля - металлочерепица, внешняя отделка - мокрая штукатурка. Для заказа проекта или внесения изменений свяжитесь с нами с помощью форм обратной связи на сайте или по телефону +7 (343) 357-92-70.
Категории проекта: с гаражом для постоянного проживания пенобетон от 300 до 400 кв.м в европейском стиле с террасой из газобетона в немецком стиле из газобетона готовые из газобетона с гаражом двухэтажные двухэтажные с гаражом с котельной двухэтажные из газобетона из газосиликатных блоков двухэтажные из пеноблоков из пеноблоков с гаражом загородные из керамзитобетонных блоков с гардеробной прямоугольные со встроенным гаражом с панорамным остеклением из газобетона с террасой из блоков двухэтажные из блоков из блоков с гаражом из пеноблоков с террасой загородные из газобетона Проекты двухэтажных домов с террасой Проекты двухэтажных домов с верандой с кабинетом с гаражом под одной крышей с гаражом на 2 машины с гаражом и террасой двухэтажные с террасой и гаражом с 4 спальнями с панорамными окнами и террасой из пеноблоков загородные двухэтажные с панорамными окнами двухэтажные с 4 спальнями из газобетона от 300 до 400 кв.м из газобетона в европейском стиле из газобетона с панорамными окнами из газобетона с котельной из газобетона прямоугольные из газобетона готовые из газобетона с большой кухней из газобетона с четырьмя спальнями из газобетона с кабинетом из газобетона для постоянного проживания двухэтажные из газобетона с гаражом двухэтажные из газобетона с террасой двухэтажные из газобетона с кабинетом двухэтажные из газобетона с котельной двухэтажные из газобетона в европейском стиле двухэтажные из газобетона с вальмовой крышей двухэтажные из газобетона большие двухэтажные из газобетона без подвала двухэтажные из газобетона с 4 спальнями двухэтажные из газобетона с большой гостиной европейские для постоянного проживания европейские дорогие европейские готовые европейские с гаражом европейские с гаражом на 2 машины европейские без подвала европейские с террасой европейские с 2 санузлами европейские с котельной европейские с кабинетом европейские с кладовой европейские прямоугольные европейские с панорамными окнами европейские с окнами в пол европейские с вальмовой крышей европейские 300-400 м2 из пеноблоков в европейском стиле из пеноблоков с вальмовой крышей из пеноблоков с окнами до пола из пеноблоков с панорамными окнами из пеноблоков прямоугольные из пеноблоков для постоянного проживания из пеноблоков готовые из пеноблоков от 300 до 400 м2 из пеноблоков большие из пеноблоков с 4 спальнями из пеноблоков с большой гостиной из пеноблоков с большой кухней недорогие с панорамными окнами из клееного бруса без гаража Показать все категории Скрыть категории

Похожие проекты
Состав проекта
Входит в стоимость
Цена, руб. Сроки, дней
Комплект архитектурно-строительных чертежей (АС) Входит в стоимость Готов к отправке
Готово к продаже
Цена, руб. Сроки, дней
Паспорт рабочего проекта 8 000 ₽ 5 рабочих дней в корзину
Инженерные разделы: ВК + ОВ + ЭО 52 050 ₽ Готов к отправке в корзину
Дополнительная копия проекта формата А3 6 500 ₽ 5 рабочих дней в корзину
Электронная копия проекта (скан распечатанной версии) 4 000 ₽ 3 рабочих дня в корзину
Разрабатывается отдельно
Цена, руб. Сроки, дней
Адаптация фундамента (изменение типа фундамента) по запросу 14 рабочих дней
Дизайн интерьера (стоимость от 2200руб. за квад.метр площади) по запросу 30 рабочих дней
Внесение изменений в проект по запросу 20 рабочих дней
Разработка Генплана участка, в масштабе 1:250 7 500 ₽ 15 рабочих дней в корзину
Фэншуй дома 20 000 ₽ 14 рабочих дней в корзину
Фэншуй участка 15 000 ₽ 14 рабочих дней в корзину
Фэншуй полная консультация дом+участок с выездом на объект 100 000 ₽ 30 рабочих дней в корзину
Опции проекта вы можете заказать в корзине при оформлении заказа
Предложения строителей Свердловская область
Подбор строительной компании
Не знаете кому доверить строительство дома? Мы можем помочь! Подберем для вас из сотен наших партнеров несколько компаний с лучшем соотношением цена/качество под конкретно ваш запрос.
Подобрать
Посмотреть еще 3 компании Свернуть
Отзывы покупателей
Рейтинг покупателей
0 / 5 5 5 1
На основе 1 оценок покупателей
0%
0%
0%
0%
0%
Отзывы о проекте D4693
Отзыв о проекте D4693
Чтобы оставить отзыв, пожалуйста авторизуйтесь.
Подбор строительной компании
Не знаете кому доверить строительство дома? Мы можем помочь! Подберем для вас из сотен наших партнеров несколько компаний с лучшем соотношением цена/качество под конкретно ваш запрос.
Подобрать