Главная Проекты домов Проект двухэтажного дома с верандой, 4 спальнями, кухней-гостиной и местами для хранения

D4896 Проект двухэтажного дома с верандой, 4 спальнями, кухней-гостиной и местами для хранения

Сравнить проект В избранное
Технические характеристики
Общие
Материал стен
Газобетон
Общая площадь
202 м²
Площадь застройки
156.4 м²
Приведенная площадь
198.25 м²
Количество жилых комнат/спален
5
Этажи
2 этажа
Гараж
Нет гаража
Подвал / цокольный этаж
Без подвала
Длина дома
9.85 м
Ширина дома
9.14 м
Высота в коньке
9.096 м
Кровля
Оцинкованный стальной лист профилированный
Облицовка внешних стен
Облицовочный кирпич
Межэтажные перекрытия
Монолитные
Внутренние не несущие перегородки
Газобетонные
Фундамент
Монолитная ж/бетонная плита
Терраса
Терраса застекленная (веранда)
Дополнительные
Окна
Окна до пола
,
Панорамные окна
Сауна/баня внутри
Нет
Площадь гостиной
17.2 м²
Площадь кухни
17 м²
Количество санузлов
2
Окно в ванной комнате
Есть
Котельная
Есть
Кабинет
Есть
Постирочная
Есть
Кладовая
2
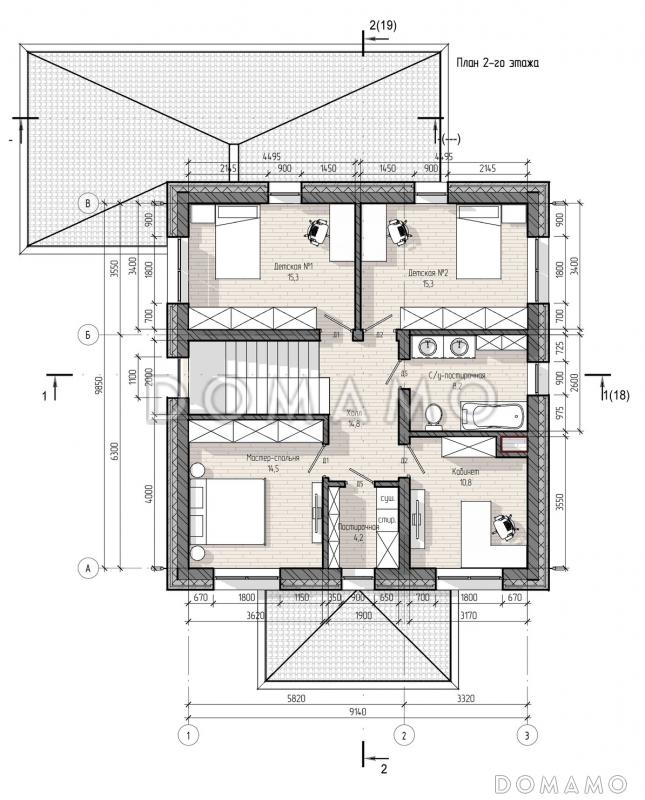
Планы помещений
Фасады
Описание проекта
Компания Domamo предлагает проект двухэтажного дома с верандой, 4 спальнями, кухней-гостиной и местами для хранения D4896. Общая площадь - 202 м2, размер - 9.85х9.14 м. Фундамент - монолитная ж/бетонная плита, кровля - оцинкованный стальной лист профилированный, внешняя отделка - облицовочный кирпич. Для заказа проекта или внесения изменений свяжитесь с нами с помощью форм обратной связи на сайте или по телефону +7 (343) 357-92-70.
Категории проекта: для постоянного проживания пенобетон современные от 200 до 300 кв.м в европейском стиле с террасой из газобетона готовые двухэтажные с котельной двухэтажные из газобетона из газосиликатных блоков двухэтажные из пеноблоков 6х10 9х10 9х12 загородные с четырехскатной крышей из керамзитобетонных блоков прямоугольные с верандой с панорамным остеклением из газобетона с террасой из блоков двухэтажные из блоков из пеноблоков с террасой загородные из газобетона Проекты двухэтажных домов с террасой Проекты двухэтажных домов с верандой без гаража облицованные кирпичом с кабинетом с панорамными окнами и террасой из пеноблоков загородные с 5 спальнями от 200 до 250 м двухэтажные 10 x 10 двухэтажные с панорамными окнами двухэтажные в современном стиле двухэтажные без гаража из газобетона от 200 до 300 кв.м из газобетона с четырехскатной крышей из газобетона современные из газобетона с панорамными окнами из газобетона с котельной из газобетона прямоугольные из газобетона готовые из газобетона с большой кухней из газобетона с кабинетом из газобетона 9х10 из газобетона для постоянного проживания двухэтажные из газобетона без гаража двухэтажные из газобетона с террасой двухэтажные из газобетона с прачечной двухэтажные из газобетона с кабинетом двухэтажные из газобетона с котельной двухэтажные из газобетона современные двухэтажные из газобетона с четырехскатной крышей двухэтажные из газобетона без подвала современные без гаража современные с панорамными окнами современные с окнами в пол современные с террасой современные 9х10 европейские 8х9 европейские 9х10 из пеноблоков в современном стиле из пеноблоков с четырехскатной крышей из пеноблоков с окнами до пола из пеноблоков с панорамными окнами из пеноблоков прямоугольные из пеноблоков для постоянного проживания из пеноблоков готовые из пеноблоков 9х10 из пеноблоков от 200 до 300 м2 из пеноблоков с большой кухней недорогие двухэтажные недорогие без гаража недорогие с террасой недорогие для постоянного проживания недорогие с четырехскатной крышей недорогие с окнами до пола недорогие с панорамными окнами недорогие без бани недорогие с кабинетом недорогие с котельной недорогие прямоугольные недорогие 9х10 недорогие от 200 до 300 м2 из клееного бруса без гаража Показать все категории Скрыть категории

Похожие проекты
Состав проекта
Входит в стоимость
Цена, руб. Сроки, дней
Комплект архитектурно-строительных чертежей (АС) Входит в стоимость 3 рабочих дня
Разрабатывается отдельно
Цена, руб. Сроки, дней
Адаптация фундамента (изменение типа фундамента) по запросу 14 рабочих дней
Дизайн интерьера (стоимость от 2200руб. за квад.метр площади) по запросу 30 рабочих дней
Внесение изменений в проект по запросу 20 рабочих дней
Фэншуй дома 20 000 ₽ 14 рабочих дней в корзину
Фэншуй участка 15 000 ₽ 14 рабочих дней в корзину
Фэншуй полная консультация дом+участок с выездом на объект 100 000 ₽ 30 рабочих дней в корзину
Опции проекта вы можете заказать в корзине при оформлении заказа
Предложения строителей Выбрать регион
Минимальная
6 740 500 ₽
Стандарт
8 326 500 ₽
Под чистовую отделку
10 903 750 ₽
Показать подробные комплектации
Минимальная
16 851 250 ₽
Стандарт
19 825 000 ₽
Под чистовую отделку
25 772 500 ₽
Показать подробные комплектации
Минимальная
8 972 795 ₽
Стандарт
13 314 470 ₽
Под чистовую отделку
21 129 485 ₽
Показать подробные комплектации
Минимальная
6 938 750 ₽
Стандарт
8 326 500 ₽
Под чистовую отделку
9 317 750 ₽
Показать подробные комплектации
Минимальная
6 398 717 ₽
Стандарт
9 391 102 ₽
Под чистовую отделку
10 047 310 ₽
Показать подробные комплектации
Минимальная
5 828 550 ₽
Стандарт
6 661 200 ₽
Под чистовую отделку
8 742 825 ₽
Показать подробные комплектации
Подбор строительной компании
Не знаете кому доверить строительство дома? Мы можем помочь! Подберем для вас из сотен наших партнеров несколько компаний с лучшем соотношением цена/качество под конкретно ваш запрос.
Подобрать
Посмотреть еще 32 компании Свернуть
Отзывы покупателей
Рейтинг покупателей
0 / 5 5 5 1
На основе 1 оценок покупателей
0%
0%
0%
0%
0%
Отзывы о проекте D4896
Отзыв о проекте D4896
Чтобы оставить отзыв, пожалуйста авторизуйтесь.
Подбор строительной компании
Не знаете кому доверить строительство дома? Мы можем помочь! Подберем для вас из сотен наших партнеров несколько компаний с лучшем соотношением цена/качество под конкретно ваш запрос.
Подобрать