Главная Проекты домов Проект загородного дома с подвалом, гаражом на две машины, панорамным остеклением гостиной

D4921 Проект загородного дома с подвалом, гаражом на две машины, панорамным остеклением гостиной

Сравнить проект В избранное
Технические характеристики
Общие
Материал стен
Кирпич
Общая площадь
407 м²
Жилая площадь
86.9 м²
Площадь застройки
392.1 м²
Приведенная площадь
379.61 м²
Количество жилых комнат/спален
4
Этажи
1 этаж
Гараж
Нет гаража
Количество машин
2
Подвал / цокольный этаж
Без окон
Длина дома
19.01 м
Ширина дома
16.91 м
Кровля
Металлочерепица
Облицовка внешних стен
Мокрая штукатурка
Толщина несущих наружных стен
380 мм
Межэтажные перекрытия
Монолитные
Фундамент
Ленточный монолитный
Терраса
Терраса крытая
Дополнительные
Окна
Окна до пола
,
Панорамные окна
Камин
Есть
Сауна/баня внутри
Нет
Площадь гостиной
39.2 м²
Площадь кухни
9.2 м²
Количество санузлов
4
Окно в ванной комнате
Есть
Хозяйский санузел
Есть
Хозяйская гардеробная
Есть
Кладовая
5
Длина участка
29.01 м
Ширина участка
26.91 м
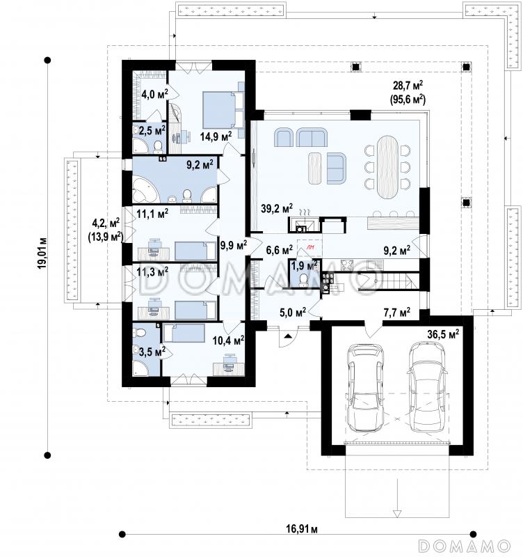
Планы помещений
Описание проекта
Компания Domamo предлагает проект загородного дома с подвалом, гаражом на две машины, панорамным остеклением гостиной D4921. Общая площадь - 407 м2, размер - 19.01х16.91 м. Фундамент - ленточный монолитный, кровля - металлочерепица, внешняя отделка - мокрая штукатурка. Для заказа проекта или внесения изменений свяжитесь с нами с помощью форм обратной связи на сайте или по телефону +7 (343) 357-92-70.
Категории проекта: для постоянного проживания кирпич современные от 400 до 500 кв.м в европейском стиле с террасой из кирпича с террасой готовые с цокольным этажом загородные из кирпича одноэтажные из кирпича одноэтажные кирпичные с цоколем одноэтажные из кирпича с подвалом одноэтажные кирпичные с подвалом одноэтажные с подвалом с подвалом загородные с четырехскатной крышей с камином с гардеробной прямоугольные с панорамным остеклением современные кирпичные Проекты одноэтажных домов с террасой Типовые проекты загородных одноэтажных домов без гаража одноэтажные без гаража с террасой и камином одноэтажные с 4 спальнями с 4 спальнями с панорамными окнами и террасой большие одноэтажные современные одноэтажные с четырехскатной крышей одноэтажные прямоугольные одноэтажные с панорамными окнами одноэтажные с окнами в пол одноэтажные с камином одноэтажные из кирпича с террасой одноэтажные из кирпича с 4 спальнями с четырехскатной крышей готовые для постоянного проживания с камином без гаража с гаражом на 2 машины современные с панорамными окнами прямоугольные с большой гостиной современные без гаража современные с панорамными окнами современные с окнами в пол современные с террасой современные большие современные с подвалом большие готовые большие с четырехскатной крышей большие прямоугольные большие с камином большие с окном в ванной комнате большие с панорамными окнами большие с окнами в пол большие без гаража большие с террасой большие с мастер-спальней большие с 4 спальнями недорогие с панорамными окнами из клееного бруса без гаража Показать все категории Скрыть категории

Похожие проекты
Состав проекта
Входит в стоимость
Цена, руб. Сроки, дней
Комплект архитектурно-строительных чертежей (АС) Входит в стоимость Готов к отправке
Готово к продаже
Цена, руб. Сроки, дней
Паспорт рабочего проекта 8 000 ₽ 5 рабочих дней в корзину
Инженерные разделы: ВК + ОВ + ЭО 17 000 ₽ Готов к отправке в корзину
Дополнительная копия проекта формата А3 6 500 ₽ 5 рабочих дней в корзину
Электронная копия проекта (скан распечатанной версии) 4 000 ₽ 3 рабочих дня в корзину
Разрабатывается отдельно
Цена, руб. Сроки, дней
Адаптация фундамента (изменение типа фундамента) по запросу 14 рабочих дней
Дизайн интерьера (стоимость от 2200руб. за квад.метр площади) по запросу 30 рабочих дней
Внесение изменений в проект по запросу 20 рабочих дней
Разработка Генплана участка, в масштабе 1:250 7 500 ₽ 15 рабочих дней в корзину
Фэншуй дома 20 000 ₽ 14 рабочих дней в корзину
Фэншуй участка 15 000 ₽ 14 рабочих дней в корзину
Фэншуй полная консультация дом+участок с выездом на объект 100 000 ₽ 30 рабочих дней в корзину
Опции проекта вы можете заказать в корзине при оформлении заказа
Предложения строителей Выбрать регион
Минимальная
13 286 350 ₽
Стандарт
16 323 230 ₽
Под чистовую отделку
21 258 160 ₽
Показать подробные комплектации
Минимальная
30 976 176 ₽
Стандарт
36 442 560 ₽
Под чистовую отделку
47 375 328 ₽
Показать подробные комплектации
Минимальная
14 941 449 ₽
Стандарт
21 945 254 ₽
Под чистовую отделку
34 552 102 ₽
Показать подробные комплектации
Минимальная
13 689 875 ₽
Стандарт
15 719 270 ₽
Под чистовую отделку
20 127 225 ₽
Показать подробные комплектации
Минимальная
6 381 661 ₽
Стандарт
7 902 683 ₽
Под чистовую отделку
9 511 849 ₽
Показать подробные комплектации
Подбор строительной компании
Не знаете кому доверить строительство дома? Мы можем помочь! Подберем для вас из сотен наших партнеров несколько компаний с лучшем соотношением цена/качество под конкретно ваш запрос.
Подобрать
Посмотреть еще 20 компаний Свернуть
Отзывы покупателей
Рейтинг покупателей
0 / 5 5 5 1
На основе 1 оценок покупателей
0%
0%
0%
0%
0%
Отзывы о проекте D4921
Отзыв о проекте D4921
Чтобы оставить отзыв, пожалуйста авторизуйтесь.
Подбор строительной компании
Не знаете кому доверить строительство дома? Мы можем помочь! Подберем для вас из сотен наших партнеров несколько компаний с лучшем соотношением цена/качество под конкретно ваш запрос.
Подобрать