Главная Проекты домов Проект двухэтажного дома с кабинетом, зоной кухни с окном, гостиной с выходом на крытую террасу

D4922 Проект двухэтажного дома с кабинетом, зоной кухни с окном, гостиной с выходом на крытую террасу

Сравнить проект В избранное
Технические характеристики
Общие
Материал стен
Кирпич
Общая площадь
116 м²
Жилая площадь
68.46 м²
Площадь застройки
137.30 м²
Приведенная площадь
113.76 м²
Количество жилых комнат/спален
4
Этажи
2 этажа
Гараж
Нет гаража
Подвал / цокольный этаж
Без подвала
Длина дома
13.31 м
Ширина дома
12.96 м
Кровля
Металлочерепица
Облицовка внешних стен
Деревянная вагонка
,
Мокрая штукатурка
,
Облицовочный кирпич
Толщина несущих наружных стен
380 мм
Межэтажные перекрытия
Монолитные
Фундамент
Ленточный монолитный
Терраса
Терраса крытая
Дополнительные
Окна
Окна до пола
Камин
Есть
Сауна/баня внутри
Нет
Площадь гостиной
22.1 м²
Площадь кухни
10.9 м²
Количество санузлов
1
Окно в ванной комнате
Есть
Котельная
Есть
Кабинет
Есть
Хозяйская гардеробная
Есть
Кладовая
1
Длина участка
23.31 м
Ширина участка
18.96 м
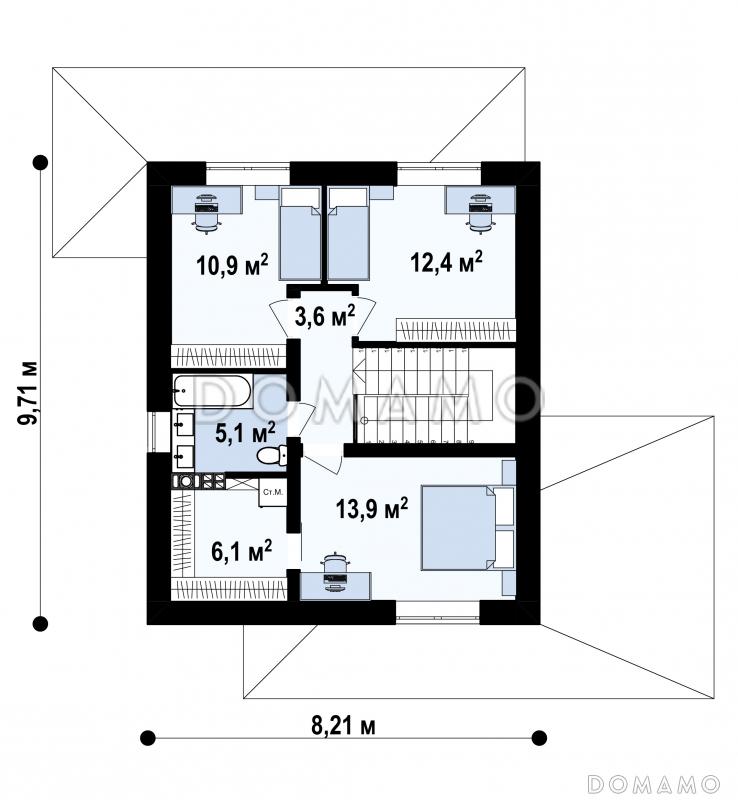
Планы помещений
Описание проекта
Компания Domamo предлагает проект двухэтажного дома с кабинетом, зоной кухни с окном, гостиной с выходом на крытую террасу D4922. Общая площадь - 116 м2, размер - 13.31х12.96 м. Фундамент - ленточный монолитный, кровля - металлочерепица, внешняя отделка - облицовочный кирпич деревянная вагонка мокрая штукатурка. Для заказа проекта или внесения изменений свяжитесь с нами с помощью форм обратной связи на сайте или по телефону +7 (343) 357-92-70.
Категории проекта: для постоянного проживания кирпич современные от 100 до 200 кв.м в европейском стиле с террасой из кирпича с террасой готовые загородные из кирпича двухэтажные из кирпича двухэтажные кирпичные площадью до 150 кв. м. кирпичные с котельной с котельной кирпичные до 200 кв.м до 120 кв.м до 150 кв.м до 200 кв.м загородные с четырехскатной крышей с камином с гардеробной прямоугольные современные кирпичные Проекты двухэтажных домов с террасой Проекты двухэтажных домов с верандой без гаража с террасой и камином облицованные кирпичом с кабинетом двухэтажные до 150 кв м двухэтажные 200 кв м с 4 спальнями до 140 кв м до 130 кв м двухэтажные до 130 кв.м двухэтажные до 120 кв.м двухэтажные до 180 кв.м двухэтажные с камином двухэтажные с 4 спальнями двухэтажные в современном стиле двухэтажные до 150 кв.м с террасой двухэтажные без гаража современные без гаража современные с окнами в пол современные с террасой современные небольшие современные до 120 кв. м современные до 150 кв. м современные от 100 до 200 кв. м до 120 кв.м кирпичные до 120 кв.м готовые до 120 кв.м для постоянного проживания до 120 кв.м без гаража до 120 кв.м с четырехскатной крышей до 120 кв.м с окнами в пол до 120 кв.м с террасой до 120 кв.м с котельной до 120 кв.м с кабинетом до 120 кв.м с 4 спальнями до 120 кв.м прямоугольные до 150 кв.м для постоянного проживания до 150 кв.м без гаража до 150 кв.м с четырехскатной крышей до 150 кв.м с окнами до пола до 150 кв.м готовые до 150 кв.м прямоугольные до 150 кв.м с котельной до 150 кв.м с кабинетом до 150 кв.м без бани до 150 кв.м с террасой до 150 кв.м без подвала до 150 кв.м с 4 спальнями до 150 кв.м с камином из клееного бруса без гаража Показать все категории Скрыть категории

Похожие проекты
Состав проекта
Входит в стоимость
Цена, руб. Сроки, дней
Комплект архитектурно-строительных чертежей (АС) Входит в стоимость Готов к отправке
Готово к продаже
Цена, руб. Сроки, дней
Паспорт рабочего проекта 8 000 ₽ 5 рабочих дней в корзину
Инженерные разделы: ВК + ОВ + ЭО 16 325 ₽ Готов к отправке в корзину
Дополнительная копия проекта формата А3 6 500 ₽ 5 рабочих дней в корзину
Электронная копия проекта (скан распечатанной версии) 4 000 ₽ 3 рабочих дня в корзину
Разрабатывается отдельно
Цена, руб. Сроки, дней
Адаптация фундамента (изменение типа фундамента) по запросу 14 рабочих дней
Дизайн интерьера (стоимость от 2200руб. за квад.метр площади) по запросу 30 рабочих дней
Внесение изменений в проект по запросу 20 рабочих дней
Разработка Генплана участка, в масштабе 1:250 7 500 ₽ 15 рабочих дней в корзину
Фэншуй дома 20 000 ₽ 14 рабочих дней в корзину
Фэншуй участка 15 000 ₽ 14 рабочих дней в корзину
Фэншуй полная консультация дом+участок с выездом на объект 100 000 ₽ 30 рабочих дней в корзину
Опции проекта вы можете заказать в корзине при оформлении заказа
Варианты проекта Сравнить все варианты
Избранные проекты
Избранные строители
Предложения строителей Выбрать регион
Минимальная
3 981 600 ₽
Стандарт
4 891 680 ₽
Под чистовую отделку
6 370 560 ₽
Показать подробные комплектации
Минимальная
11 603 520 ₽
Стандарт
13 651 200 ₽
Под чистовую отделку
17 746 560 ₽
Показать подробные комплектации
Минимальная
6 006 528 ₽
Стандарт
8 822 088 ₽
Под чистовую отделку
13 890 096 ₽
Показать подробные комплектации
Минимальная
4 558 363 ₽
Стандарт
5 234 097 ₽
Под чистовую отделку
6 701 829 ₽
Показать подробные комплектации
Минимальная
2 656 153 ₽
Стандарт
3 289 228 ₽
Под чистовую отделку
3 958 990 ₽
Показать подробные комплектации
Подбор строительной компании
Не знаете кому доверить строительство дома? Мы можем помочь! Подберем для вас из сотен наших партнеров несколько компаний с лучшем соотношением цена/качество под конкретно ваш запрос.
Подобрать
Посмотреть еще 20 компаний Свернуть
Отзывы покупателей
Рейтинг покупателей
0 / 5 5 5 1
На основе 1 оценок покупателей
0%
0%
0%
0%
0%
Отзывы о проекте D4922
Отзыв о проекте D4922
Чтобы оставить отзыв, пожалуйста авторизуйтесь.
Подбор строительной компании
Не знаете кому доверить строительство дома? Мы можем помочь! Подберем для вас из сотен наших партнеров несколько компаний с лучшем соотношением цена/качество под конкретно ваш запрос.
Подобрать