Главная Проекты домов Проект загородного дома из СИП панелей с мансардой и навесом для машины

D5023 Проект загородного дома из СИП панелей с мансардой и навесом для машины

Сравнить проект В избранное
Проект загородного дома из СИП панелей с мансардой и навесом для машины / 1
Проект загородного дома из СИП панелей с мансардой и навесом для машины / 2
Проект загородного дома из СИП панелей с мансардой и навесом для машины / 1
Проект загородного дома из СИП панелей с мансардой и навесом для машины / 2
D5023
149 м²
Подготовка проекта:
25 рабочих дней
Стоимость проекта
Купить проект
Задайте вопросы по проекту нашему архитектору
8 (800) 200-28-83
Время работы: пн-вс: с 9:00 до 20:00
Задать вопрос по проекту

Технические характеристики
Общие
Материал стен
SIP
Общая площадь
149 м²
Жилая площадь
81.3 м²
Приведенная площадь
147.84 м²
Количество жилых комнат/спален
4
Этажи
1 этаж + мансарда
Гараж
Пристроенный навес
Количество машин
1
Подвал / цокольный этаж
Без подвала
Длина дома
12.5 м
Ширина дома
11.0 м
Высота в коньке
8.4 м
Кровля
Гибкая черепица
Облицовка внешних стен
Мокрая штукатурка
,
Облицовка камнем
Толщина несущих наружных стен
375-400 мм
Межэтажные перекрытия
По деревянным балкам
Внутренние не несущие перегородки
Каркасно-обшивные
Фундамент
Монолитная ж/бетонная плита
Терраса
Терраса крытая
Дополнительные
Окна
Окна до пола
Мансардные окна
Есть
Камин
Есть
Сауна/баня внутри
Нет
Площадь гостиной
21.6 м²
Площадь кухни
11.4 м²
Количество санузлов
3
Котельная
Есть
Хозяйский санузел
Есть
Хозяйская гардеробная
Есть
Кладовая
1
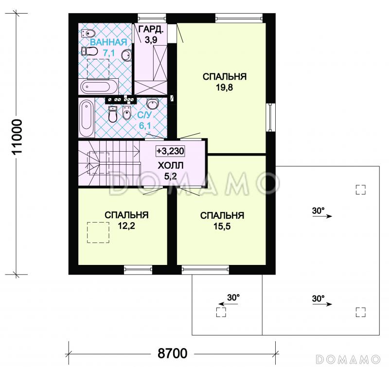
Планы помещений
Фасады
Описание проекта

Лаконичный коттедж с четырьмя спальнями подойдет для семьи из 4-5 человек. Здание строится из газобетона, фасад декорируется частичной облицовкой вагонкой и камнем. Крыльцо оформлено невысокими ступеньками под крышей, которая сбоку здания переходит в навес для автомобиля.

Из тамбура двери ведут ведут в просторную прихожую с окном. Далее с одной стороны располагается гостиная, с другой - холл, спальня, кухня и котельная. На мансардном этаже размещаются 2 спальни, ванная и мастер-спальня.

Преимущества и особенности:

  • в хозяйской спальне предусмотрена гардеробная с окном и ванная,

  • в комнате на первом этаже можно с комфортом поселить гостей или членов семьи, которым сложно подниматься по лестнице,

  • планировка прихожей и тамбура позволяет свободно разместить там три габаритных шкафа.

Категории проекта: с мансардой с гаражом с мансардой и гаражом для постоянного проживания из сип панелей современные по технологии Velox от 100 до 200 кв.м в европейском стиле с террасой готовые одноэтажные с гаражом одноэтажные с мансардой одноэтажные до 150 кв. м. одноэтажные с котельной с котельной из сип панелей с гаражом из сип панелей с мансардой одноэтажные с гаражом и мансардой до 150 кв.м до 200 кв.м с двухскатной крышей 9х12 загородные с камином с гардеробной прямоугольные 10х12 с навесом для машины Проекты одноэтажных домов из сип панелей Проекты одноэтажных домов с террасой Типовые проекты загородных одноэтажных домов с террасой и камином с гаражом под одной крышей одноэтажные с 4 спальнями одноэтажные с гаражом и террасой с мансардой до 150 кв м с мансардой и террасой полутораэтажные каменные с гаражом и террасой с 4 спальнями 9 на 12 с мансардой одноэтажные до 200 кв м 10x12 с мансардой одноэтажные с мансардными окнами с мансардой с котельной с мансардой с камином с мансардой с двухскатной крышей с мансардой современные с мансардой с окнами до пола с мансардой с мансардными окнами с мансардой прямоугольные с мансардой готовые с мансардой для постоянного проживания с мансардой до 200 кв.м с мансардой от 100 до 150 кв.м одноэтажные с мансардой из SIP-панелей одноэтажные с мансардой для постоянного проживания одноэтажные с мансардой с изолированной кухней одноэтажные с мансардой современные современные с двухскатной крышей современные с окнами в пол современные с террасой современные до 150 кв. м современные от 100 до 200 кв. м до 150 кв.м из SIP-панелей до 150 кв.м для постоянного проживания до 150 кв.м с двухскатной крышей до 150 кв.м с окнами до пола до 150 кв.м готовые до 150 кв.м с мансардными окнами до 150 кв.м прямоугольные до 150 кв.м с котельной до 150 кв.м с изолированной кухней до 150 кв.м с мастер-спальней до 150 кв.м без бани до 150 кв.м с террасой до 150 кв.м без подвала до 150 кв.м с 4 спальнями до 150 кв.м с камином из клееного бруса без гаража Показать все категории Скрыть категории

Похожие проекты
Состав проекта
Входит в стоимость
Цена, руб. Сроки, дней
Комплект архитектурно-строительных чертежей (АС) Входит в стоимость 25 рабочих дней
Готово к продаже
Цена, руб. Сроки, дней
Инженерные разделы: ВК + ОВ + ЭО 23 000 ₽ 3 рабочих дня в корзину
Электронная копия проекта (скан распечатанной версии) 4 000 ₽ 3 рабочих дня в корзину
Разрабатывается отдельно
Цена, руб. Сроки, дней
Адаптация фундамента (изменение типа фундамента) по запросу 14 рабочих дней
Дизайн интерьера (стоимость от 2200руб. за квад.метр площади) по запросу 30 рабочих дней
Внесение изменений в проект по запросу 20 рабочих дней
Фэншуй дома 20 000 ₽ 14 рабочих дней в корзину
Фэншуй участка 15 000 ₽ 14 рабочих дней в корзину
Фэншуй полная консультация дом+участок с выездом на объект 100 000 ₽ 30 рабочих дней в корзину
Опции проекта вы можете заказать в корзине при оформлении заказа
Отзывы покупателей
Рейтинг покупателей
0 / 5 5 5 1
На основе 1 оценок покупателей
0%
0%
0%
0%
0%
Отзывы о проекте D5023
Отзыв о проекте D5023
Чтобы оставить отзыв, пожалуйста авторизуйтесь.
Подбор строительной компании
Не знаете кому доверить строительство дома? Мы можем помочь! Подберем для вас из сотен наших партнеров несколько компаний с лучшем соотношением цена/качество под конкретно ваш запрос.
Подобрать