Главная Проекты домов Проект одноэтажного дома из клееного бруса с многоуровневой кровлей

D511 Проект одноэтажного дома из клееного бруса с многоуровневой кровлей

Сравнить проект В избранное
Проект одноэтажного дома из клееного бруса с многоуровневой кровлей / 1
Проект одноэтажного дома из клееного бруса с многоуровневой кровлей / 2
Проект одноэтажного дома из клееного бруса с многоуровневой кровлей / 1
Проект одноэтажного дома из клееного бруса с многоуровневой кровлей / 2
D511
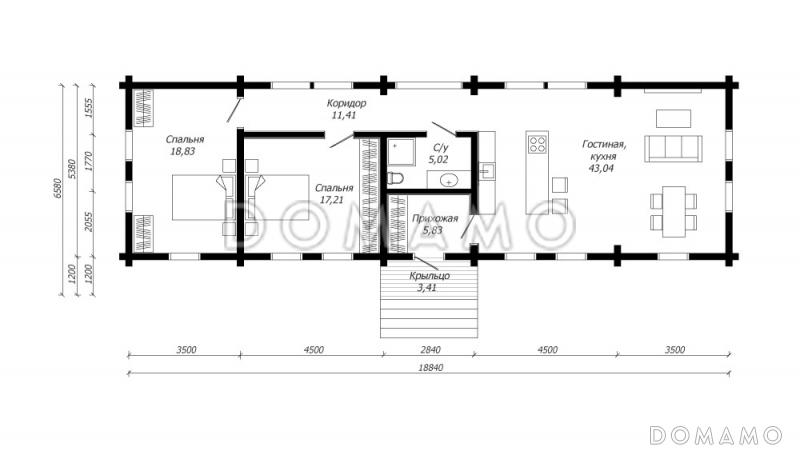
104 м²
Проект с подрядом
Артикул проекта: МЭТИСОН
Компания: Ecohouse Group
Стоимость строительства
4 385 000 ₽
Заказать подробную смету
+7 (812) XXX-XX-XX Показать телефон
Задать вопрос по проекту
Технические характеристики
Общие
Материал стен
Клееный брус
Общая площадь
104 м²
Приведенная площадь
102.22 м²
Количество жилых комнат/спален
2
Этажи
1 этаж
Гараж
Нет гаража
Подвал / цокольный этаж
Без подвала
Длина дома
18.8 м
Ширина дома
6.5 м
Кровля
Металлочерепица
Толщина несущих наружных стен
160 мм
Межэтажные перекрытия
По деревянным балкам
Внутренние не несущие перегородки
Каркасно-обшивные
Терраса
Без террасы
Дополнительные
Сауна/баня внутри
Нет
Площадь гостиной
30 м²
Площадь кухни
13 м²
Количество санузлов
1
Дом для узких участков
Есть
Планы помещений
Описание проекта
Компания Domamo предлагает проект одноэтажного дома из клееного бруса с многоуровневой кровлей D511. Общая площадь - 104 м2, размер - 18.8х6.5 м. Фундамент - , кровля - металлочерепица, внешняя отделка - . Для заказа проекта или внесения изменений свяжитесь с нами с помощью форм обратной связи на сайте или по телефону +7 (343) 357-92-70.
Категории проекта: деревянные для постоянного проживания из клееного бруса для узких участков дачные дома от 100 до 200 кв.м одноэтажные одноэтажные до 150 кв. м. одноэтажные деревянные до 120 кв.м до 150 кв.м до 200 кв.м загородные с четырехскатной крышей узкие прямоугольные в стиле эклектика дачные деревянные Проекты одноэтажных домов из клееного бруса дачные одноэтажные Типовые проекты загородных одноэтажных домов без гаража одноэтажные без гаража с односкатной крышей деревянные для круглогодичного проживания одноэтажные с 2 спальнями одноэтажные до 120 кв.м одноэтажные для узких участков одноэтажные до 200 кв м до 140 кв м до 130 кв м одноэтажные в стиле эклектика одноэтажные с односкатной крышей одноэтажные с четырехскатной крышей одноэтажные прямоугольные одноэтажные до 180 м2 эклектика прямоугольные для постоянного проживания дачные для узких участков до 120 кв.м из клееного бруса до 120 кв.м с подрядом до 120 кв.м для постоянного проживания до 120 кв.м дачные до 120 кв.м без гаража до 120 кв.м с четырехскатной крышей до 120 кв.м без террасы до 120 кв.м эклектика до 120 кв.м с большой гостиной до 120 кв.м с 2 спальнями до 120 кв.м прямоугольные до 150 кв.м из клееного бруса до 150 кв.м для постоянного проживания до 150 кв.м дачные до 150 кв.м без гаража до 150 кв.м с односкатной крышей до 150 кв.м с четырехскатной крышей до 150 кв.м эклектика до 150 кв.м для узких участков до 150 кв.м с подрядом до 150 кв.м прямоугольные до 150 кв.м без бани до 150 кв.м без террасы до 150 кв.м без подвала до 150 кв.м с 2 спальнями до 150 кв.м с большой гостиной деревянные для узких участков деревянные в стиле эклектика деревянные прямоугольные деревянные без гаража деревянные с подрядом деревянные без подвала деревянные с 2 спальнями деревянные с большой гостиной деревянные до 120 кв.м деревянные до 150 кв.м деревянные от 100 до 200 м2 из клееного бруса проект с подрядом из клееного бруса для узких участков из клееного бруса дачный дом из клееного бруса для постоянного проживания из клееного бруса прямоугольный из клееного бруса в скандинавском стиле из клееного бруса в стиле эклектика из клееного бруса с односкатной крышей из клееного бруса с четырехскатной крышей из клееного бруса с каркасно-обшивными перегородками из клееного бруса с перекрытиями по деревянным балкам из клееного бруса с кровлей из металлочерепицы из клееного бруса без терассы из клееного бруса без подвала из клееного бруса без гаража из клееного бруса одноэтажные из клееного бруса от 100 до 200 м2 из клееного бруса с большой гостиной Проекты домов с подрядом Показать все категории Скрыть категории

Похожие проекты
Состав проекта
Входит в стоимость
Цена, руб. Сроки, дней
Комплект архитектурно-строительных чертежей (АС) Входит в стоимость Готов к отправке
Разрабатывается отдельно
Цена, руб. Сроки, дней
Адаптация фундамента (изменение типа фундамента) по запросу 14 рабочих дней
Дизайн интерьера (стоимость от 2200руб. за квад.метр площади) по запросу 30 рабочих дней
Внесение изменений в проект по запросу 20 рабочих дней
Фэншуй дома 20 000 ₽ 14 рабочих дней в корзину
Фэншуй участка 15 000 ₽ 14 рабочих дней в корзину
Фэншуй полная консультация дом+участок с выездом на объект 100 000 ₽ 30 рабочих дней в корзину
Опции проекта вы можете заказать в корзине при оформлении заказа
Комплектации
Отзывы покупателей
Рейтинг покупателей
0 / 5 5 5 1
На основе 1 оценок покупателей
0%
0%
0%
0%
0%
Отзывы о проекте D511
Отзыв о проекте D511
Чтобы оставить отзыв, пожалуйста авторизуйтесь.
Подбор строительной компании
Не знаете кому доверить строительство дома? Мы можем помочь! Подберем для вас из сотен наших партнеров несколько компаний с лучшем соотношением цена/качество под конкретно ваш запрос.
Подобрать