Главная Проекты домов Проект современного дома из клееного бруса

D512 Проект современного дома из клееного бруса

Сравнить проект В избранное
Проект современного дома из клееного бруса / 1
Проект современного дома из клееного бруса / 2
Проект современного дома из клееного бруса / 3
Проект современного дома из клееного бруса / 1
Проект современного дома из клееного бруса / 2
Проект современного дома из клееного бруса / 3
D512
190 м²
Проект с подрядом
Артикул проекта: ХОТЛАНС
Компания: Ecohouse Group
Стоимость строительства
3 710 000 ₽
Заказать подробную смету
+7 (812) XXX-XX-XX Показать телефон
Задать вопрос по проекту
Технические характеристики
Общие
Материал стен
Клееный брус
Общая площадь
190 м²
Количество жилых комнат/спален
3
Этажи
2 этажа
Гараж
Нет гаража
Подвал / цокольный этаж
Без подвала
Длина дома
11.2 м
Ширина дома
8.3 м
Кровля
Металлочерепица
Облицовка внешних стен
Без облицовки
Толщина несущих наружных стен
160 мм
Межэтажные перекрытия
По деревянным балкам
Внутренние не несущие перегородки
Каркасно-обшивные
Терраса
Терраса открытая
Дополнительные
Сауна/баня внутри
Нет
Площадь гостиной
17 м²
Площадь кухни
27.6 м²
Количество санузлов
3
Окно в ванной комнате
Есть
Котельная
Есть
Кладовая
1
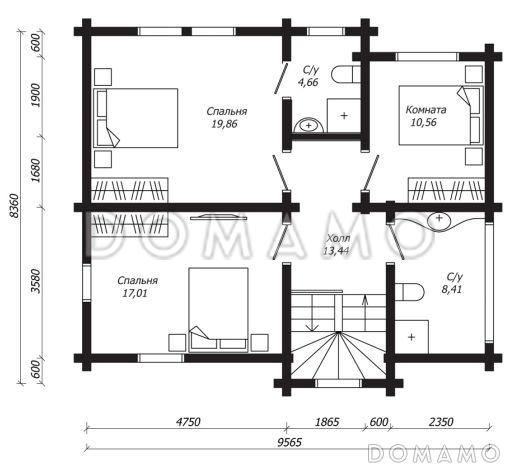
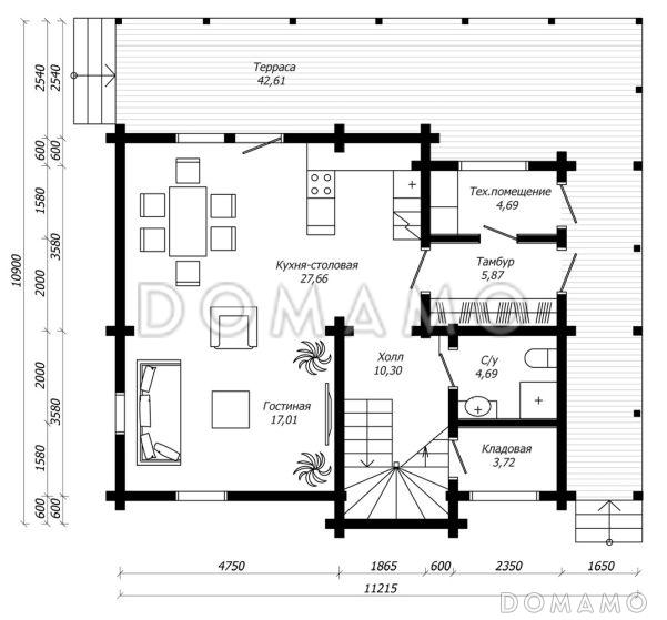
Планы помещений
Описание проекта
Компания Domamo предлагает проект современного дома из клееного бруса D512. Общая площадь - 190 м2, размер - 11.2х8.3 м. Фундамент - , кровля - металлочерепица, внешняя отделка - без облицовки. Для заказа проекта или внесения изменений свяжитесь с нами с помощью форм обратной связи на сайте или по телефону +7 (343) 357-92-70.
Категории проекта: деревянные для постоянного проживания из клееного бруса в английском стиле в скандинавском стиле от 100 до 200 кв.м 8х11 в европейском стиле с эркером с террасой дома в немецком стиле из бруса в стиле замка в финском стиле двухэтажные с котельной двухэтажные деревянные архитектурные до 200 кв.м с двухскатной крышей загородные эконом класса прямоугольные двухэтажные с эркером Проекты деревянных домов с террасой Проекты двухэтажных домов из клееного бруса Проекты двухэтажных домов с террасой Проекты двухэтажных домов с верандой без гаража Проекты домов с тремя спальнями деревянные для круглогодичного проживания двухэтажные 200 кв м двухэтажные от 150 до 200 кв м двухэтажные с двускатной крышей двухэтажные с 3 спальнями двухэтажные без гаража скандинавские для постоянного проживания скандинавские без гаража скандинавские с террасой скандинавские с большой кухней скандинавские прямоугольные скандинавские от 100 до 200 м2 скандинавские 8х11 скандинавские с двухскатной крышей скандинавские с котельной деревянные в скандинавском стиле деревянные прямоугольные деревянные без гаража деревянные с подрядом деревянные без подвала деревянные с 3 спальнями деревянные с большой кухней деревянные 8х11 деревянные от 100 до 200 м2 из клееного бруса проект с подрядом из клееного бруса для постоянного проживания из клееного бруса с окном в ванной комнате из клееного бруса прямоугольный из клееного бруса в скандинавском стиле из клееного бруса с двухскатной крышей из клееного бруса с каркасно-обшивными перегородками из клееного бруса без облицовки из клееного бруса с перекрытиями по деревянным балкам из клееного бруса с кровлей из металлочерепицы из клееного бруса с котельной из клееного бруса с 1 эркером из клееного бруса с выходом на терассу из кухни из клееного бруса с открытой терассой из клееного бруса без подвала из клееного бруса без гаража из клееного бруса двухэтажные из клееного бруса от 100 до 200 м2 Проекты домов с подрядом Показать все категории Скрыть категории

Похожие проекты
Состав проекта
Входит в стоимость
Цена, руб. Сроки, дней
Комплект архитектурно-строительных чертежей (АС) Входит в стоимость Готов к отправке
Разрабатывается отдельно
Цена, руб. Сроки, дней
Адаптация фундамента (изменение типа фундамента) по запросу 14 рабочих дней
Дизайн интерьера (стоимость от 2200руб. за квад.метр площади) по запросу 30 рабочих дней
Внесение изменений в проект по запросу 20 рабочих дней
Фэншуй дома 20 000 ₽ 14 рабочих дней в корзину
Фэншуй участка 15 000 ₽ 14 рабочих дней в корзину
Фэншуй полная консультация дом+участок с выездом на объект 100 000 ₽ 30 рабочих дней в корзину
Опции проекта вы можете заказать в корзине при оформлении заказа
Комплектации
Отзывы покупателей
Рейтинг покупателей
0 / 5 5 5 1
На основе 1 оценок покупателей
0%
0%
0%
0%
0%
Отзывы о проекте D512
Отзыв о проекте D512
Чтобы оставить отзыв, пожалуйста авторизуйтесь.
Подбор строительной компании
Не знаете кому доверить строительство дома? Мы можем помочь! Подберем для вас из сотен наших партнеров несколько компаний с лучшем соотношением цена/качество под конкретно ваш запрос.
Подобрать