Главная Проекты домов Проект дома в Альпийском стиле

D545 Проект дома в Альпийском стиле

Сравнить проект В избранное
Проект дома в Альпийском стиле / 1
Проект дома в Альпийском стиле / 2
Проект дома в Альпийском стиле / 1
Проект дома в Альпийском стиле / 2
D545
425 м²
Подготовка проекта:
10 рабочих дней
Стоимость проекта
Купить проект
Задайте вопросы по проекту нашему архитектору
8 (800) 200-28-83
Время работы: пн-вс: с 9:00 до 20:00
Задать вопрос по проекту

Технические характеристики
Общие
Материал стен
Клееный брус
Общая площадь
425 м²
Жилая площадь
248 м²
Площадь застройки
230 м²
Приведенная площадь
419.4 м²
Количество жилых комнат/спален
6
Этажи
1 этаж + мансарда
Гараж
Нет гаража
Подвал / цокольный этаж
С окнами
Длина дома
15.9 м
Ширина дома
14.5 м
Высота в коньке
11.4 м
Кровля
Натуральная черепица
Облицовка внешних стен
Без облицовки
Толщина несущих наружных стен
240 мм
Межэтажные перекрытия
По деревянным балкам
Внутренние не несущие перегородки
Каркасно-обшивные
Фундамент
Ленточный монолитный
Терраса
Без террасы
Дополнительные
Окна
Окна до пола
,
Панорамные окна
Камин
Есть
Сауна/баня внутри
Есть
Площадь гостиной
34.7 м²
Площадь кухни
26 м²
Количество санузлов
9
Окно в ванной комнате
Есть
Котельная
Есть
Кабинет
Есть
Постирочная
Есть
Хозяйский санузел
Есть
Хозяйская гардеробная
Есть
Кладовая
4
Дом для неровных участков (с рельефом)
Есть
Балкон / лоджия
Балкон
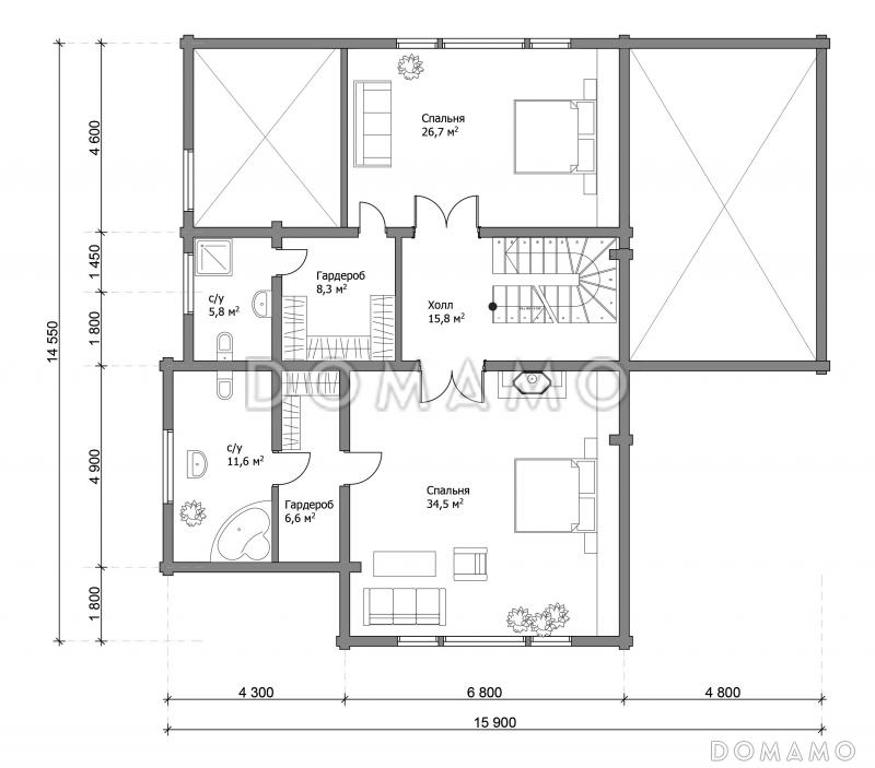
Планы помещений
Фасады
Описание проекта

Трехуровневый дом в стиле шале подойдет для строительства на неровном участке. Цокольный этаж в этом проекте высокий, с полноценными окнами на одной стене и с небольшими — на остальных. Дом строится из клееного бруса, цоколь облицован камнем.

На нижнем этаже располагается просторная комната отдыха, сауна, подсобки. Также выделено место под кабинет и комнату персонала. На следующем этаже размещены две спальни с отдельными санузлами, кухня и гостиная. Наверху находятся две мастер-спальни с ванными и гардеробными.

Преимущества и особенности:

  • камин сделает гостиную уютнее и теплее,

  • окна до пола с панорамным видом на сад заполняют помещения светом и позволяют экономить электроэнергию,

  • сауна удачно дополнит стандартные бытовые удобства.

Категории проекта: с мансардой деревянные для постоянного проживания шале из клееного бруса от 400 до 500 кв.м готовые с цокольным этажом одноэтажные с мансардой одноэтажные с цокольным этажом одноэтажные с котельной с котельной одноэтажные деревянные с баней с цокольным этажом и мансардой загородные с камином с сауной с гардеробной прямоугольные с балконом с панорамным остеклением в русском стиле Проекты деревянных домов с мансардой Проекты деревянных домов с цокольным этажом Проекты деревянных домов с баней Проекты домов из клееного бруса с мансардой Проекты домов из клееного бруса с цокольным этажом Проекты одноэтажных домов из клееного бруса Типовые проекты загородных одноэтажных домов Проекты одноэтажных домов с баней на две семьи без гаража одноэтажные без гаража с кабинетом на склоне полутораэтажные деревянные для круглогодичного проживания на склоне с цокольным этажом недорогие большие с мансардой с баней с мансардой с котельной с мансардой с камином с мансардой шале с мансардой с панорамными окнами с мансардой с окнами до пола с мансардой с балконом с мансардой прямоугольные с мансардой готовые с мансардой для постоянного проживания с мансардой элитные с мансардой большие одноэтажные с мансардой из клееного бруса одноэтажные с мансардой для постоянного проживания одноэтажные с мансардой с большой кухней одноэтажные с мансардой с изолированной кухней одноэтажные с мансардой с панорамными окнами одноэтажные с мансардой в русском стиле одноэтажные с мансардой в стиле шале одноэтажные с мансардой с балконом большие готовые большие с балконом большие прямоугольные большие с камином большие с окном в ванной комнате большие с панорамными окнами большие с окнами в пол большие без гаража большие с большой кухней большие с изолированной кухней большие без террасы большие с баней большие с прачечной большие с котельной большие с кабинетом большие с мастер-спальней деревянные недорогие деревянные в русском стиле деревянные с окнами в пол деревянные с панорамными окнами деревянные с балконом деревянные прямоугольные деревянные с камином деревянные без гаража деревянные готовые деревянные с большой гостиной деревянные с большой кухней деревянные с баней деревянные с изолированной кухней деревянные от 400 до 500 м2 деревянные большие деревянные в стиле шале недорогие с мансардой недорогие в русском стиле недорогие в стиле шале недорогие без гаража недорогие без террасы недорогие для постоянного проживания недорогие с окнами до пола недорогие с панорамными окнами недорогие с изолированной кухней недорогие с баней недорогие с кабинетом недорогие с котельной недорогие с балконом недорогие с камином недорогие прямоугольные недорогие большие недорогие от 400 до 500 м2 в русском стиле без гаража в русском стиле без террасы в русском стиле с окнами в пол в русском стиле с панорамными окнами в русском стиле с балконом в русском стиле прямоугольные в русском стиле для постоянного проживания в русском стиле для с камином в русском стиле с баней в русском стиле с котельной в русском стиле с кабинетом в русском стиле с изолированной кухней в русском стиле с большой гостиной из клееного бруса готовый проект из клееного бруса для постоянного проживания из клееного бруса с окном в ванной комнате из клееного бруса с камином из клееного бруса прямоугольный из клееного бруса с балконом из клееного бруса с окнами в пол из клееного бруса с панорамными окнами из клееного бруса в русском стиле из клееного бруса в скандинавском стиле из клееного бруса с многощипцовой крышей из клееного бруса с ленточным заглубленным монолитным фундаментом из клееного бруса с каркасно-обшивными перегородками из клееного бруса без облицовки из клееного бруса с перекрытиями по деревянным балкам из клееного бруса с хозяйской гардеробной из клееного бруса с хозяйским санузлом из клееного бруса с кабинетом из клееного бруса с котельной из клееного бруса с изолированной кухней из клееного бруса с сауной/баней внутри из клееного бруса без терассы из клееного бруса без гаража одноэтажные из клееного бруса с мансардой из клееного бруса с большой гостиной Показать все категории Скрыть категории

Похожие проекты
Состав проекта
Входит в стоимость
Цена, руб. Сроки, дней
Эскизный проект (Раздел "АР") Входит в стоимость Готов к отправке
Разрабатывается отдельно
Цена, руб. Сроки, дней
Адаптация фундамента (изменение типа фундамента) по запросу 14 рабочих дней
Дизайн интерьера (стоимость от 2200руб. за квад.метр площади) по запросу 30 рабочих дней
Внесение изменений в проект по запросу 20 рабочих дней
Комплект архитектурно-строительных чертежей (АС) 38 000 ₽ 10 рабочих дней в корзину
Фэншуй дома 20 000 ₽ 14 рабочих дней в корзину
Фэншуй участка 15 000 ₽ 14 рабочих дней в корзину
Фэншуй полная консультация дом+участок с выездом на объект 100 000 ₽ 30 рабочих дней в корзину
Опции проекта вы можете заказать в корзине при оформлении заказа
Предложения строителей Свердловская область
Подбор строительной компании
Не знаете кому доверить строительство дома? Мы можем помочь! Подберем для вас из сотен наших партнеров несколько компаний с лучшем соотношением цена/качество под конкретно ваш запрос.
Подобрать
Посмотреть еще 2 компании Свернуть
Отзывы покупателей
Рейтинг покупателей
0 / 5 5 5 1
На основе 1 оценок покупателей
0%
0%
0%
0%
0%
Отзывы о проекте D545
Отзыв о проекте D545
Чтобы оставить отзыв, пожалуйста авторизуйтесь.
Подбор строительной компании
Не знаете кому доверить строительство дома? Мы можем помочь! Подберем для вас из сотен наших партнеров несколько компаний с лучшем соотношением цена/качество под конкретно ваш запрос.
Подобрать