Технические характеристики
Общие
Количество жилых комнат/спален
Толщина несущих наружных стен
Внутренние не несущие перегородки
Дополнительные
Фасады
Описание проекта
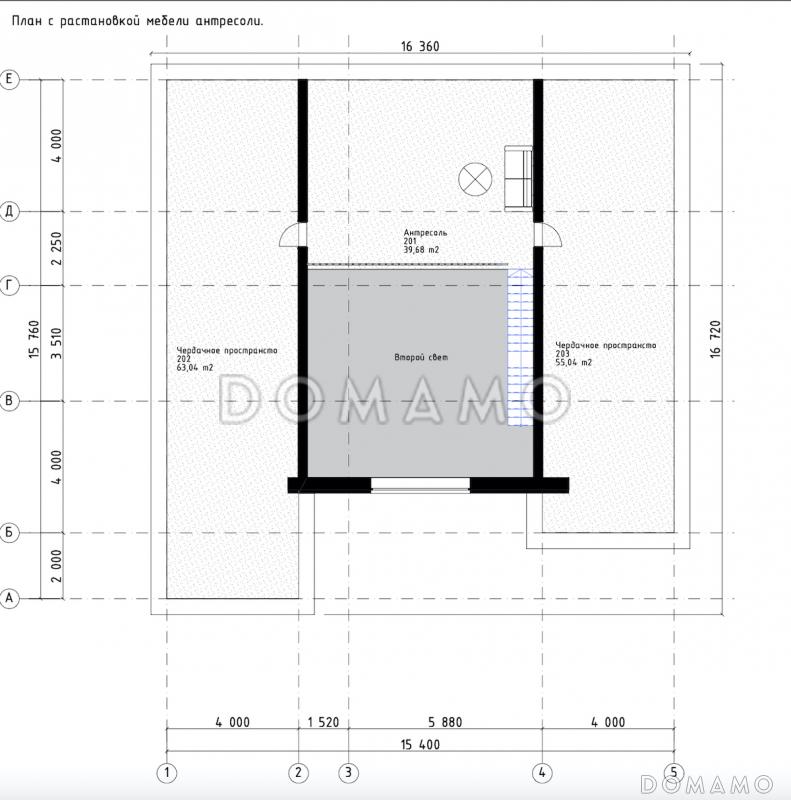
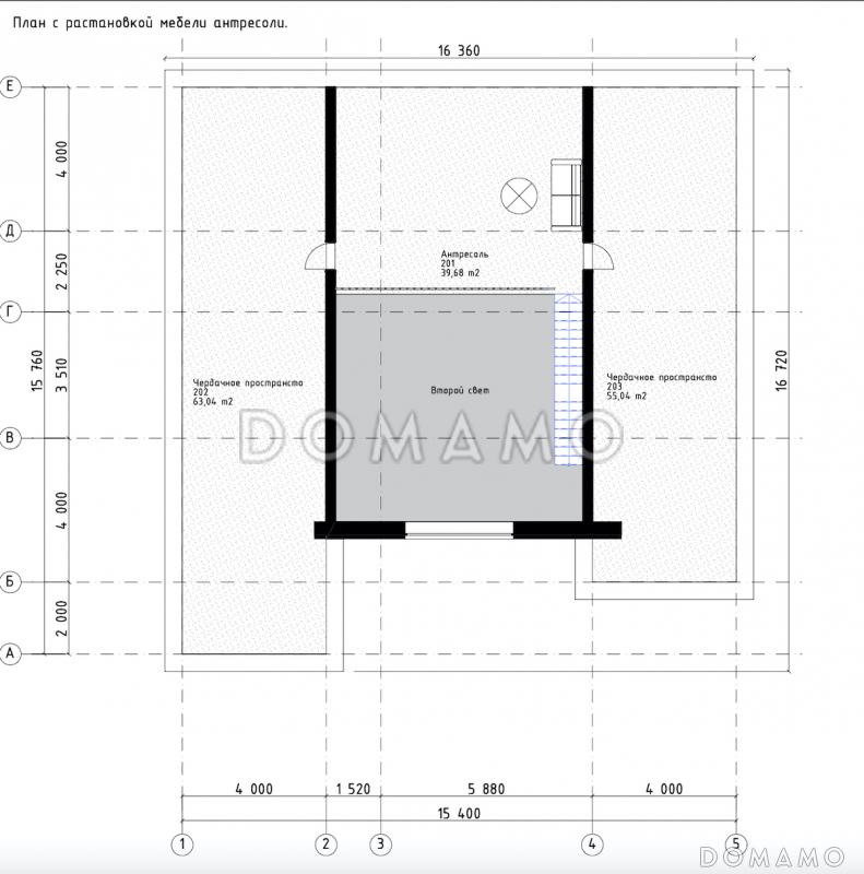
Компания Domamo предлагает проект одноэтажного дома с 3 спальнями, кабинетом и антресолью на чердаке D5525. Общая площадь - 235 м2, размер - 16.72х16.36 м. Фундамент - ленточный монолитный, кровля - гибкая черепица, внешняя отделка - мокрая штукатурка. Для заказа проекта или внесения изменений свяжитесь с нами с помощью форм обратной связи на сайте или по телефону +7 (343) 357-92-70.
Состав проекта
Входит в стоимость
|
Цена, руб. |
Сроки, дней |
|
|
|
Комплект архитектурно-строительных чертежей (АС)
|
Входит в стоимость |
Готов к отправке |
|
Готово к продаже
|
Цена, руб. |
Сроки, дней |
|
|
|
Дополнительная копия проекта формата А3
|
3 000 ₽ |
Готов к отправке |
в корзину
|
|
|
Электронная версия проекта (PDF)
|
4 000 ₽ |
Готов к отправке |
в корзину
|
Разрабатывается отдельно
|
Цена, руб. |
Сроки, дней |
|
|
|
Адаптация фундамента (изменение типа фундамента)
|
по запросу |
14 рабочих дней |
|
|
|
Дизайн интерьера (стоимость от 2200руб. за квад.метр площади)
|
по запросу |
30 рабочих дней |
|
|
|
Внесение изменений в проект
|
по запросу |
20 рабочих дней |
|
|
|
Фэншуй дома
|
20 000 ₽ |
14 рабочих дней |
в корзину
|
|
|
Фэншуй участка
|
15 000 ₽ |
14 рабочих дней |
в корзину
|
|
|
Фэншуй полная консультация дом+участок с выездом на объект
|
100 000 ₽ |
30 рабочих дней |
в корзину
|
Опции проекта вы можете заказать в корзине при оформлении заказа
Подбор строительной компании
Не знаете кому доверить строительство дома? Мы можем помочь! Подберем для вас из сотен наших партнеров несколько компаний с лучшем соотношением цена/качество под конкретно ваш запрос.
Подобрать Посмотреть еще 2 компании Свернуть