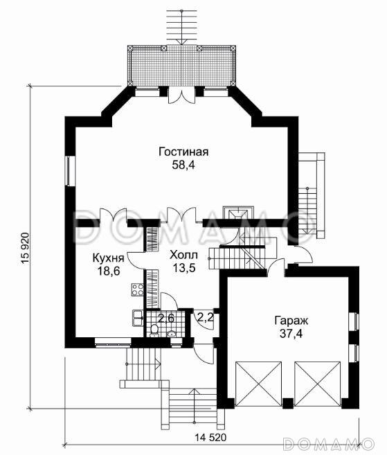
Оригинальный двухэтажный особняк с просторной гостиной и четырьмя спальнями подойдет для комфортного размещения семьи из четырех-пяти человек. Здание облицовано кирпичом и декорировано фахверковыми элементами: деревянными балками и ограждениями балкона.
На цокольном этаже оборудована полноценная рекреационная зона, а также запланированы подсобные помещения. Центральным элементом первого этажа является габаритная гостиная с камином и выходом на террасу. Гараж расположен на пол-этажа ниже. Над ним архитектор предусмотрел приватную зону, состоящую из спальни, ванной и гардеробной. На самом верхе располагаются еще три спальни.
в трех спальнях предусмотрены выходы на балконы — всегда можно будет подышать свежим воздухом, не выходя из дома,
в гараже установлено два выезда,
бассейн и сауна понравятся любителям заниматься спортом, не тратя время на поездку в фитнес-клуб.
| Минимальная | 12 823 696 ₽ |
| Стандарт | 19 235 544 ₽ |
| Под чистовую отделку | 21 479 690 ₽ |
| Показать подробные комплектации | |