Главная Проекты домов Проект двухэтажного дома с крытой террасой, тремя спальнями и гардеробными

D5821 Проект двухэтажного дома с крытой террасой, тремя спальнями и гардеробными

Сравнить проект В избранное
Технические характеристики
Общие
Материал стен
Кирпич
Общая площадь
246 м²
Жилая площадь
154 м²
Площадь застройки
190 м²
Приведенная площадь
228.69 м²
Количество жилых комнат/спален
4
Этажи
2 этажа
Гараж
Нет гаража
Количество машин
нет
Подвал / цокольный этаж
Без подвала
Длина дома
17.4 м
Ширина дома
12.8 м
Высота в коньке
9.4 м
Кровля
Гибкая черепица
Облицовка внешних стен
Облицовочный кирпич
Толщина несущих наружных стен
380 мм
Межэтажные перекрытия
Монолитные
Внутренние не несущие перегородки
Кирпичные
Фундамент
Свайно-ростверковый
Терраса
Терраса крытая
Дополнительные
Окна
Окна до пола
Сауна/баня внутри
Нет
Площадь гостиной
35.7 м²
Площадь кухни
10.7 м²
Количество санузлов
3
Окно в ванной комнате
Есть
Котельная
Есть
Кабинет
Есть
Хозяйский санузел
Есть
Хозяйская гардеробная
Есть
Кладовая
3
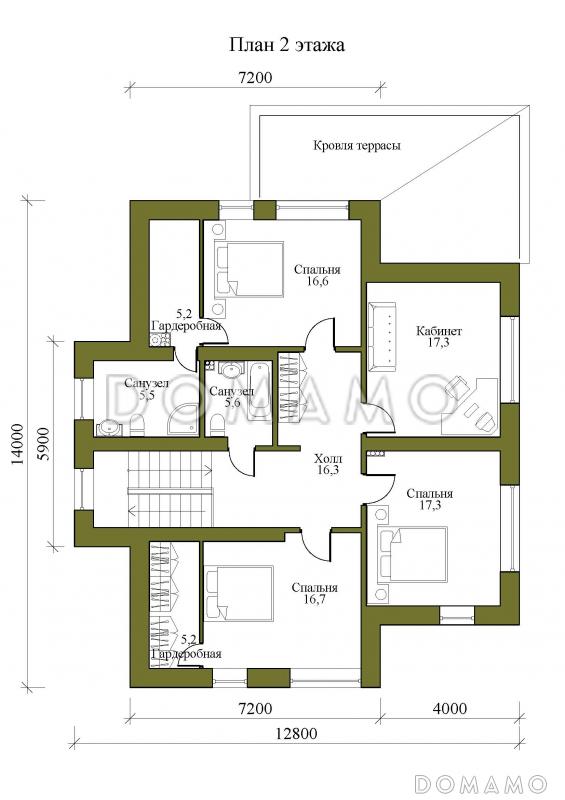
Планы помещений
Фасады
Описание проекта
Компания Domamo предлагает проект двухэтажного дома с крытой террасой, тремя спальнями и гардеробными D5821. Общая площадь - 246 м2, размер - 17.4х12.8 м. Фундамент - свайно-ростверковый, кровля - гибкая черепица, внешняя отделка - облицовочный кирпич. Для заказа проекта или внесения изменений свяжитесь с нами с помощью форм обратной связи на сайте или по телефону +7 (343) 357-92-70.
Категории проекта: для постоянного проживания кирпич современные от 200 до 300 кв.м в европейском стиле кирпичные европейские дома с террасой из кирпича с террасой готовые загородные из кирпича двухэтажные из кирпича двухэтажные кирпичные с котельной с котельной загородные с гардеробной современные кирпичные Проекты двухэтажных домов с террасой Проекты двухэтажных домов с верандой без гаража облицованные кирпичом с кабинетом с 4 спальнями от 200 до 250 м сложной формы двухэтажные с 4 спальнями двухэтажные в современном стиле двухэтажные без гаража современные без гаража современные с окнами в пол современные с террасой европейские для постоянного проживания европейские готовые европейские без подвала европейские с террасой европейские с котельной европейские с кабинетом европейские с кладовой европейские с окнами в пол европейские с вальмовой крышей европейские 200-300 м2 из клееного бруса без гаража Показать все категории Скрыть категории

Похожие проекты
Состав проекта
Входит в стоимость
Цена, руб. Сроки, дней
Комплект архитектурно-строительных чертежей (АС) Входит в стоимость Готов к отправке
Готово к продаже
Цена, руб. Сроки, дней
Паспорт рабочего проекта 5 000 ₽ 3 рабочих дня в корзину
Дополнительная копия проекта формата А3 4 000 ₽ Готов к отправке в корзину
Электронная копия проекта (скан распечатанной версии) 4 000 ₽ 3 рабочих дня в корзину
Разрабатывается отдельно
Цена, руб. Сроки, дней
Адаптация фундамента (изменение типа фундамента) по запросу 14 рабочих дней
Дизайн интерьера (стоимость от 2200руб. за квад.метр площади) по запросу 30 рабочих дней
Внесение изменений в проект по запросу 20 рабочих дней
Инженерные разделы: ВК + ОВ + ЭО 40 000 ₽ 20 рабочих дней в корзину
Зеркалирование проекта (для которого нет зеркальной версии) 8 000 ₽ 5 рабочих дней в корзину
Разработка Генплана участка, в масштабе 1:250 7 500 ₽ 5 рабочих дней в корзину
Фэншуй дома 20 000 ₽ 14 рабочих дней в корзину
Фэншуй участка 15 000 ₽ 14 рабочих дней в корзину
Фэншуй полная консультация дом+участок с выездом на объект 100 000 ₽ 30 рабочих дней в корзину
Опции проекта вы можете заказать в корзине при оформлении заказа
Предложения строителей Выбрать регион
Минимальная
8 004 150 ₽
Стандарт
9 833 670 ₽
Под чистовую отделку
12 806 640 ₽
Показать подробные комплектации
Минимальная
19 244 263 ₽
Стандарт
22 640 310 ₽
Под чистовую отделку
29 432 403 ₽
Показать подробные комплектации
Минимальная
10 098 950 ₽
Стандарт
14 832 833 ₽
Под чистовую отделку
23 353 822 ₽
Показать подробные комплектации
Минимальная
9 163 608 ₽
Стандарт
10 522 026 ₽
Под чистовую отделку
13 472 585 ₽
Показать подробные комплектации
Минимальная
4 271 700 ₽
Стандарт
5 289 828 ₽
Под чистовую отделку
6 366 958 ₽
Показать подробные комплектации
Подбор строительной компании
Не знаете кому доверить строительство дома? Мы можем помочь! Подберем для вас из сотен наших партнеров несколько компаний с лучшем соотношением цена/качество под конкретно ваш запрос.
Подобрать
Посмотреть еще 20 компаний Свернуть
Отзывы покупателей
Рейтинг покупателей
0 / 5 5 5 1
На основе 1 оценок покупателей
0%
0%
0%
0%
0%
Отзывы о проекте D5821
Отзыв о проекте D5821
Чтобы оставить отзыв, пожалуйста авторизуйтесь.
Подбор строительной компании
Не знаете кому доверить строительство дома? Мы можем помочь! Подберем для вас из сотен наших партнеров несколько компаний с лучшем соотношением цена/качество под конкретно ваш запрос.
Подобрать