Главная Проекты домов Проект дома с пятью спальнями, открытой планировкой дневной зоны с закругленным углом

D6248 Проект дома с пятью спальнями, открытой планировкой дневной зоны с закругленным углом

Сравнить проект В избранное
Проект дома с пятью спальнями, открытой планировкой дневной зоны с закругленным углом / 1
Проект дома с пятью спальнями, открытой планировкой дневной зоны с закругленным углом / 2
Проект дома с пятью спальнями, открытой планировкой дневной зоны с закругленным углом / 1
Проект дома с пятью спальнями, открытой планировкой дневной зоны с закругленным углом / 2
D6248
359 м²
Подготовка проекта:
Готов к отправке
Стоимость проекта
Купить проект
Задайте вопросы по проекту нашему архитектору
8 (800) 200-28-83
Время работы: пн-вс: с 9:00 до 20:00
Задать вопрос по проекту

Технические характеристики
Общие
Материал стен
Кирпич
Общая площадь
359 м²
Приведенная площадь
350.05 м²
Количество жилых комнат/спален
5
Этажи
2 этажа
Гараж
Нет гаража
Подвал / цокольный этаж
Без подвала
Длина дома
19.4 м
Ширина дома
16.4 м
Высота в коньке
9.47 м
Кровля
Гибкая черепица
Облицовка внешних стен
Мокрая штукатурка
Толщина несущих наружных стен
480 мм
Межэтажные перекрытия
Монолитные
Внутренние не несущие перегородки
Кирпичные
Фундамент
Ленточный монолитный
Терраса
Терраса крытая
Дополнительные
Окна
Окна до пола
,
Панорамные окна
,
Окна с французским балконом
Камин
Есть
Сауна/баня внутри
Нет
Площадь гостиной
38.8 м²
Площадь кухни
27.3 м²
Количество санузлов
1
Окно в ванной комнате
Есть
Котельная
Есть
Кладовая
1
Балкон / лоджия
Балкон
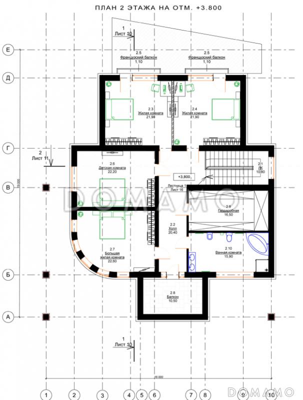
Планы помещений
Фасады
Описание проекта
Компания Domamo предлагает проект дома с пятью спальнями, открытой планировкой дневной зоны с закругленным углом D6248. Общая площадь - 359 м2, размер - 19.4х16.4 м. Фундамент - ленточный монолитный, кровля - гибкая черепица, внешняя отделка - мокрая штукатурка. Для заказа проекта или внесения изменений свяжитесь с нами с помощью форм обратной связи на сайте или по телефону +7 (343) 357-92-70.
Категории проекта: для постоянного проживания кирпич от 300 до 400 кв.м кирпичные европейские дома с эркером кирпичные дома с эркером с террасой из кирпича с террасой готовые в стиле минимализм загородные из кирпича двухэтажные из кирпича двухэтажные кирпичные с котельной с котельной с двухскатной крышей загородные с камином с балконом с панорамным остеклением в стиле эклектика двухэтажные с эркером Проекты двухэтажных домов с террасой Проекты двухэтажных домов с верандой без гаража с террасой и камином с односкатной крышей с панорамными окнами и террасой с балконом и террасой с 5 спальнями сложной формы двухэтажные с камином двухэтажные с односкатной крышей двухэтажные с двускатной крышей двухэтажные с панорамными окнами двухэтажные с балконом двухэтажные с балконом и террасой двухэтажные без гаража в стиле минимализм для постоянного проживания в стиле минимализм без гаража в стиле минимализм нестандартные в стиле минимализм с двухскатной крышей в стиле минимализм с окнами в пол в стиле минимализм с панорамными окнами в стиле минимализм с террасой в стиле минимализм с котельной в стиле минимализм с камином в стиле минимализм недорогие в стиле минимализм с ленточным фундаментом недорогие двухэтажные недорогие кирпичные недорогие в стиле эклектика недорогие без гаража недорогие с террасой недорогие для постоянного проживания недорогие с двухскатной крышей недорогие с окнами до пола недорогие с панорамными окнами недорогие без бани недорогие с котельной недорогие с балконом недорогие с камином недорогие сложной формы недорогие от 300 до 400 м2 из клееного бруса без гаража Показать все категории Скрыть категории

Похожие проекты
Состав проекта
Входит в стоимость
Цена, руб. Сроки, дней
Комплект архитектурно-строительных чертежей (АС) Входит в стоимость Готов к отправке
Готово к продаже
Цена, руб. Сроки, дней
Дополнительная копия проекта формата А3 3 000 ₽ Готов к отправке в корзину
Электронная версия проекта (PDF) 4 000 ₽ Готов к отправке в корзину
Разрабатывается отдельно
Цена, руб. Сроки, дней
Адаптация фундамента (изменение типа фундамента) по запросу 14 рабочих дней
Дизайн интерьера (стоимость от 2200руб. за квад.метр площади) по запросу 30 рабочих дней
Внесение изменений в проект по запросу 20 рабочих дней
Фэншуй дома 20 000 ₽ 14 рабочих дней в корзину
Фэншуй участка 15 000 ₽ 14 рабочих дней в корзину
Фэншуй полная консультация дом+участок с выездом на объект 100 000 ₽ 30 рабочих дней в корзину
Опции проекта вы можете заказать в корзине при оформлении заказа
Предложения строителей Свердловская область
Подбор строительной компании
Не знаете кому доверить строительство дома? Мы можем помочь! Подберем для вас из сотен наших партнеров несколько компаний с лучшем соотношением цена/качество под конкретно ваш запрос.
Подобрать
Посмотреть еще 2 компании Свернуть
Отзывы покупателей
Рейтинг покупателей
0 / 5 5 5 1
На основе 1 оценок покупателей
0%
0%
0%
0%
0%
Отзывы о проекте D6248
Отзыв о проекте D6248
Чтобы оставить отзыв, пожалуйста авторизуйтесь.
Подбор строительной компании
Не знаете кому доверить строительство дома? Мы можем помочь! Подберем для вас из сотен наших партнеров несколько компаний с лучшем соотношением цена/качество под конкретно ваш запрос.
Подобрать