Главная Проекты домов Проект двухэтажного газобетонного дома в стиле хай-тек с масштабным остеклением, вторым светом и спортзалом

D6281 Проект двухэтажного газобетонного дома в стиле хай-тек с масштабным остеклением, вторым светом и спортзалом

Сравнить проект В избранное
Технические характеристики
Общие
Материал стен
Газобетон
Общая площадь
360.1 м²
Жилая площадь
114.2 м²
Площадь застройки
285.2 м²
Приведенная площадь
255.03 м²
Количество жилых комнат/спален
2
Этажи
2 этажа
Гараж
Пристроенный навес
Количество машин
1
Подвал / цокольный этаж
Без подвала
Длина дома
19.1 м
Ширина дома
17.2 м
Высота в коньке
8 м
Кровля
Рулонная кровля
Облицовка внешних стен
Мокрая штукатурка
Толщина несущих наружных стен
380 мм
Межэтажные перекрытия
Монолитные
Внутренние не несущие перегородки
Газобетонные
Фундамент
Малозаглубленные ростверки
Терраса
Терраса крытая
Дополнительные
Окна
Окна до пола
,
Панорамные окна
Камин
Есть
Сауна/баня внутри
Нет
Площадь гостиной
24.8 м²
Площадь кухни
27.8 м²
Количество санузлов
3
Окно в ванной комнате
Есть
Постирочная
Есть
Спортзал / детский / игровой зал
Есть
Кладовая
1
Балкон / лоджия
Балкон
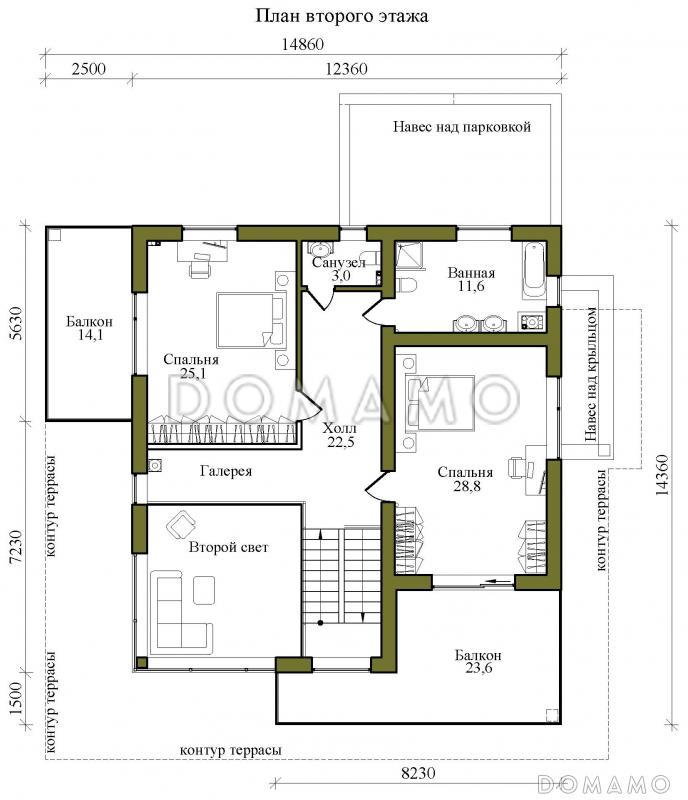
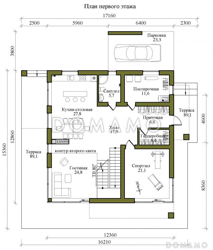
Планы помещений
Описание проекта
Компания Domamo предлагает проект двухэтажного газобетонного дома в стиле хай-тек с масштабным остеклением, вторым светом и спортзалом D6281. Общая площадь - 360.1 м2, размер - 19.1х17.2 м. Фундамент - малозаглубленные ростверки, кровля - рулонная кровля, внешняя отделка - мокрая штукатурка. Для заказа проекта или внесения изменений свяжитесь с нами с помощью форм обратной связи на сайте или по телефону +7 (343) 357-92-70.
Категории проекта: с гаражом для постоянного проживания пенобетон в стиле хай-тек современные от 300 до 400 кв.м в европейском стиле с террасой из газобетона в стиле хай-тек из газобетона готовые в стиле минимализм двухэтажные двухэтажные с гаражом двухэтажные из газобетона из газосиликатных блоков двухэтажные из пеноблоков из пеноблоков с гаражом с плоской крышей загородные из керамзитобетонных блоков с камином с балконом с навесом для машины с панорамным остеклением из газобетона с террасой из блоков двухэтажные из блоков из блоков с гаражом в стиле хай-тек с плоской крышей из пеноблоков с террасой загородные из газобетона Проекты двухэтажных домов с террасой Проекты двухэтажных домов с верандой с террасой и камином с гаражом под одной крышей с гаражом и террасой двухэтажные с террасой и гаражом с панорамными окнами и террасой с балконом и террасой современный с плоской крышей из пеноблоков загородные сложной формы двухэтажные с камином двухэтажные с панорамными окнами двухэтажные с балконом двухэтажные с балконом и террасой двухэтажные в современном стиле из газобетона от 300 до 400 кв.м из газобетона с плоской крышей из газобетона в стиле минимализм из газобетона современные из газобетона с панорамными окнами из газобетона с балконом из газобетона готовые из газобетона с камином из газобетона с большой кухней из газобетона с двумя спальнями из газобетона большие из газобетона для постоянного проживания двухэтажные из газобетона с террасой двухэтажные из газобетона с камином двухэтажные из газобетона с прачечной двухэтажные из газобетона в стиле минимализм двухэтажные из газобетона современные двухэтажные из газобетона в стиле хай-тек двухэтажные из газобетона с плоской крышей двухэтажные из газобетона большие двухэтажные из газобетона без подвала двухэтажные из газобетона с 2 спальнями современные с панорамными окнами современные с окнами в пол современные с террасой современные большие европейские с плоской крышей из пеноблоков в современном стиле из пеноблоков в стиле минимализм из пеноблоков в стиле хай-тек из пеноблоков с плоской крышей из пеноблоков с окнами до пола из пеноблоков с панорамными окнами из пеноблоков нестандартные из пеноблоков с балконом из пеноблоков для постоянного проживания из пеноблоков готовые из пеноблоков с камином из пеноблоков от 300 до 400 м2 из пеноблоков большие из пеноблоков с 2 спальнями из пеноблоков с большой кухней двухэтажные в стиле хай-тек хай-тек для постоянного проживания хай-тек с окнами в пол хай-тек с панорамными окнами хай-тек с террасой хай-тек с балконом хай-тек нестандартные хай-тек готовые хай-тек с камином хай-тек с прачечной хай-тек с 2 спальнями хай-тек без бани хай-тек без подвала хай-тек от 300 до 400 м2 в стиле минимализм для постоянного проживания в стиле минимализм нестандартные в стиле минимализм с плоской крышей в стиле минимализм с окнами в пол в стиле минимализм с панорамными окнами в стиле минимализм с террасой в стиле минимализм с камином в стиле минимализм элитные в стиле минимализм с ростверкным фундаментом недорогие с панорамными окнами из клееного бруса без гаража с плоской крышей двухэтажные с плоской крышей и большой террасой с плоской крышей готовые с плоской крышей для постоянного проживания с плоской крышей и окном в ванной комнате с плоской крышей и камином с плоской крышей сложной формы с плоской крышей и балконом с плоской крышей и окнами в пол в гостиной с плоской крышей и окнами в пол на кухне с плоской крышей и окнами до пола с плоской крышей и панорамными окнами с плоской крышей и монолитными перекрытиями с плоской крышей и облицовкой мокрой штукатуркой с плоской крышей и постирочной с плоской крышей без сауны Показать все категории Скрыть категории

Похожие проекты
Состав проекта
Входит в стоимость
Цена, руб. Сроки, дней
Комплект архитектурно-строительных чертежей (АС) Входит в стоимость Готов к отправке
Готово к продаже
Цена, руб. Сроки, дней
Паспорт рабочего проекта 6 000 ₽ 3 рабочих дня в корзину
Дополнительная копия проекта формата А3 4 000 ₽ Готов к отправке в корзину
Электронная копия проекта (скан распечатанной версии) 4 000 ₽ 3 рабочих дня в корзину
Разрабатывается отдельно
Цена, руб. Сроки, дней
Адаптация фундамента (изменение типа фундамента) по запросу 14 рабочих дней
Дизайн интерьера (стоимость от 2200руб. за квад.метр площади) по запросу 30 рабочих дней
Внесение изменений в проект по запросу 20 рабочих дней
Зеркалирование проекта (для которого нет зеркальной версии) 8 000 ₽ 5 рабочих дней в корзину
Разработка Генплана участка, в масштабе 1:250 7 500 ₽ 5 рабочих дней в корзину
Фэншуй дома 20 000 ₽ 14 рабочих дней в корзину
Фэншуй участка 15 000 ₽ 14 рабочих дней в корзину
Фэншуй полная консультация дом+участок с выездом на объект 100 000 ₽ 30 рабочих дней в корзину
Опции проекта вы можете заказать в корзине при оформлении заказа
Предложения строителей Выбрать регион
Минимальная
8 671 020 ₽
Стандарт
10 711 260 ₽
Под чистовую отделку
14 026 650 ₽
Показать подробные комплектации
Минимальная
21 460 774 ₽
Стандарт
25 247 970 ₽
Под чистовую отделку
32 822 361 ₽
Показать подробные комплектации
Минимальная
10 910 183 ₽
Стандарт
16 189 304 ₽
Под чистовую отделку
25 691 722 ₽
Показать подробные комплектации
Минимальная
8 926 050 ₽
Стандарт
10 711 260 ₽
Под чистовую отделку
11 986 410 ₽
Показать подробные комплектации
Минимальная
8 231 348 ₽
Стандарт
12 080 771 ₽
Под чистовую отделку
12 924 920 ₽
Показать подробные комплектации
Минимальная
7 140 840 ₽
Стандарт
8 160 960 ₽
Под чистовую отделку
10 711 260 ₽
Показать подробные комплектации
Подбор строительной компании
Не знаете кому доверить строительство дома? Мы можем помочь! Подберем для вас из сотен наших партнеров несколько компаний с лучшем соотношением цена/качество под конкретно ваш запрос.
Подобрать
Посмотреть еще 32 компании Свернуть
Отзывы покупателей
Рейтинг покупателей
0 / 5 5 5 1
На основе 1 оценок покупателей
0%
0%
0%
0%
0%
Отзывы о проекте D6281
Отзыв о проекте D6281
Чтобы оставить отзыв, пожалуйста авторизуйтесь.
Подбор строительной компании
Не знаете кому доверить строительство дома? Мы можем помочь! Подберем для вас из сотен наших партнеров несколько компаний с лучшем соотношением цена/качество под конкретно ваш запрос.
Подобрать