Главная Проекты домов Проект двухэтажного дома из пеноблоков с выходом на террасу из просторной гостиной

D678 Проект двухэтажного дома из пеноблоков с выходом на террасу из просторной гостиной

Сравнить проект В избранное
Проект двухэтажного дома из пеноблоков с выходом на террасу из просторной гостиной / 1
Проект двухэтажного дома из пеноблоков с выходом на террасу из просторной гостиной / 2
Проект двухэтажного дома из пеноблоков с выходом на террасу из просторной гостиной / 3
Проект двухэтажного дома из пеноблоков с выходом на террасу из просторной гостиной / 4
Проект двухэтажного дома из пеноблоков с выходом на террасу из просторной гостиной / 5
Проект двухэтажного дома из пеноблоков с выходом на террасу из просторной гостиной / 6
Проект двухэтажного дома из пеноблоков с выходом на террасу из просторной гостиной / 7
Проект двухэтажного дома из пеноблоков с выходом на террасу из просторной гостиной / 1
Проект двухэтажного дома из пеноблоков с выходом на террасу из просторной гостиной / 2
Проект двухэтажного дома из пеноблоков с выходом на террасу из просторной гостиной / 3
Проект двухэтажного дома из пеноблоков с выходом на террасу из просторной гостиной / 4
Проект двухэтажного дома из пеноблоков с выходом на террасу из просторной гостиной / 5
Проект двухэтажного дома из пеноблоков с выходом на террасу из просторной гостиной / 6
Проект двухэтажного дома из пеноблоков с выходом на террасу из просторной гостиной / 7
D678
247 м²
Технические характеристики
Общие
Материал стен
Газобетон
Общая площадь
247 м²
Жилая площадь
137 м²
Приведенная площадь
243.39 м²
Количество жилых комнат/спален
5
Этажи
2 этажа
Гараж
Нет гаража
Подвал / цокольный этаж
Без подвала
Длина дома
17.3 м
Ширина дома
13 м
Высота в коньке
9.3 м
Кровля
Натуральная черепица
Облицовка внешних стен
Мокрая штукатурка
Толщина несущих наружных стен
375-400 мм
Межэтажные перекрытия
Монолитные
Внутренние не несущие перегородки
Каркасно-обшивные
Фундамент
Монолитная ж/бетонная плита
Терраса
Терраса крытая
Дополнительные
Окна
Окна до пола
,
Окна с французским балконом
Камин
Есть
Сауна/баня внутри
Нет
Площадь гостиной
37.2 м²
Площадь кухни
21.4 м²
Количество санузлов
3
Котельная
Есть
Кладовая
2
Балкон / лоджия
Балкон
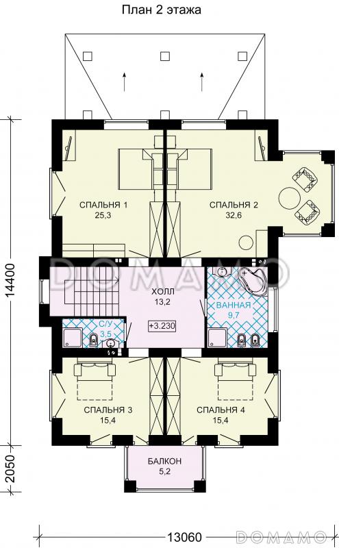
Планы помещений
Фасады
Описание проекта
Компания Domamo предлагает проект двухэтажного дома из пеноблоков с выходом на террасу из просторной гостиной D678. Общая площадь - 247 м2, размер - 17.3х13 м. Фундамент - монолитная ж/бетонная плита, кровля - натуральная черепица, внешняя отделка - мокрая штукатурка. Для заказа проекта или внесения изменений свяжитесь с нами с помощью форм обратной связи на сайте или по телефону +7 (343) 357-92-70.
Категории проекта: для постоянного проживания пенобетон современные от 200 до 300 кв.м в европейском стиле с эркером с террасой из газобетона с эркером из газобетона готовые двухэтажные с котельной двухэтажные из газобетона из газосиликатных блоков двухэтажные из пеноблоков загородные с четырехскатной крышей из керамзитобетонных блоков с камином прямоугольные с балконом из газобетона с террасой двухэтажные с эркером из блоков двухэтажные из блоков из блоков с эркером Проекты домов из пеноблоков с эркером из пеноблоков с террасой загородные из газобетона Проекты двухэтажных домов с террасой Проекты двухэтажных домов с верандой без гаража с террасой и камином с балконом и террасой из пеноблоков загородные с 5 спальнями от 200 до 250 м двухэтажные с камином двухэтажные с балконом двухэтажные с балконом и террасой двухэтажные в современном стиле двухэтажные без гаража из газобетона от 200 до 300 кв.м из газобетона с четырехскатной крышей из газобетона современные из газобетона с балконом из газобетона с котельной из газобетона прямоугольные из газобетона готовые из газобетона с камином из газобетона с большой кухней из газобетона для постоянного проживания двухэтажные из газобетона без гаража двухэтажные из газобетона с террасой двухэтажные из газобетона с камином двухэтажные из газобетона с котельной двухэтажные из газобетона современные двухэтажные из газобетона с четырехскатной крышей двухэтажные из газобетона с вальмовой крышей двухэтажные из газобетона без подвала двухэтажные из газобетона с эркером современные без гаража современные с окнами в пол современные с террасой из пеноблоков в современном стиле из пеноблоков с четырехскатной крышей из пеноблоков с вальмовой крышей из пеноблоков с окнами до пола из пеноблоков прямоугольные из пеноблоков с балконом из пеноблоков для постоянного проживания из пеноблоков готовые из пеноблоков с камином из пеноблоков от 200 до 300 м2 из пеноблоков с большой кухней из клееного бруса без гаража Показать все категории Скрыть категории

Похожие проекты
Состав проекта
Входит в стоимость
Цена, руб. Сроки, дней
Комплект архитектурно-строительных чертежей (АС) Входит в стоимость 3 рабочих дня
Готово к продаже
Цена, руб. Сроки, дней
Зеркальная версия проекта Входит в стоимость 3 рабочих дня
Паспорт рабочего проекта 5 000 ₽ 3 рабочих дня в корзину
Инженерные разделы: ВК + ОВ + ЭО 23 000 ₽ 3 рабочих дня в корзину
Дополнительная копия проекта формата А3 3 000 ₽ 3 рабочих дня в корзину
Две дополнительные копии проекта формата А3 + 1 паспорт рабочего проекта 10 100 ₽ 3 рабочих дня в корзину
Электронная копия проекта (скан распечатанной версии) 4 000 ₽ 3 рабочих дня в корзину
Разрабатывается отдельно
Цена, руб. Сроки, дней
Адаптация фундамента (изменение типа фундамента) по запросу 14 рабочих дней
Дизайн интерьера (стоимость от 2200руб. за квад.метр площади) по запросу 30 рабочих дней
Внесение изменений в проект по запросу 20 рабочих дней
Фэншуй дома 20 000 ₽ 14 рабочих дней в корзину
Фэншуй участка 15 000 ₽ 14 рабочих дней в корзину
Фэншуй полная консультация дом+участок с выездом на объект 100 000 ₽ 30 рабочих дней в корзину
Опции проекта вы можете заказать в корзине при оформлении заказа
Варианты проекта Сравнить все варианты
Избранные проекты
Избранные строители
Предложения строителей Свердловская область
Подбор строительной компании
Не знаете кому доверить строительство дома? Мы можем помочь! Подберем для вас из сотен наших партнеров несколько компаний с лучшем соотношением цена/качество под конкретно ваш запрос.
Подобрать
Посмотреть еще 3 компании Свернуть
Отзывы покупателей
Рейтинг покупателей
0 / 5 5 5 1
На основе 1 оценок покупателей
0%
0%
0%
0%
0%
Отзывы о проекте D678
Отзыв о проекте D678
Чтобы оставить отзыв, пожалуйста авторизуйтесь.
Подбор строительной компании
Не знаете кому доверить строительство дома? Мы можем помочь! Подберем для вас из сотен наших партнеров несколько компаний с лучшем соотношением цена/качество под конкретно ваш запрос.
Подобрать