Главная Проекты домов Проект вместительного особняка с бильярдным помещением, тренажерным залом и кинозалом

D690 Проект вместительного особняка с бильярдным помещением, тренажерным залом и кинозалом

Сравнить проект В избранное
Проект вместительного особняка с бильярдным помещением, тренажерным залом и кинозалом / 1
Проект вместительного особняка с бильярдным помещением, тренажерным залом и кинозалом / 2
Проект вместительного особняка с бильярдным помещением, тренажерным залом и кинозалом / 3
Проект вместительного особняка с бильярдным помещением, тренажерным залом и кинозалом / 1
Проект вместительного особняка с бильярдным помещением, тренажерным залом и кинозалом / 2
Проект вместительного особняка с бильярдным помещением, тренажерным залом и кинозалом / 3
D690
324 м²
Подготовка проекта:
Готов к отправке
Стоимость проекта
Купить проект
Задайте вопросы по проекту нашему архитектору
8 (800) 200-28-83
Время работы: пн-вс: с 9:00 до 20:00
Задать вопрос по проекту

Технические характеристики
Общие
Материал стен
Кирпич
Общая площадь
324 м²
Жилая площадь
116.9 м²
Приведенная площадь
330.74 м²
Количество жилых комнат/спален
4
Этажи
2 этажа
Гараж
Нет гаража
Подвал / цокольный этаж
С окнами
Длина дома
19.0 м
Ширина дома
15.6 м
Высота в коньке
9.8 м
Кровля
Гибкая черепица
Облицовка внешних стен
Мокрая штукатурка
,
Облицовочный кирпич
Толщина несущих наружных стен
510 мм
Межэтажные перекрытия
Сборные
Внутренние не несущие перегородки
Кирпичные
Фундамент
Монолитная ж/бетонная плита
Терраса
Терраса крытая
Дополнительные
Окна
Окна до пола
Камин
Есть
Сауна/баня внутри
Нет
Площадь гостиной
32.9 м²
Площадь кухни
26.5 м²
Количество санузлов
4
Окно в ванной комнате
Есть
Котельная
Есть
Кабинет
Есть
Постирочная
Есть
Спортзал / детский / игровой зал
Есть
Бильярдная
Есть
Кладовая
4
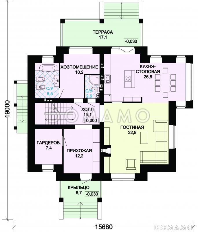
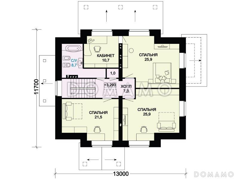
Планы помещений
Фасады
Описание проекта

Трехэтажный особняк, выполненный в современном стиле, станет отличным местом для проживания большой семьи из пяти – шести человек. Фасад дома отделан кирпичом свело-серого оттенка, основным архитектурным украшением выступают большие панорамные окна и колонны у входа. На цокольном этаже постройки расположен просторный тренажерный зал, домашний кинотеатр, а также бильярдная комната. Здесь каждый из членов семьи сможет найти себе занятие по душе и прекрасно проводить время в кругу семьи и друзей. Первый этаж включает в себя большую кухню-столовую, объединенную с гостиной, а также крытую террасу с выходом во внутренний двор. Мансарду занимают три спальных комнаты и хозяйский кабинет.

Ключевые особенности:

  • Тренажерный зал и бильярдная на цокольном этаже.
  • Домашний кинотеатр.
  • Крытая терраса с выходом во внутренний двор.
  • Хозяйский кабинет на втором этаже.
Категории проекта: для постоянного проживания кирпич от 300 до 400 кв.м кирпичные дома фахверк с террасой из кирпича с террасой готовые с цокольным этажом загородные из кирпича двухэтажные из кирпича двухэтажные кирпичные с цокольным этажом кирпичные с котельной с котельной с двухскатной крышей загородные с бильярдной с камином прямоугольные в русском стиле в стиле эклектика двухэтажные с цокольным этажом Проекты двухэтажных домов с террасой Проекты двухэтажных домов с верандой без гаража с террасой и камином облицованные кирпичом с кабинетом с 4 спальнями двухэтажные с камином двухэтажные с двускатной крышей двухэтажные с 4 спальнями двухэтажные без гаража с мансардой в русском стиле в русском стиле без гаража в русском стиле с террасой в русском стиле с окнами в пол в русском стиле прямоугольные в русском стиле для постоянного проживания в русском стиле для с камином в русском стиле без бани в русском стиле с котельной в русском стиле с кабинетом в русском стиле с большой гостиной в русском стиле с двускатной крышей из клееного бруса без гаража Показать все категории Скрыть категории

Похожие проекты
Состав проекта
Входит в стоимость
Цена, руб. Сроки, дней
Комплект архитектурно-строительных чертежей (АС) Входит в стоимость 3 рабочих дня
Готово к продаже
Цена, руб. Сроки, дней
Зеркальная версия проекта Входит в стоимость 3 рабочих дня
Паспорт рабочего проекта 5 000 ₽ 3 рабочих дня в корзину
Инженерные разделы: ВК + ОВ + ЭО 25 000 ₽ 3 рабочих дня в корзину
Дополнительная копия проекта формата А3 3 000 ₽ 3 рабочих дня в корзину
Две дополнительные копии проекта формата А3 + 1 паспорт рабочего проекта 10 100 ₽ 3 рабочих дня в корзину
Электронная копия проекта (скан распечатанной версии) 4 000 ₽ 3 рабочих дня в корзину
Разрабатывается отдельно
Цена, руб. Сроки, дней
Адаптация фундамента (изменение типа фундамента) по запросу 14 рабочих дней
Дизайн интерьера (стоимость от 2200руб. за квад.метр площади) по запросу 30 рабочих дней
Внесение изменений в проект по запросу 20 рабочих дней
Фэншуй дома 20 000 ₽ 14 рабочих дней в корзину
Фэншуй участка 15 000 ₽ 14 рабочих дней в корзину
Фэншуй полная консультация дом+участок с выездом на объект 100 000 ₽ 30 рабочих дней в корзину
Опции проекта вы можете заказать в корзине при оформлении заказа
Предложения строителей Свердловская область
Подбор строительной компании
Не знаете кому доверить строительство дома? Мы можем помочь! Подберем для вас из сотен наших партнеров несколько компаний с лучшем соотношением цена/качество под конкретно ваш запрос.
Подобрать
Посмотреть еще 2 компании Свернуть
Отзывы покупателей
Рейтинг покупателей
0 / 5 5 5 1
На основе 1 оценок покупателей
0%
0%
0%
0%
0%
Отзывы о проекте D690
Отзыв о проекте D690
Чтобы оставить отзыв, пожалуйста авторизуйтесь.
Подбор строительной компании
Не знаете кому доверить строительство дома? Мы можем помочь! Подберем для вас из сотен наших партнеров несколько компаний с лучшем соотношением цена/качество под конкретно ваш запрос.
Подобрать