D6998 Тиберкуль

Сравнить проект В избранное
Тиберкуль / 1
Тиберкуль / 2
Тиберкуль / 3
Тиберкуль / 4
Тиберкуль / 5
Тиберкуль / 6
Тиберкуль / 1
Тиберкуль / 2
Тиберкуль / 3
Тиберкуль / 4
Тиберкуль / 5
Тиберкуль / 6
D6998
130 м²
Проект с подрядом
Компания: Китежъ-Град
Стоимость строительства
не указана
Заказать подробную смету
+7 (950) XXX-XX-XX Показать телефон
Задать вопрос по проекту
Технические характеристики
Общие
Материал стен
Бревно
Общая площадь
130 м²
Количество жилых комнат/спален
3
Этажи
1 этаж
Гараж
Нет гаража
Количество машин
нет
Подвал / цокольный этаж
Без подвала
Кровля
Металлочерепица
Фундамент
Монолитная ж/бетонная плита
Терраса
Терраса застекленная (веранда)
Дополнительные
Площадь гостиной
38 м²
Количество санузлов
1
Кладовая
1
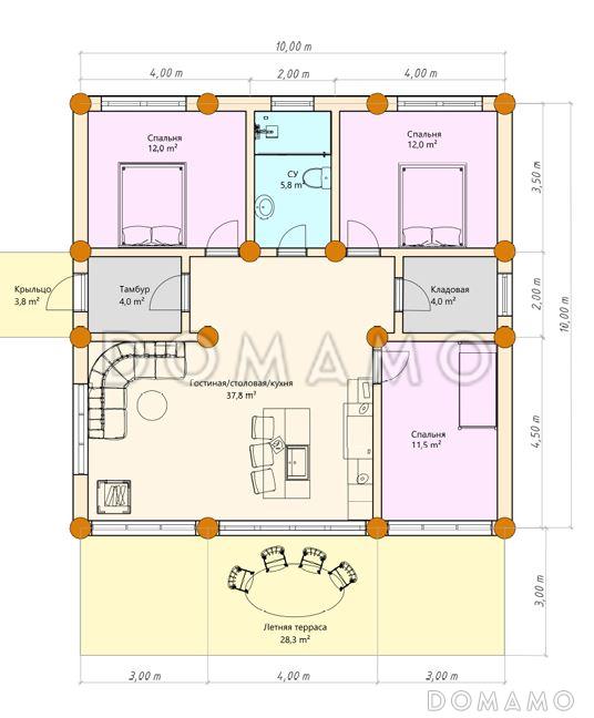
Планы помещений
Описание проекта
Премиальный жилой дом из Сибирского кедра "Тиберкуль"
Наш проект жилого дома "Тиберкуль" не только поражает своим уникальным дизайном, но и отличается прочной конструкцией и продуманной планировкой.

Дом построен из сибирского кедра по технологии post&beam, которая относится к премиальным каркасно-бревенчатым технологиям возведения домов. Кедр является одной из самых подходящих и качественных пород древесины для строительства жилых деревянных домов. Такой дом идеально подходит для проживания семьи из 4-6 человек, а также может служить гостевым домом или домом для отдыха на выходных.

Планировка дома
Благодаря сочетанию технологии post&beam с заполнением лафетом, в доме можно организовать внутреннее пространство по-разному. Мы предлагаем следующие варианты:

Кухня-гостиная площадью 37 кв.м с панорамным остеклением и выходом на террасу площадью 28,3 кв.м.

Три спальни по 12 кв.м.

Санузел площадью 6 кв.м.

Кладовая площадью 4 квадратных метра.

Дополнительное пространство до 30 кв.м над спальнями с возможностью обустройства второго света.

Технология post&beam позволяет реализовать самые нестандартные планировочные решения. Мы предлагаем вам проектирование в подарок, подробности можно узнать у нашего менеджера.

Преимущества деревянного дома
Дерево — это один из самых эффективных способов создания здоровой окружающей среды. Ощущение единства с природой, легкий аромат, чистый воздух, оптимальная температура и влажность — всё это в кедровом бревенчатом доме способствует расслаблению и снятию стресса. Даже естественный цвет дерева отвлекает от проблем и помогает сосредоточиться на положительных моментах.

Диаметр столбов несущей конструкции составляет 500-600 мм, что придает дому грандиозный вид.

Похожие проекты
Состав проекта
Входит в стоимость
Цена, руб. Сроки, дней
Комплект архитектурно-строительных чертежей (АС) Входит в стоимость Готов к отправке
Разрабатывается отдельно
Цена, руб. Сроки, дней
Адаптация фундамента (изменение типа фундамента) по запросу 14 рабочих дней
Дизайн интерьера (стоимость от 2200руб. за квад.метр площади) по запросу 30 рабочих дней
Внесение изменений в проект по запросу 20 рабочих дней
Фэншуй дома 20 000 ₽ 14 рабочих дней в корзину
Фэншуй участка 15 000 ₽ 14 рабочих дней в корзину
Фэншуй полная консультация дом+участок с выездом на объект 100 000 ₽ 30 рабочих дней в корзину
Опции проекта вы можете заказать в корзине при оформлении заказа
Комплектации
Отзывы покупателей
Рейтинг покупателей
0 / 5 5 5 1
На основе 1 оценок покупателей
0%
0%
0%
0%
0%
Отзывы о проекте D6998
Отзыв о проекте D6998
Чтобы оставить отзыв, пожалуйста авторизуйтесь.
Подбор строительной компании
Не знаете кому доверить строительство дома? Мы можем помочь! Подберем для вас из сотен наших партнеров несколько компаний с лучшем соотношением цена/качество под конкретно ваш запрос.
Подобрать