Главная Проекты домов Проект дома из пеноблоков с террасой и гаражом

D718 Проект дома из пеноблоков с террасой и гаражом

Сравнить проект В избранное
Проект дома из пеноблоков с террасой и гаражом / 1
Проект дома из пеноблоков с террасой и гаражом / 2
Проект дома из пеноблоков с террасой и гаражом / 3
Проект дома из пеноблоков с террасой и гаражом / 1
Проект дома из пеноблоков с террасой и гаражом / 2
Проект дома из пеноблоков с террасой и гаражом / 3
D718
170 м²
Технические характеристики
Общие
Материал стен
Газобетон
Общая площадь
170 м²
Жилая площадь
80.8 м²
Приведенная площадь
157.88 м²
Количество жилых комнат/спален
3
Этажи
1 этаж + мансарда
Гараж
Пристроенный гараж
Количество машин
1
Подвал / цокольный этаж
Без подвала
Длина дома
14.3 м
Ширина дома
10.5 м
Высота в коньке
8.3 м
Кровля
Металлочерепица
Облицовка внешних стен
Деревянная вагонка
Толщина несущих наружных стен
375-400 мм
Межэтажные перекрытия
По деревянным балкам
Внутренние не несущие перегородки
Каркасно-обшивные
Фундамент
Монолитная ж/бетонная плита
Терраса
Терраса крытая
Дополнительные
Окна
Окна до пола
Второй свет
Есть
Мансардные окна
Есть
Камин
Есть
Сауна/баня внутри
Нет
Площадь гостиной
25.1 м²
Площадь кухни
16.7 м²
Количество санузлов
3
Окно в ванной комнате
Есть
Котельная
Есть
Хозяйский санузел
Есть
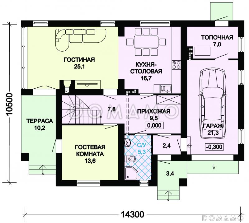
Планы помещений
Фасады
Описание проекта
Компания Domamo предлагает проект дома из пеноблоков с террасой и гаражом D718. Общая площадь - 170 м2, размер - 14.3х10.5 м. Фундамент - монолитная ж/бетонная плита, кровля - металлочерепица, внешняя отделка - деревянная вагонка. Для заказа проекта или внесения изменений свяжитесь с нами с помощью форм обратной связи на сайте или по телефону +7 (343) 357-92-70.
Категории проекта: с мансардой с гаражом с мансардой и гаражом для постоянного проживания пенобетон в стиле хай-тек современные от 100 до 200 кв.м в европейском стиле с террасой из газобетона в стиле хай-тек из пеноблоков с мансардой из газобетона с мансардой и гаражом из газобетона готовые из газобетона с мансардой из газобетона с гаражом одноэтажные с гаражом одноэтажные с мансардой одноэтажные с котельной с котельной со вторым светом одноэтажные из газобетона из газосиликатных блоков из пеноблоков с гаражом одноэтажные с гаражом и мансардой до 200 кв.м с двухскатной крышей загородные из керамзитобетонных блоков с камином квадратные из газобетона с террасой из блоков одноэтажные из блоков из блоков с гаражом из блоков с мансардой одноэтажные в стиле хай-тек из пеноблоков с террасой загородные из газобетона Проекты одноэтажных домов с террасой Типовые проекты загородных одноэтажных домов с террасой и камином одноэтажные с тремя спальнями Проекты домов с тремя спальнями с гаражом под одной крышей одноэтажных из керамзитобетонных блоков одноэтажные с гаражом и террасой с мансардой и террасой полутораэтажные с гаражом и террасой одноэтажные до 200 кв м из пеноблоков загородные одноэтажные с мансардными окнами с мансардой с котельной с мансардой с камином с мансардой с двухскатной крышей с мансардой современные с мансардой с окнами до пола с мансардой со вторым светом с мансардой с мансардными окнами с мансардой квадратные с мансардой готовые с мансардой для постоянного проживания с мансардой до 200 кв.м одноэтажные из газобетона с гаражом одноэтажные из газобетона с террасой одноэтажные из газобетона с мансардой одноэтажные из газобетона с 3 спальнями со вторым светом из газобетона до 200 кв.м из газобетона от 100 до 200 кв.м из газобетона с двухскатной крышей из газобетона современные из газобетона с котельной из газобетона квадратные из газобетона готовые из газобетона с камином из газобетона с большой кухней из газобетона с тремя спальнями из газобетона с изолированной кухней из газобетона для постоянного проживания из газобетона со вторым светом двухэтажные из газобетона с гаражом двухэтажные из газобетона с террасой двухэтажные из газобетона с камином двухэтажные из газобетона с котельной двухэтажные из газобетона со вторым светом двухэтажные из газобетона современные двухэтажные из газобетона в стиле хай-тек двухэтажные из газобетона с двухскатной крышей двухэтажные из газобетона до 200 кв. м двухэтажные из газобетона без подвала двухэтажные из газобетона с изолированной кухней двухэтажные из газобетона с 3 спальнями из газобетона с мансардой современные из газобетона с мансардой с террасой из газобетона с мансардой с камином из газобетона с мансардой для постоянного проживания из газобетона с мансардой готовые из газобетона с мансардой с двухскатной крышей из газобетона с мансардой с 3 спальнями из газобетона с мансардой с большой кухней из газобетона с мансардой с изолированной кухней из газобетона с мансардой со вторым светом из газобетона с мансардой квадратные одноэтажные с мансардой для постоянного проживания одноэтажные с мансардой со вторым светом одноэтажные с мансардой с большой кухней одноэтажные с мансардой с изолированной кухней одноэтажные с мансардой современные современные с гаражом современные с двухскатной крышей современные с окнами в пол современные с террасой современные от 100 до 200 кв. м современные со вторым светом из пеноблоков в современном стиле из пеноблоков в стиле барнхаус из пеноблоков в стиле хай-тек из пеноблоков с двухскатной крышей из пеноблоков с окнами до пола из пеноблоков с вторым светом из пеноблоков квадратные из пеноблоков для постоянного проживания из пеноблоков готовые из пеноблоков с камином из пеноблоков от 100 до 200 м2 из пеноблоков с 3 спальнями из пеноблоков с большой кухней из пеноблоков с изолированной кухней хай-тек для постоянного проживания хай-тек с гаражом хай-тек с окнами в пол хай-тек с террасой хай-тек с вторым светом хай-тек готовые хай-тек с камином хай-тек на монолитном фундаменте хай-тек с котельной хай-тек с мастер-спальней хай-тек с 3 спальнями хай-тек с изолированной кухней хай-тек без бани хай-тек без подвала хай-тек от 100 до 200 м2 из клееного бруса без гаража Показать все категории Скрыть категории

Похожие проекты
Состав проекта
Входит в стоимость
Цена, руб. Сроки, дней
Комплект архитектурно-строительных чертежей (АС) Входит в стоимость 20 рабочих дней
Готово к продаже
Цена, руб. Сроки, дней
Зеркальная версия проекта Входит в стоимость 20 рабочих дней
Паспорт рабочего проекта 5 000 ₽ 20 рабочих дней в корзину
Инженерные разделы: ВК + ОВ + ЭО 23 000 ₽ 20 рабочих дней в корзину
Дополнительная копия проекта формата А3 3 000 ₽ 20 рабочих дней в корзину
Две дополнительные копии проекта формата А3 + 1 паспорт рабочего проекта 10 100 ₽ 20 рабочих дней в корзину
Электронная копия проекта (скан распечатанной версии) 4 000 ₽ 3 рабочих дня в корзину
Разрабатывается отдельно
Цена, руб. Сроки, дней
Адаптация фундамента (изменение типа фундамента) по запросу 14 рабочих дней
Дизайн интерьера (стоимость от 2200руб. за квад.метр площади) по запросу 30 рабочих дней
Внесение изменений в проект по запросу 20 рабочих дней
Фэншуй дома 20 000 ₽ 14 рабочих дней в корзину
Фэншуй участка 15 000 ₽ 14 рабочих дней в корзину
Фэншуй полная консультация дом+участок с выездом на объект 100 000 ₽ 30 рабочих дней в корзину
Опции проекта вы можете заказать в корзине при оформлении заказа
Предложения строителей Свердловская область
Подбор строительной компании
Не знаете кому доверить строительство дома? Мы можем помочь! Подберем для вас из сотен наших партнеров несколько компаний с лучшем соотношением цена/качество под конкретно ваш запрос.
Подобрать
Посмотреть еще 3 компании Свернуть
Отзывы покупателей
Рейтинг покупателей
0 / 5 5 5 1
На основе 1 оценок покупателей
0%
0%
0%
0%
0%
Отзывы о проекте D718
Отзыв о проекте D718
Чтобы оставить отзыв, пожалуйста авторизуйтесь.
Подбор строительной компании
Не знаете кому доверить строительство дома? Мы можем помочь! Подберем для вас из сотен наших партнеров несколько компаний с лучшем соотношением цена/качество под конкретно ваш запрос.
Подобрать