Главная Проекты домов Проект полутораэтажного коттеджа с яркой облицовкой и открытой террасой

D748 Проект полутораэтажного коттеджа с яркой облицовкой и открытой террасой

Сравнить проект В избранное
Проект полутораэтажного коттеджа с яркой облицовкой и открытой террасой / 1
Проект полутораэтажного коттеджа с яркой облицовкой и открытой террасой / 2
Проект полутораэтажного коттеджа с яркой облицовкой и открытой террасой / 3
Проект полутораэтажного коттеджа с яркой облицовкой и открытой террасой / 4
Проект полутораэтажного коттеджа с яркой облицовкой и открытой террасой / 1
Проект полутораэтажного коттеджа с яркой облицовкой и открытой террасой / 2
Проект полутораэтажного коттеджа с яркой облицовкой и открытой террасой / 3
Проект полутораэтажного коттеджа с яркой облицовкой и открытой террасой / 4
D748
150 м²
Технические характеристики
Общие
Материал стен
Газобетон
Общая площадь
150 м²
Жилая площадь
95.2 м²
Площадь застройки
138.0 м²
Приведенная площадь
157.89 м²
Количество жилых комнат/спален
4
Этажи
1 этаж + мансарда
Гараж
Нет гаража
Подвал / цокольный этаж
Без подвала
Длина дома
13 м
Ширина дома
10.4 м
Высота в коньке
8.8 м
Кровля
Металлочерепица
Облицовка внешних стен
Облицовочный кирпич
Толщина несущих наружных стен
375мм. мм
Межэтажные перекрытия
Сборные
Внутренние не несущие перегородки
Каркасно-обшивные
Фундамент
Монолитная ж/бетонная плита
Терраса
Терраса открытая
Дополнительные
Окна
Окна до пола
,
Панорамные окна
Сауна/баня внутри
Есть
Площадь гостиной
22.4 м²
Площадь кухни
13.3 м²
Количество санузлов
2
Окно в ванной комнате
Есть
Котельная
Есть
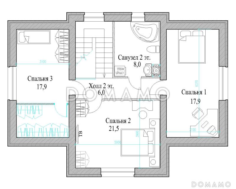
Планы помещений
Фасады
Описание проекта
Мансардный домик из пенобетона с отделкой под кирпич выглядит как игрушка на фоне загородного пейзажа. Дополнительное очарование ему придает большая крытая терраса, на которую можно выйти прямо из кухни-столовой. Здесь хорошо устроить летнюю зону отдыха с креслами и столом. Прекрасный вид на сад открывается также из высоких окон гостиной, расположившихся по периметру полукруглого эркера. Здесь можно собираться всей семьей, а персональная зона отдыха представлена 4-мя спальнями. Одна из них для удобства жильцов запроектирована на первом этаже, через холл с собственной сауной и вторым санузлом.
Категории проекта: с мансардой для постоянного проживания пенобетон от 100 до 200 кв.м в европейском стиле с эркером с террасой из пеноблоков с мансардой из газобетона с мансардой и эркером из газобетона с эркером из газобетона в немецком стиле из газобетона готовые из газобетона с мансардой одноэтажные с мансардой одноэтажные до 150 кв. м. одноэтажные с котельной с котельной одноэтажные из газобетона из газосиликатных блоков с баней до 150 кв.м до 200 кв.м загородные с четырехскатной крышей с ломаной крышей из керамзитобетонных блоков с сауной прямоугольные с панорамным остеклением в русском стиле из газобетона с баней из газобетона с террасой с эркером и мансардой из блоков одноэтажные из блоков из блоков с мансардой из блоков с эркером из пеноблоков с баней Проекты домов из пеноблоков с эркером из пеноблоков с террасой загородные из газобетона Проекты одноэтажных домов с эркером Проекты одноэтажных домов с террасой Типовые проекты загородных одноэтажных домов Проекты одноэтажных домов с баней без гаража одноэтажные без гаража облицованные кирпичом одноэтажных из керамзитобетонных блоков одноэтажные с 4 спальнями с мансардой до 150 кв м с мансардой и террасой полутораэтажные с 4 спальнями с панорамными окнами и террасой одноэтажные до 200 кв м недорогие из пеноблоков загородные с мансардой с баней с мансардой с котельной с мансардой с четырехскатной крышей с мансардой в европейском стиле с мансардой с панорамными окнами с мансардой с окнами до пола с мансардой прямоугольные с мансардой готовые с мансардой для постоянного проживания с мансардой до 200 кв.м с мансардой от 100 до 150 кв.м одноэтажные из газобетона с террасой одноэтажные из газобетона до 150 кв. м одноэтажные из газобетона с мансардой одноэтажные из газобетона с 4 спальнями из газобетона до 150 кв.м из газобетона до 200 кв.м из газобетона от 100 до 200 кв.м из газобетона с четырехскатной крышей из газобетона в европейском стиле из газобетона с панорамными окнами из газобетона с котельной из газобетона прямоугольные из газобетона готовые из газобетона с четырьмя спальнями из газобетона с изолированной кухней из газобетона недорогие из газобетона для постоянного проживания двухэтажные из газобетона без гаража двухэтажные из газобетона с террасой двухэтажные из газобетона недорогие двухэтажные из газобетона с котельной двухэтажные из газобетона в европейском стиле двухэтажные из газобетона с четырехскатной крышей двухэтажные из газобетона до 150 кв. м двухэтажные из газобетона до 200 кв. м двухэтажные из газобетона без подвала двухэтажные из газобетона с изолированной кухней двухэтажные из газобетона с баней двухэтажные из газобетона с эркером двухэтажные из газобетона с 4 спальнями из газобетона с мансардой в европейском стиле из газобетона с мансардой в русском стиле из газобетона с мансардой с террасой из газобетона с мансардой для постоянного проживания из газобетона с мансардой готовые из газобетона с мансардой с четырехскатной крышей из газобетона с мансардой с 4 спальнями из газобетона с мансардой с баней из газобетона с мансардой с изолированной кухней из газобетона с мансардой с панорамными окнами из газобетона с мансардой прямоугольные одноэтажные с мансардой для постоянного проживания одноэтажные с мансардой с изолированной кухней одноэтажные с мансардой с панорамными окнами одноэтажные с мансардой в европейском стиле одноэтажные с мансардой в русском стиле европейские для постоянного проживания европейские недорогие европейские готовые европейские без подвала европейские с террасой европейские с сауной европейские с изолированной кухней европейские с 2 санузлами европейские с котельной европейские прямоугольные европейские с панорамными окнами европейские с окнами в пол европейские с четырехскатной крышей европейские до 150 м2 европейские 100-200 м2 до 150 кв.м для постоянного проживания до 150 кв.м без гаража до 150 кв.м с четырехскатной крышей до 150 кв.м с окнами до пола до 150 кв.м с панорамными окнами до 150 кв.м русские до 150 кв.м готовые до 150 кв.м прямоугольные до 150 кв.м с котельной до 150 кв.м с изолированной кухней до 150 кв.м с баней до 150 кв.м с террасой до 150 кв.м без подвала до 150 кв.м с 4 спальнями из пеноблоков в европейском стиле из пеноблоков с четырехскатной крышей из пеноблоков с окнами до пола из пеноблоков с панорамными окнами из пеноблоков прямоугольные из пеноблоков для постоянного проживания из пеноблоков недорогие из пеноблоков готовые из пеноблоков до 150 м кв. из пеноблоков от 100 до 200 м2 из пеноблоков с 4 спальнями из пеноблоков с изолированной кухней недорогие с мансардой недорогие в русском стиле недорогие без гаража недорогие с террасой недорогие для постоянного проживания недорогие с четырехскатной крышей недорогие с окнами до пола недорогие с панорамными окнами недорогие с изолированной кухней недорогие с баней недорогие с котельной недорогие прямоугольные недорогие до 150 м2 недорогие от 100 до 200 м2 в русском стиле без гаража в русском стиле с террасой в русском стиле с окнами в пол в русском стиле с панорамными окнами в русском стиле прямоугольные в русском стиле для постоянного проживания в русском стиле с баней в русском стиле с котельной в русском стиле с изолированной кухней в русском стиле от 100 до 200 кв м из клееного бруса без гаража Показать все категории Скрыть категории

Похожие проекты
Состав проекта
Входит в стоимость
Цена, руб. Сроки, дней
Комплект архитектурно-строительных чертежей (АС) Входит в стоимость Готов к отправке
Готово к продаже
Цена, руб. Сроки, дней
Паспорт рабочего проекта 5 000 ₽ 3 рабочих дня в корзину
Дополнительная копия проекта формата А3 4 000 ₽ Готов к отправке в корзину
Электронная копия проекта (скан распечатанной версии) 4 000 ₽ 3 рабочих дня в корзину
Разрабатывается отдельно
Цена, руб. Сроки, дней
Адаптация фундамента (изменение типа фундамента) по запросу 14 рабочих дней
Дизайн интерьера (стоимость от 2200руб. за квад.метр площади) по запросу 30 рабочих дней
Внесение изменений в проект по запросу 20 рабочих дней
Зеркалирование проекта (для которого нет зеркальной версии) 8 000 ₽ 5 рабочих дней в корзину
Разработка Генплана участка, в масштабе 1:250 7 500 ₽ 5 рабочих дней в корзину
Фэншуй дома 20 000 ₽ 14 рабочих дней в корзину
Фэншуй участка 15 000 ₽ 14 рабочих дней в корзину
Фэншуй полная консультация дом+участок с выездом на объект 100 000 ₽ 30 рабочих дней в корзину
Опции проекта вы можете заказать в корзине при оформлении заказа
Предложения строителей Свердловская область
Подбор строительной компании
Не знаете кому доверить строительство дома? Мы можем помочь! Подберем для вас из сотен наших партнеров несколько компаний с лучшем соотношением цена/качество под конкретно ваш запрос.
Подобрать
Посмотреть еще 3 компании Свернуть
Отзывы покупателей
Рейтинг покупателей
0 / 5 5 5 1
На основе 1 оценок покупателей
0%
0%
0%
0%
0%
Отзывы о проекте D748
Отзыв о проекте D748
Чтобы оставить отзыв, пожалуйста авторизуйтесь.
Подбор строительной компании
Не знаете кому доверить строительство дома? Мы можем помочь! Подберем для вас из сотен наших партнеров несколько компаний с лучшем соотношением цена/качество под конкретно ваш запрос.
Подобрать