Главная Проекты домов Проект дома из клееного бруса с большим холлом на мансардном этаже

D894 Проект дома из клееного бруса с большим холлом на мансардном этаже

Сравнить проект В избранное
Проект дома из клееного бруса с большим холлом на мансардном этаже / 1
Проект дома из клееного бруса с большим холлом на мансардном этаже / 2
Проект дома из клееного бруса с большим холлом на мансардном этаже / 3
Проект дома из клееного бруса с большим холлом на мансардном этаже / 1
Проект дома из клееного бруса с большим холлом на мансардном этаже / 2
Проект дома из клееного бруса с большим холлом на мансардном этаже / 3
D894
278 м²
Домокомплект
Артикул проекта: Иматра
Компания: ГК "Приозерский лесокомбинат"
Стоимость домокомплекта
2 674 000 ₽
Заказать подробную смету
+7 (921) XXX-XX-XX Показать телефон
Задать вопрос по проекту
Технические характеристики
Общие
Материал стен
Клееный брус
Общая площадь
278 м²
Приведенная площадь
182.74 м²
Количество жилых комнат/спален
3
Этажи
1 этаж + мансарда
Гараж
Нет гаража
Подвал / цокольный этаж
Без подвала
Длина дома
14.9 м
Ширина дома
10.8 м
Облицовка внешних стен
Без облицовки
Толщина несущих наружных стен
166 мм
Межэтажные перекрытия
По деревянным балкам
Внутренние не несущие перегородки
Каркасно-обшивные
Терраса
Терраса крытая
Дополнительные
Окна
Окна до пола
,
Панорамные окна
Второй свет
Есть
Сауна/баня внутри
Нет
Площадь гостиной
15 м²
Площадь кухни
13.4 м²
Количество санузлов
1
Окно в ванной комнате
Есть
Котельная
Есть
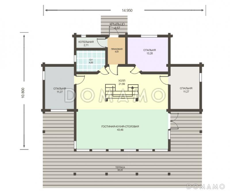
Планы помещений
Описание проекта
Компания Domamo предлагает проект дома из клееного бруса с большим холлом на мансардном этаже D894. Общая площадь - 278 м2, размер - 14.9х10.8 м. Фундамент - , кровля - , внешняя отделка - без облицовки. Для заказа проекта или внесения изменений свяжитесь с нами с помощью форм обратной связи на сайте или по телефону +7 (343) 357-92-70.
Категории проекта: с мансардой деревянные для постоянного проживания из клееного бруса от 200 до 300 кв.м с террасой одноэтажные с мансардой одноэтажные с котельной с котельной со вторым светом одноэтажные деревянные загородные с панорамным остеклением в стиле эклектика Проекты деревянных домов с мансардой Проекты деревянных домов с террасой Проекты домов из клееного бруса с мансардой Проекты одноэтажных домов из клееного бруса Проекты одноэтажных домов с террасой Типовые проекты загородных одноэтажных домов без гаража одноэтажные без гаража одноэтажные с тремя спальнями Проекты домов с тремя спальнями с мансардой и террасой полутораэтажные деревянные для круглогодичного проживания с панорамными окнами и террасой сложной формы с мансардой с котельной с мансардой с панорамными окнами с мансардой с окнами до пола с мансардой со вторым светом с мансардой сложной формы с мансардой для постоянного проживания со вторым светом одноэтажные с мансардой из клееного бруса одноэтажные с мансардой для постоянного проживания одноэтажные с мансардой со вторым светом одноэтажные с мансардой с панорамными окнами одноэтажные с мансардой в стиле эклектика деревянные в стиле эклектика деревянные с окнами в пол деревянные с вторым светом деревянные с панорамными окнами деревянные без гаража деревянные домокомплекты деревянные без подвала деревянные с 3 спальнями деревянные от 200 до 300 м2 недорогие с панорамными окнами из клееного бруса домокомплект из клееного бруса для постоянного проживания из клееного бруса с окном в ванной комнате из клееного бруса сложной формы из клееного бруса с вторым светом из клееного бруса с окнами в пол (в гостиной) из клееного бруса с окнами в пол (на кухне) из клееного бруса с окнами в пол из клееного бруса с панорамными окнами из клееного бруса в скандинавском стиле из клееного бруса в стиле эклектика из клееного бруса с многощипцовой крышей из клееного бруса с каркасно-обшивными перегородками из клееного бруса без облицовки из клееного бруса с перекрытиями по деревянным балкам из клееного бруса с котельной из клееного бруса с выходом на терассу из гостиной из клееного бруса с выходом на терассу из кухни из клееного бруса с крытой терассой из клееного бруса без подвала из клееного бруса без гаража одноэтажные из клееного бруса с мансардой из клееного бруса от 200 до 300 м2 Показать все категории Скрыть категории

Похожие проекты
Состав проекта
Входит в стоимость
Цена, руб. Сроки, дней
Комплект архитектурно-строительных чертежей (АС) Входит в стоимость Готов к отправке
Разрабатывается отдельно
Цена, руб. Сроки, дней
Адаптация фундамента (изменение типа фундамента) по запросу 14 рабочих дней
Дизайн интерьера (стоимость от 2200руб. за квад.метр площади) по запросу 30 рабочих дней
Внесение изменений в проект по запросу 20 рабочих дней
Фэншуй дома 20 000 ₽ 14 рабочих дней в корзину
Фэншуй участка 15 000 ₽ 14 рабочих дней в корзину
Фэншуй полная консультация дом+участок с выездом на объект 100 000 ₽ 30 рабочих дней в корзину
Опции проекта вы можете заказать в корзине при оформлении заказа
Отзывы покупателей
Рейтинг покупателей
0 / 5 5 5 1
На основе 1 оценок покупателей
0%
0%
0%
0%
0%
Отзывы о проекте D894
Отзыв о проекте D894
Чтобы оставить отзыв, пожалуйста авторизуйтесь.
Подбор строительной компании
Не знаете кому доверить строительство дома? Мы можем помочь! Подберем для вас из сотен наших партнеров несколько компаний с лучшем соотношением цена/качество под конкретно ваш запрос.
Подобрать