Главная Проекты домов Проект дома из бруса с SPA-зоной и кинотеатром

D9033 Проект дома из бруса с SPA-зоной и кинотеатром

Сравнить проект В избранное
Проект дома из бруса с SPA-зоной и кинотеатром / 1
Проект дома из бруса с SPA-зоной и кинотеатром / 1
D9033
723 м²
Проект с подрядом
Артикул проекта: ЛИЛИУМ
Компания: Ecohouse Group
Стоимость строительства
16 610 000 ₽
Заказать подробную смету
+7 (812) XXX-XX-XX Показать телефон
Задать вопрос по проекту
Технические характеристики
Общие
Материал стен
Клееный брус
Общая площадь
723 м²
Приведенная площадь
623.8 м²
Количество жилых комнат/спален
5
Этажи
2 этажа
Гараж
Встроенный гараж
Количество машин
2
Подвал / цокольный этаж
Без подвала
Длина дома
33.2 м
Ширина дома
21.0 м
Кровля
Металлочерепица
Облицовка внешних стен
Без облицовки
Толщина несущих наружных стен
160 мм
Межэтажные перекрытия
По деревянным балкам
Внутренние не несущие перегородки
Каркасно-обшивные
Терраса
Терраса крытая
Дополнительные
Окна
Окна до пола
Сауна/баня внутри
Есть
Площадь гостиной
48 м²
Площадь кухни
30 м²
Количество санузлов
7
Окно в ванной комнате
Есть
Котельная
Есть
Хозяйский санузел
Есть
Хозяйская гардеробная
Есть
Кладовая
3
Балкон / лоджия
Балкон
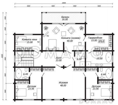
Планы помещений
Описание проекта
Компания Domamo предлагает проект дома из бруса с spa-зоной и кинотеатром D9033. Общая площадь - 723 м2, размер - 33.2х21.0 м. Фундамент - , кровля - металлочерепица, внешняя отделка - без облицовки. Для заказа проекта или внесения изменений свяжитесь с нами с помощью форм обратной связи на сайте или по телефону +7 (343) 357-92-70.
Категории проекта: с гаражом деревянные для постоянного проживания из клееного бруса в английском стиле в скандинавском стиле от 500 кв.м в европейском стиле с террасой из бруса в стиле замка в финском стиле двухэтажные двухэтажные с гаражом с котельной двухэтажные деревянные с баней загородные с баней и гаражом с сауной с гардеробной с балконом со встроенным гаражом Проекты деревянных домов с террасой Проекты деревянных домов с баней Проекты деревянных домов с гаражом Проекты домов из клееного бруса с гаражом Проекты двухэтажных домов из клееного бруса Проекты двухэтажных домов с террасой Проекты двухэтажных домов с верандой с гаражом под одной крышей с гаражом на 2 машины деревянные для круглогодичного проживания особняки с гаражом и террасой двухэтажные с террасой и гаражом двухэтажные с сауной с балконом и террасой с 5 спальнями большие сложной формы двухэтажные с балконом двухэтажные с балконом и террасой скандинавские для постоянного проживания скандинавские с гаражом скандинавские с гаражом на 2 машины скандинавские с окнами в пол скандинавские с террасой скандинавские с большой гостиной скандинавские с большой кухней скандинавские с балконом скандинавские большие скандинавские с котельной большие с балконом большие сложной формы большие с окном в ванной комнате большие с окнами в пол большие с гаражом большие с гаражом на 2 машины большие с большой кухней большие с террасой большие с баней большие с котельной большие с мастер-спальней деревянные в скандинавском стиле деревянные с окнами в пол деревянные с балконом деревянные с подрядом деревянные без подвала деревянные с большой гостиной деревянные с большой кухней деревянные с баней деревянные от 500 кв.м деревянные большие из клееного бруса проект с подрядом из клееного бруса для постоянного проживания из клееного бруса с окном в ванной комнате из клееного бруса сложной формы из клееного бруса с балконом из клееного бруса с окнами в пол из клееного бруса в скандинавском стиле из клееного бруса с многощипцовой крышей из клееного бруса с каркасно-обшивными перегородками из клееного бруса без облицовки из клееного бруса с перекрытиями по деревянным балкам из клееного бруса с кровлей из металлочерепицы из клееного бруса с хозяйской гардеробной из клееного бруса с хозяйским санузлом из клееного бруса с котельной из клееного бруса с сауной/баней внутри из клееного бруса с выходом на терассу из гостиной из клееного бруса с выходом на терассу из кухни из клееного бруса с крытой терассой из клееного бруса без подвала из клееного бруса без гаража из клееного бруса двухэтажные из клееного бруса с большой гостиной Проекты домов с подрядом Показать все категории Скрыть категории

Похожие проекты
Состав проекта
Входит в стоимость
Цена, руб. Сроки, дней
Комплект архитектурно-строительных чертежей (АС) Входит в стоимость Готов к отправке
Разрабатывается отдельно
Цена, руб. Сроки, дней
Адаптация фундамента (изменение типа фундамента) по запросу 14 рабочих дней
Дизайн интерьера (стоимость от 2200руб. за квад.метр площади) по запросу 30 рабочих дней
Внесение изменений в проект по запросу 20 рабочих дней
Фэншуй дома 20 000 ₽ 14 рабочих дней в корзину
Фэншуй участка 15 000 ₽ 14 рабочих дней в корзину
Фэншуй полная консультация дом+участок с выездом на объект 100 000 ₽ 30 рабочих дней в корзину
Опции проекта вы можете заказать в корзине при оформлении заказа
Комплектации
Отзывы покупателей
Рейтинг покупателей
0 / 5 5 5 1
На основе 1 оценок покупателей
0%
0%
0%
0%
0%
Отзывы о проекте D9033
Отзыв о проекте D9033
Чтобы оставить отзыв, пожалуйста авторизуйтесь.
Подбор строительной компании
Не знаете кому доверить строительство дома? Мы можем помочь! Подберем для вас из сотен наших партнеров несколько компаний с лучшем соотношением цена/качество под конкретно ваш запрос.
Подобрать