Главная Проекты домов Проект большого двухэтажного дома из клееного бруса с гаражом

D959 Проект большого двухэтажного дома из клееного бруса с гаражом

Сравнить проект В избранное
Проект большого двухэтажного дома из клееного бруса с гаражом / 1
Проект большого двухэтажного дома из клееного бруса с гаражом / 2
Проект большого двухэтажного дома из клееного бруса с гаражом / 1
Проект большого двухэтажного дома из клееного бруса с гаражом / 2
D959
539 м²
Проект с подрядом
Артикул проекта: ОПЕРА
Компания: Ecohouse Group
Стоимость строительства
12 400 000 ₽
Заказать подробную смету
+7 (812) XXX-XX-XX Показать телефон
Задать вопрос по проекту
Технические характеристики
Общие
Материал стен
Клееный брус
Общая площадь
539 м²
Приведенная площадь
405.01 м²
Количество жилых комнат/спален
8
Этажи
2 этажа
Гараж
Пристроенный гараж
Количество машин
2
Подвал / цокольный этаж
Без подвала
Длина дома
31.0 м
Ширина дома
12.7 м
Кровля
Металлочерепица
Облицовка внешних стен
Без облицовки
Толщина несущих наружных стен
160 мм
Межэтажные перекрытия
По деревянным балкам
Внутренние не несущие перегородки
Каркасно-обшивные
Терраса
Терраса крытая
Дополнительные
Окна
Окна до пола
,
Панорамные окна
Второй свет
Есть
Сауна/баня внутри
Нет
Площадь гостиной
50.6 м²
Площадь кухни
24.2 м²
Количество санузлов
4
Окно в ванной комнате
Есть
Котельная
Есть
Кабинет
Есть
Кладовая
5
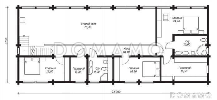
Планы помещений
Описание проекта
Компания Domamo предлагает проект большого двухэтажного дома из клееного бруса с гаражом D959. Общая площадь - 539 м2, размер - 31.0х12.7 м. Фундамент - , кровля - металлочерепица, внешняя отделка - без облицовки. Для заказа проекта или внесения изменений свяжитесь с нами с помощью форм обратной связи на сайте или по телефону +7 (343) 357-92-70.
Категории проекта: с гаражом деревянные для постоянного проживания из клееного бруса современные от 500 кв.м в европейском стиле с террасой двухэтажные двухэтажные с гаражом с котельной со вторым светом двухэтажные деревянные с плоской крышей загородные прямоугольные с панорамным остеклением Проекты деревянных домов с террасой Проекты деревянных домов с гаражом Проекты домов из клееного бруса с гаражом Проекты двухэтажных домов из клееного бруса Проекты двухэтажных домов с террасой Проекты двухэтажных домов с верандой на две семьи с кабинетом с гаражом под одной крышей с гаражом на 2 машины деревянные для круглогодичного проживания особняки с гаражом и террасой двухэтажные с террасой и гаражом с панорамными окнами и террасой современный с плоской крышей большие двухэтажные со вторым светом двухэтажные с панорамными окнами двухэтажные в современном стиле современные с гаражом современные с панорамными окнами современные с окнами в пол современные с террасой современные большие современные со вторым светом европейские с плоской крышей большие с вторым светом большие прямоугольные большие с окном в ванной комнате большие с панорамными окнами большие с окнами в пол большие с гаражом большие с гаражом на 2 машины большие с большой кухней большие с террасой большие с котельной большие с кабинетом деревянные современные деревянные с окнами в пол деревянные с вторым светом деревянные с панорамными окнами деревянные прямоугольные деревянные с подрядом деревянные без подвала деревянные с большой гостиной деревянные с большой кухней деревянные от 500 кв.м деревянные большие недорогие с панорамными окнами из клееного бруса проект с подрядом из клееного бруса для постоянного проживания из клееного бруса с окном в ванной комнате из клееного бруса прямоугольный из клееного бруса с вторым светом из клееного бруса с окнами в пол (в гостиной) из клееного бруса с окнами в пол (на кухне) из клееного бруса с окнами в пол из клееного бруса с панорамными окнами из клееного бруса в скандинавском стиле из клееного бруса в современном стиле из клееного бруса с каркасно-обшивными перегородками из клееного бруса без облицовки из клееного бруса с перекрытиями по деревянным балкам из клееного бруса с кровлей из металлочерепицы из клееного бруса с кабинетом из клееного бруса с котельной из клееного бруса с выходом на терассу из гостиной из клееного бруса с выходом на терассу из кухни из клееного бруса с крытой терассой из клееного бруса без подвала из клееного бруса без гаража из клееного бруса двухэтажные из клееного бруса с большой гостиной с плоской крышей двухэтажные с плоской крышей и большой террасой с плоской крышей и большой гостиной с плоской крышей проект с подрядом с плоской крышей для постоянного проживания с плоской крышей и окном в ванной комнате с плоской крышей прямоугольные с плоской крышей и окнами в пол в гостиной с плоской крышей и окнами в пол на кухне с плоской крышей и окнами до пола с плоской крышей и панорамными окнами с плоской крышей и кабинетом с плоской крышей и котельной с плоской крышей без сауны Проекты домов с подрядом Показать все категории Скрыть категории

Похожие проекты
Состав проекта
Входит в стоимость
Цена, руб. Сроки, дней
Комплект архитектурно-строительных чертежей (АС) Входит в стоимость Готов к отправке
Разрабатывается отдельно
Цена, руб. Сроки, дней
Адаптация фундамента (изменение типа фундамента) по запросу 14 рабочих дней
Дизайн интерьера (стоимость от 2200руб. за квад.метр площади) по запросу 30 рабочих дней
Внесение изменений в проект по запросу 20 рабочих дней
Фэншуй дома 20 000 ₽ 14 рабочих дней в корзину
Фэншуй участка 15 000 ₽ 14 рабочих дней в корзину
Фэншуй полная консультация дом+участок с выездом на объект 100 000 ₽ 30 рабочих дней в корзину
Опции проекта вы можете заказать в корзине при оформлении заказа
Комплектации
Отзывы покупателей
Рейтинг покупателей
0 / 5 5 5 1
На основе 1 оценок покупателей
0%
0%
0%
0%
0%
Отзывы о проекте D959
Отзыв о проекте D959
Чтобы оставить отзыв, пожалуйста авторизуйтесь.
Подбор строительной компании
Не знаете кому доверить строительство дома? Мы можем помочь! Подберем для вас из сотен наших партнеров несколько компаний с лучшем соотношением цена/качество под конкретно ваш запрос.
Подобрать