Главная Проекты домов Проект коттеджа с двусветной гостиной и бассейном с сауной

D417 Проект коттеджа с двусветной гостиной и бассейном с сауной

Сравнить проект В избранное
Проект коттеджа с двусветной гостиной и бассейном с сауной / 1
Проект коттеджа с двусветной гостиной и бассейном с сауной / 2
Проект коттеджа с двусветной гостиной и бассейном с сауной / 3
Проект коттеджа с двусветной гостиной и бассейном с сауной / 1
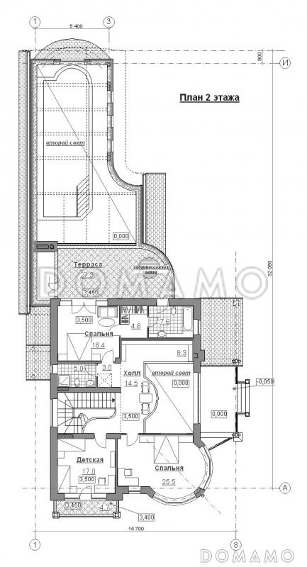
Проект коттеджа с двусветной гостиной и бассейном с сауной / 2
Проект коттеджа с двусветной гостиной и бассейном с сауной / 3
D417
455/479 м²
Подготовка проекта:
Готов к отправке
Стоимость проекта
Купить проект
Задайте вопросы по проекту нашему архитектору
8 (800) 200-28-83
Время работы: пн-вс: с 9:00 до 20:00
Задать вопрос по проекту

Технические характеристики
Общие
Материал стен
Кирпич
Общая площадь
455/479 м²
Жилая площадь
128 м²
Площадь застройки
355 м²
Приведенная площадь
410.53 м²
Количество жилых комнат/спален
4
Этажи
2 этажа
Гараж
Нет гаража
Подвал / цокольный этаж
Без окон
Длина дома
32.1 м
Ширина дома
14.7 м
Высота в коньке
9.9 м
Кровля
Гибкая черепица
Облицовка внешних стен
Мокрая штукатурка
Терраса
Терраса открытая
,
Терраса крытая
Дополнительные
Окна
Окна до пола
,
Панорамные окна
,
Круглые окна
Камин
Есть
Сауна/баня внутри
Есть
Бассейн
Есть
Площадь гостиной
50.5 м²
Площадь кухни
24.9 м²
Количество санузлов
5
Окно в ванной комнате
Есть
Котельная
Есть
Хозяйский санузел
Есть
Хозяйская гардеробная
Есть
Кладовая
2
Зимний сад
Есть
Дом для узких участков
Есть
Балкон / лоджия
Балкон
Планы помещений
Фасады
Описание проекта

Кирпичный коттедж с 4 спальнями подойдет для жизни за городом семьи из 3-4 человек. Фасад украшают панорамные и круглые окна и просторная терраса с высокой крышей.

Главный вход через прихожую ведет в лестничный холл, который объединен с гостиной. Барной стойкой гостиная отделена от кухни-столовой с круглой внешней стеной и панорамными окнами. С другой стороны гостиной через зимний сад можно пройти в помещение бассейна. Рядом с лестницей предусмотрена гостевая спальня. На втором этаже находятся еще три спальни. Цокольный этаж в этом проекте технический: здесь размещены котельная, кладовая и техподполье под бассейном.

Преимущества и особенности:

  • спальня на первом этаже — подходящий вариант, если в семье есть люди, которым сложно подниматься по лестнице,

  • планировка апартаментов хозяев дома включает в себя не только спальню, гардероб и ванную, но и просторную террасу: здесь можно установить джакузи и шезлонги.

Категории проекта: для постоянного проживания кирпич современные от 400 до 500 кв.м в европейском стиле с эркером кирпичные дома с эркером с террасой из кирпича с террасой готовые в стиле модерн с цокольным этажом кирпичные для узких участков загородные из кирпича двухэтажные из кирпича двухэтажные кирпичные с подвалом кирпичные с котельной с подвалом с котельной с баней с бассейном с двухскатной крышей загородные с четырехскатной крышей с баней и бассейном с камином с сауной с гардеробной с балконом с зимним садом с панорамным остеклением кирпичные с баней кирпичные с бассейном двухэтажные с эркером современные кирпичные Проекты двухэтажных домов с террасой Проекты двухэтажных домов с верандой Проекты двухэтажных домов с подвалом без гаража с террасой и камином с 4 спальнями с панорамными окнами и террасой двухэтажные с сауной с балконом и террасой узкие двухэтажные большие сложной формы двухэтажные с камином двухэтажные с двускатной крышей двухэтажные с панорамными окнами двухэтажные с 4 спальнями двухэтажные с балконом двухэтажные с балконом и террасой двухэтажные с бассейном двухэтажные в современном стиле двухэтажные без гаража современные без гаража современные с двухскатной крышей современные с панорамными окнами современные с окнами в пол современные с террасой современные узкие современные большие современные с подвалом большие готовые большие в стиле модерн большие с двухскатной крышей большие с четырехскатной крышей большие с балконом большие сложной формы большие с камином большие с бассейном большие с окном в ванной комнате большие с панорамными окнами большие с окнами в пол большие без гаража большие с большой кухней большие с террасой большие с баней большие с котельной большие с мастер-спальней большие с 4 спальнями большие с зимним садом недорогие с панорамными окнами из клееного бруса без гаража Показать все категории Скрыть категории

Похожие проекты
Состав проекта
Входит в стоимость
Цена, руб. Сроки, дней
Комплект архитектурно-строительных чертежей (АС) Входит в стоимость Готов к отправке
Разрабатывается отдельно
Цена, руб. Сроки, дней
Адаптация фундамента (изменение типа фундамента) по запросу 14 рабочих дней
Дизайн интерьера (стоимость от 2200руб. за квад.метр площади) по запросу 30 рабочих дней
Внесение изменений в проект по запросу 20 рабочих дней
Фэншуй дома 20 000 ₽ 14 рабочих дней в корзину
Фэншуй участка 15 000 ₽ 14 рабочих дней в корзину
Фэншуй полная консультация дом+участок с выездом на объект 100 000 ₽ 30 рабочих дней в корзину
Опции проекта вы можете заказать в корзине при оформлении заказа
Предложения строителей Свердловская область
Подбор строительной компании
Не знаете кому доверить строительство дома? Мы можем помочь! Подберем для вас из сотен наших партнеров несколько компаний с лучшем соотношением цена/качество под конкретно ваш запрос.
Подобрать
Посмотреть еще 2 компании Свернуть
Отзывы покупателей
Рейтинг покупателей
0 / 5 5 5 1
На основе 1 оценок покупателей
0%
0%
0%
0%
0%
Отзывы о проекте D417
Отзыв о проекте D417
Чтобы оставить отзыв, пожалуйста авторизуйтесь.
Подбор строительной компании
Не знаете кому доверить строительство дома? Мы можем помочь! Подберем для вас из сотен наших партнеров несколько компаний с лучшем соотношением цена/качество под конкретно ваш запрос.
Подобрать