Главная Проекты домов дуплексов Проект мансардных домов-близнецов из газобетона современного дизайна с гаражом и террасой на втором этаже

D4355 Проект мансардных домов-близнецов из газобетона современного дизайна с гаражом и террасой на втором этаже

Сравнить проект В избранное
Проект мансардных домов-близнецов из газобетона современного дизайна с гаражом и террасой на втором этаже / 1
Проект мансардных домов-близнецов из газобетона современного дизайна с гаражом и террасой на втором этаже / 2
Проект мансардных домов-близнецов из газобетона современного дизайна с гаражом и террасой на втором этаже / 1
Проект мансардных домов-близнецов из газобетона современного дизайна с гаражом и террасой на втором этаже / 2
D4355
219 м²
Подготовка проекта:
Готов к отправке
Стоимость проекта
Купить проект
Задайте вопросы по проекту нашему архитектору
8 (800) 200-28-83
Время работы: пн-вс: с 9:00 до 20:00
Задать вопрос по проекту

Технические характеристики
Общие
Материал стен
Газобетон
Общая площадь
219 м²
Площадь застройки
138.8 м²
Приведенная площадь
243.04 м²
Количество жилых комнат/спален
4
Этажи
2 этажа + мансарда
Гараж
Встроенный гараж
Количество машин
1
Подвал / цокольный этаж
Без подвала
Длина дома
17.28 м
Ширина дома
8.24 м
Высота в коньке
10.42 м
Кровля
Металлочерепица
Облицовка внешних стен
Деревянная вагонка
,
Мокрая штукатурка
Толщина несущих наружных стен
380 мм
Межэтажные перекрытия
Монолитные
Внутренние не несущие перегородки
Газобетонные
Фундамент
Ленточный заглубленный из ФБС
Терраса
Терраса открытая
,
Терраса крытая
Дополнительные
Окна
Окна до пола
,
Окна с французским балконом
Мансардные окна
Есть
Камин
Есть
Сауна/баня внутри
Нет
Площадь гостиной
28.7 м²
Площадь кухни
10.1 м²
Количество санузлов
3
Окно в ванной комнате
Есть
Котельная
Есть
Постирочная
Есть
Хозяйский санузел
Есть
Кладовая
3
Балкон / лоджия
Балкон
Длина участка
25.28 м
Ширина участка
12.24 м
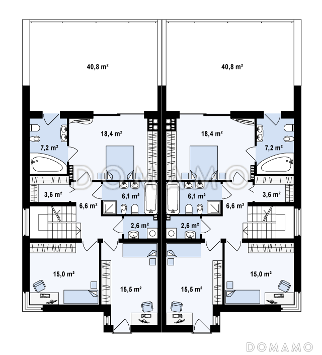
Планы помещений
Фасады

Похожие проекты
Состав проекта
Входит в стоимость
Цена, руб. Сроки, дней
Комплект архитектурно-строительных чертежей (АС) Входит в стоимость Готов к отправке
Готово к продаже
Цена, руб. Сроки, дней
Паспорт рабочего проекта 8 000 ₽ 5 рабочих дней в корзину
Инженерные разделы: ВК + ОВ + ЭО 13 750 ₽ Готов к отправке в корзину
Дополнительная копия проекта формата А3 6 500 ₽ 5 рабочих дней в корзину
Электронная копия проекта (скан распечатанной версии) 4 000 ₽ 3 рабочих дня в корзину
Разрабатывается отдельно
Цена, руб. Сроки, дней
Адаптация фундамента (изменение типа фундамента) по запросу 14 рабочих дней
Дизайн интерьера (стоимость от 2200руб. за квад.метр площади) по запросу 30 рабочих дней
Внесение изменений в проект по запросу 20 рабочих дней
Разработка Генплана участка, в масштабе 1:250 7 500 ₽ 15 рабочих дней в корзину
Фэншуй дома 20 000 ₽ 14 рабочих дней в корзину
Фэншуй участка 15 000 ₽ 14 рабочих дней в корзину
Фэншуй полная консультация дом+участок с выездом на объект 100 000 ₽ 30 рабочих дней в корзину
Опции проекта вы можете заказать в корзине при оформлении заказа
Отзывы покупателей
Рейтинг покупателей
0 / 5 5 5 1
На основе 1 оценок покупателей
0%
0%
0%
0%
0%
Отзывы о проекте D4355
Отзыв о проекте D4355
Чтобы оставить отзыв, пожалуйста авторизуйтесь.
Подбор строительной компании
Не знаете кому доверить строительство дома? Мы можем помочь! Подберем для вас из сотен наших партнеров несколько компаний с лучшем соотношением цена/качество под конкретно ваш запрос.
Подобрать